「 院居 」
COURTYARD HOUSE
院的記憶
memory of courtyard
院的記憶
在北京,院子其實是個熟悉又陌生的場所。說它熟悉是因為記憶裏,胡同的院兒總是伴隨著居住和成長。說它陌生,是因為當代大都市化的高速建設背景下,院子已然很少有條件出現。在北京城市更新改造中,老破小依然是關乎普通人基本居住需求體麵的問題。本案就是一戶帶有內院的一層老破小,我們通過設計改造使其更加適宜當代人們的居住生活。
前期分析
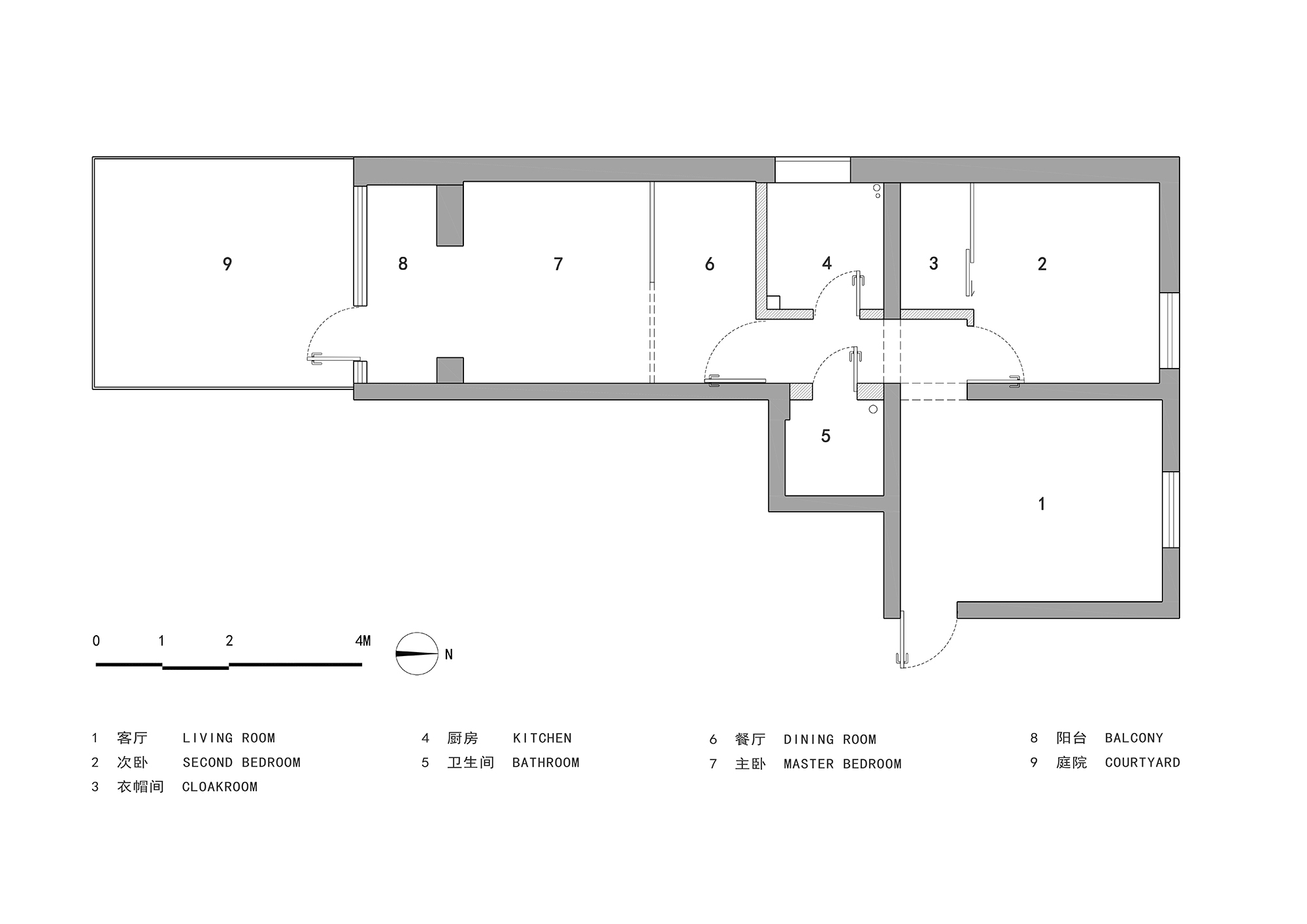
場地位於西城區塔院小區內,一棟六層板樓的首層西側把邊兒,緊鄰三麵街道,是一個交通便利且非常醒目的位置,悠閑健身的大爺大媽們偶爾路過,看到我們的改造總會熱議一番。原始戶型為南北朝向,像一個手槍房,內部格局非常零碎且狹小,南側臨陽台有一個小的內院。業主是個老北京,獨自居住,從原始居住環境可以看出來,幾乎沒有收納能力和收納條件。
∇ 區域調研分析
∇ 場地概況
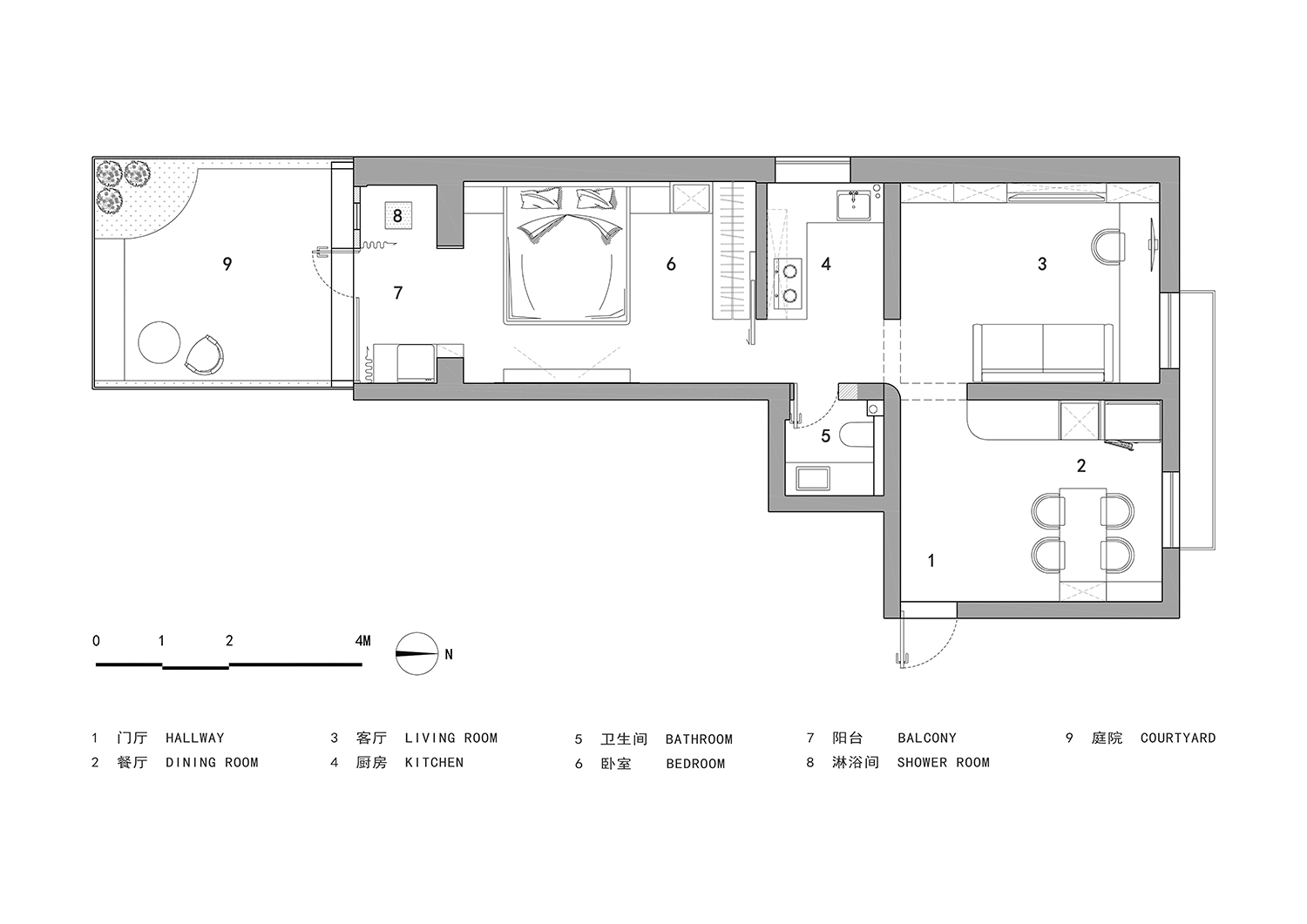
空間關係角度,本次項目任務由兩個主要部分組成:室內空間的釋放和室外院落的重構。空間內部以中心走廊區域作為起點,向四個開口方向延伸,釋放各空間出入口, 最大限度拓展空間。室外部分,通過增設的門廊和涼亭使院落內向圍合,建立室內與室外的空間聯係。
∇ 空間分析
∇ 原始平麵
∇ 改造後平麵
∇ 敘事軸測圖
院落
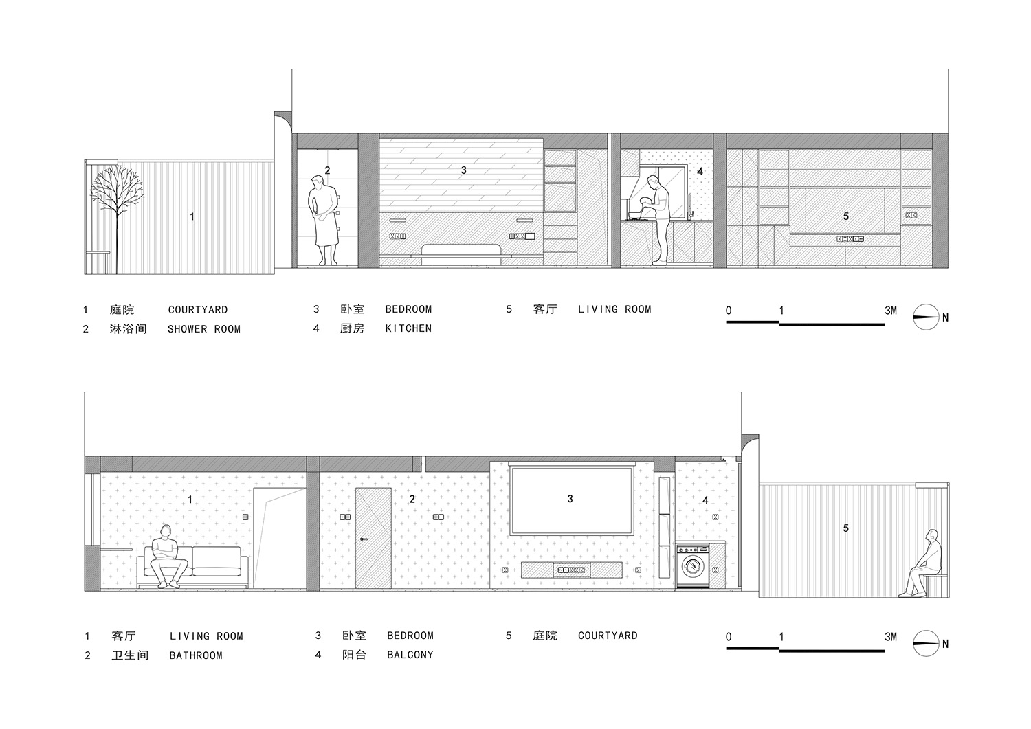
門廊界定了院子與室內空間的邊界。頂部挑簷,四周圍合,形成一個凸出於建築外立麵的矩形框。深灰色的水泥漆與建築白色的外牆漆形成了新舊對比,充滿了科幻的不真實感。院落南側布置了一個可以坐下休息的小涼亭,周圍通過軟性植物圍擋,讓院落更加的內向化,並且形成了植物覆蓋的借景效果。
∇ 凸出的矩形門頭框出室內一景
∇ 院落植物映襯的借景效果
∇ 夜幕降臨時分的院景
∇ 院落俯視圖的秋景,可以看到院與周邊環境的互動性
業主平日叫外賣用餐的頻率較高,為了方便拿取,入口即是餐廳,並設計了下沉式玄關落塵區。餐桌設計為一個較大的吧台形式,粗糙的水泥漆質感,搭配金屬玻璃顯得格外精致。另一側設計了水吧台和電器一體櫃,包括冰箱、酒櫃、直飲水機等設備集合一處。
∇ 從入戶玄關望向客廳入口
∇ 吧台形式餐桌
∇ 西廚水吧台
∇ 從走廊望向餐廳一角
客廳
客廳區作為業主遊戲娛樂和工作的房間,客廳與工作區的功能疊加,電視屏幕與電腦可以相互連接使用,黑白灰的單色調凸顯水泥牆麵的肌理與質感。
廚房
為了讓狹小的操作空間更加舒適,廚房改為了開放式,並嵌入了烤箱、洗碗機等現代廚房電器。家電的大小也做了考量,使得這塊區域功能齊全。 白色的一體櫥櫃與深色水泥牆地麵形成質感與色彩上的對比。
衛生間
因為衛生間較小,所以幹濕分離將淋浴區單獨設置在了陽台,與庭院景觀發生互動關係。衛生間將淋浴功能移位後,形成了足夠舒適幹淨的衛生環境。因為屬於暗衛,選用了易來照明的“青空燈”,為狹小的空間開了一扇天窗,使原本幽暗的房間變得明亮。
臥室
進入臥室區域設計了L形的衣帽區,為業主提供了充分的收納空間。臥室地麵和背景牆采用的胡桃木地板濕貼工藝,整體自然而沉穩。
∇ L型衣帽區
∇ 胡桃木背景牆
陽台
陽台成為了連接室內外的灰空間,也是一個洗衣家政區。推開門,可以走入自家的小院落中去。陽台的右側布設為淋浴房,側部牆體做了一個巧妙的開口設計。淋浴時,一方麵人可以從洞內觀察洞外的風景,另一方麵,開口的設計能更好的引入自然光源,為淋浴這件事增添了幾分曖昧。
∇ 落地窗模糊了室內外邊界
∇ 充滿自然采光的淋浴房
∇ 圓形窗洞引入自然采光
∇ 圓洞外的秋景正合時宜,一天的疲憊也在此處消解
∇ 剖立麵圖
項目信息
項目名稱:院居
項目類型:住宅公寓
項目地址:北京市海澱區塔院路
建築麵積:56㎡
設計公司:戲構建築設計工作室 XIGO STUDIO
方案主創:劉陽
方案深化:王丹
設計時間:2020年11月-2021年3月
竣工時間:2021年12月
撰文排版:劉陽、於水驕
攝影版權:立明
家具定製:觀隅家居
主要材料:高鋇特樹脂、水泥藝術漆、胡桃木地板






































評論(2)
顏色搭配暗沉冰冷,沒有任何幸福感的設計,小空間內大量使用黑白,顯得相當壓抑,唯一的露台改造得更像是牢籠。從前期的場地概況來看,老人時不時也會在陽台嗮太陽種花,也有晾曬衣物的需求,完全可以改成戶外花園茶室,四周也不用都是鐵圍欄吧。主臥旁邊新增的浴室更是離譜,感覺洗澡沒一會水就蔓延到臥室了,衛生間去掉馬桶完全可以兼容浴室功能。對於老人來說更注重於晚年的幸福感,這個設計適合單身男青年,設計師師按自己品味做的吧!!!
這個玩偶放在外麵,不慎人嗎