COLLECTIE,取自荷蘭語收藏之意。業主希望將COLLECTIE中古家居的店鋪空間塑造成彙集百家珍寶的收藏夾。讓人們在這裏的每一次相遇,都是溫暖而富有趣味的雅集;讓人們在上世紀的經典設計的交融中,開啟一場探索身體,家具與萬物的親密對話。
店鋪的建築改造與室內設計由office FORTE操刀,致力於創造一個鏤空的百寶箱,讓光、景、人無間穿梭變換,同時建築構件本身成為精巧的零件穿插其間,既定義了寶箱的結構,又成為箱中的收藏。
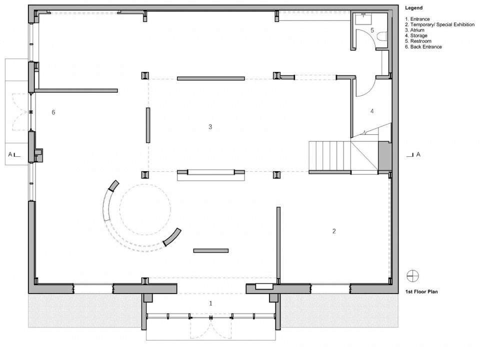
設計中營造了各種各樣的開口,促成室內外及室內空間之間的流動。在建築改造尺度上,從西立麵與第五立麵的方向,建築分別被兩個立方體量穿透,預示了兩個人流與光線的主要方向:一,從西麵引入空間腹地,二,從建築的中心垂直向上。
體量切削作用於平麵自然形成了類九宮格的布局。在建築內部靠近入口處,建築師插入鏤空的圓筒體量,將建築的西北轉角融彙成多方向流動的空間,在入口另一邊則形成相對封閉的方形房間,用於特殊或臨時展陳。中庭四周的片牆以插接的方式與二層樓板結合,與中庭四角的柱子間形成與節奏的開口,使得中庭成為角部弱定義的空間,在擁有足夠牆麵應對展陳的同時,與周圍環抱的空間之間有緊密聯結。
構件細節處理上,建築師通過消解建築構件的定義與體量,來呈現語義的曖昧與空間的模糊。一層牆麵延伸到二層成為欄杆,消解了建築構件的單純定義。柱子作為承重構件,其長細比突破常規認知,豎向排列的條磚更進一步消解了柱子的重量感,並進一步拉高了柱子的比例,使柱子好似拉住屋頂的拉力構件,扭轉了受力方向的認知。
外牆的兩個側窗狀似被鑿開的洞口,與西立麵中間的方形洞口形成對立的主被動關係——視線上,敞開的大門與窺視的洞口並置;建造上,砌築的加法與鑿除的減法並置。二層的圓木扶手如穿針引線一般將柱與牆織緊,在虛實之間營造了隱隱的力量感。
室內的材料顏色基調定為淡草綠與大地色,在與中古家具經過實踐沉澱於包漿的色澤協調的同時,為空間注入清新的光澤。草綠色在收藏寶盒中好像綠寶石仗,與裝點其中的盆景植物相得益彰。
∇ 一層平麵圖
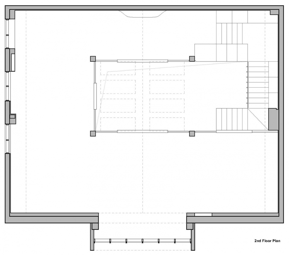
∇ 二層平麵圖
∇ 西立麵圖
∇ 剖麵圖
項目信息
項目名稱:COLLECTIE 中古家居店鋪設計
項目類型:建築改造+室內
設計方:office FORTE 北京孵地建築設計有限公司
項目設計:2021
完成年份:2022
設計團隊:吳曉涵
項目地址:北京市朝陽區半截塔路 朗園station 23號庫C6-1
建築麵積:333㎡
攝影版權:COLLECTIE中古家居
客戶:COLLECTIE中古家居






























