知吾設計工作室位於北京市朝陽區,項目周邊環境為一個藝術園區,在180平方的麵積裏,我們直接將空間進行切分,更好的滿足了多的辦公需求。
設計靈感:來自於簡單的幾何體,我們通過在牆體上挖幾何形空洞,看到了陰陽的虛實,看到了空間的流動且整體的形態。通過這些大小且形狀不一的幾何型空洞,可以增加空間的通透性,讓每個空間都互相連接,這樣在增加了空間的趣味性的同時還增加了室內的自然采光。
空間處理:我們將原始的建築空間,通過增加夾層,豐富空間,增加了更多的使用麵積。金屬樓梯淩空而上,二層小隔間利用錯位的空間設計表現手法,架起了上下錯落有致的空間結構,是一個出其不意,令人眼前一亮的合理空間。空間之間的空間比空間本身更具有意味,但也容易被忽略,正是由於“之間”的多元性和複雜性以及它的不確定性,空間之間變得無限可能。
∇ 軸測分析圖
進入工作室會先經過一個小的圍合式的景觀庭院,我們通過透景的設計手法,很好的將室外景觀在視覺上延申至室內空間中。入戶右手邊利用了高差的設計手法打造出一塊下沉式的交流及休閑空間,使整體空間更加富有層次感,也能實現空間轉換與功能區域之間的錯落感。
光線處理:我們利用軟件模擬了原有建築室內空間在被太陽光照射的情況,根據模擬情況,我們在前後牆麵、屋頂上增加幾處大小不同的開口,保證室內有均勻的自然采光以及通風性能。在午後的陽光對室內空間的照射下,營造出一種溫馨而又自然的空間氛圍,並且隨著時間及太陽高度的變化,室內光線緩緩移動,呈現光線上的“通透”。
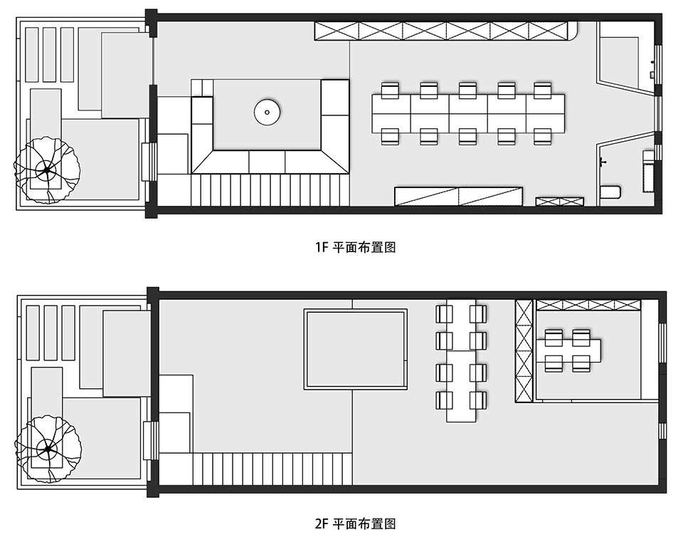
主要辦公區設置在一樓,用不同於整體的地麵鋪裝材料來區分了空間的功能,左邊為辦公輔助和水吧台,右邊作為材料展示區和閱讀區,中間則為公共辦公區域,在動線上使得整體動線呈回字形,方便了工作人員的流動與溝通。
一層最裏麵用兩個不規則幾何體將空間分割開來,左邊為工具房,右邊為衛生間,中間則為玻璃門,這樣讓後院的自然采光很好的引入到室內空間之中。二層的空間功能主要分為會議室、接待室、休息室。其中“小盒子”作為休息室來使用,給辦公晚歸的人員提供了私密的休息場所。
材料處理:對於新加建的空間體量我們采用了全樺木的海洋板和黑色油漆的鋼板,盡量讓其呈現的簡單而細膩,而對於原始的牆麵和地麵,我們采用了淺灰色的微水泥。我們認為設計都應該保持克製,即使使用極其簡單的方式與設計手法,也可以讓形體和空間更加的純淨,更素雅,而又多變化。在這裏,空間之間是可以存在無限變幻的。
∇ 平麵圖
項目信息
項目名稱:知吾建築設計工作室
項目類型:辦公空間設計
設計方:知吾設計
項目設計:2021.8月
完成年份:2022.2月
設計團隊:知吾設計 咎靖平 倪元
項目地址:高塔藝術廣場712
建築麵積:180㎡
攝影版權:wm studio
合作方:知吾施工團隊
客戶:咎靖平
Client:Zan Jing Ping
材料:微水泥、樺木板、自流平、烤漆板、岩板、瓷磚
品牌:微羅































