位於北京東郊的朗園Station是正在蓬勃興起的商業街區,其前身是廢棄的紡織品倉儲基地。始於50年代,大多數建築都已經超齡服役。由於初建時期抗震標準不高,磚牆多處已經開裂,構造柱也不完整交圈。可以劃作危房的現狀條件,對於任何當代功能的植入都是挑戰。餘留地團隊將其中一棟長42米,寬30米,高8.5米的磚混結構庫房進行了徹底的翻新,為攝影師業主提供了如藝術博物館般的工作環境。
業主的基本要求是在新體量裏容納下三個攝影棚。其中包括兩個常規棚,淨高在5-8米之間,以及一個天光棚,淨高3.5米。封閉如暗盒的攝影棚是業主日常工作的區域。而各攝影棚之間則視作輔助空間,包括門廳,接待區,休息室,走廊,樓梯,以及攝影師的個人空間。借鑒羅蘭×巴特在《明室》中對攝影圖像的類型闡述,餘留地轉換了空間的主次關係。主要采用布景和受控光源從事影像生產的攝影棚內部被視作Studium,即相對靜態的空間。而圍繞攝影棚的流通空間則可以利用自然光線實現Punctum,即視覺上更加悸動的空間。
∇ 分析圖
盡管原建築內部從地基到屋頂都被拆除重建,外牆的基本體廓被保留下來。但無論是隻有240厚的燒結紅磚牆體,還是以6米為間距,帶有頂部線腳的磚壁柱,都無法支撐內部新加建的樓層荷載。因此設計團隊與結構工程師密切配合,為外圍護物設計了一套新的支撐係統。混凝土框架嵌入磚牆,增強其結構剛性,同時維持主要展開麵,並使靈活調整外牆開洞成為可能。新洞口的尺寸和位置體現了室內各房間對采光的需求,仿佛不同光圈的鏡頭。用於穩定洞口的GRC外框,並不是單純的平麵輪廓,而是具有流動感的立體形態,以借助陽光的照射塑造廠房的城市新麵孔。
主入口位於首層西側,通過一個曲折的門鬥引導訪客進入大廳。大廳正對中心走廊,並連接南北兩個影棚休息室。該公共區域的表麵材料由水磨石,木材,半透明玻璃和肌理漆構成,形成非常豐富的單色調。光線從不同方向直接或間接散發進來,交叉,反射和漸變於由若幹弧形表麵圍合的高敞空間。經過仔細布置的洞口具有變化的輪廓和深度,有意拉長由光亮到昏暗的過程。這種試圖顯示照明軌跡,並創造多層灰色調的努力,受到安塞爾×亞當斯(美國二十世紀著名攝影家)提出的“區域曝光法”理論啟發。
最具戲劇性反差的地方是中心走廊。走廊分為上下兩層,聯係南北兩側樓層的變化高差。一道35米長,帶有遮陽卷簾的天窗,將屋麵切開,讓自然光傾瀉進入建築內部各個角落。明亮四處蔓延,陰影翩翩起舞。四段乳白色的樓梯,將圍繞光影走廊的簡單循環動線變成移步換景的旅程。訪客發現自己如置身於一座以光為景的展廳。
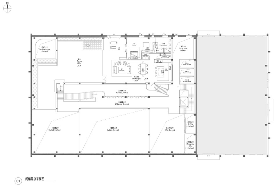
室內加建的最高區域是供攝影師休憩的個人空間。餘留地創造出一個帶有露台,充滿愉悅氛圍的空中居所。壓低的傾斜天花使房間具有閣樓的尺度特征,卻因為白色的大理石牆麵和充沛的采光而倍顯明亮,但又不因此而灼熱難耐。這主要歸功於南向的整麵落地玻璃,通過光影走廊的天窗獲取過濾後的太陽輻射。房間西側的玻璃幕牆則將室內與室外平台貫通。種植著常綠灌木和四季花草的露台,成為主人和他的三隻愛犬日常嬉戲的空中庭院。偶爾,這裏也可以被當作一個自然光拍攝的室外攝影棚來使用。
雖然改造後的建築內部為私人領域,但圍繞外牆的街道邊界並沒有采用封閉式的景觀處理。這反映了餘留地團隊努力在所有項目中貫徹的“共享私域”理念。重新修整的人行道路,為襯托原建築磚牆而設置的灌木叢,以及在相鄰廠房間的空隙裏增添的喬木綠蔭,都為正在經曆重生的工業園區創造出城市街區應有的宜人環境。
∇ 區位圖
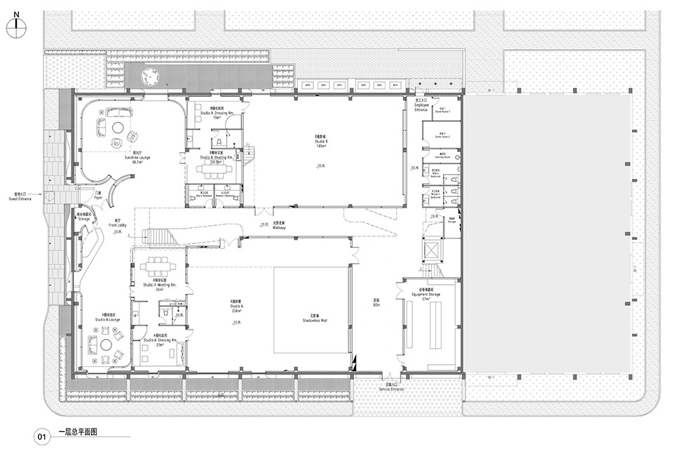
∇ 一層總平麵圖
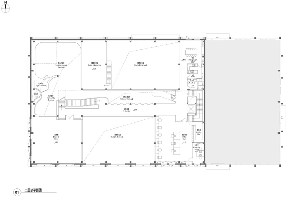
∇ 二層總平麵圖
∇ 閣樓層總平麵圖
項目信息
項目名稱:韋來攝影藝術空間
項目類型:辦公空間
設計方:餘留地
項目設計:2019-2020
完成年份:2022
設計團隊:宋方舟,嶽峰,賴智薇,蒲潔宇,傅詩,魏丹,宋蕾,林畫兒
項目地址:北京朝陽區半截塔路53號首創郎園Station
建築麵積:2185 ㎡
攝影版權:安利,韋來
客戶:未來境界攝影工作室
材料:GRC,磚,水磨石,人造石,直立鎖邊金屬板,木飾麵板, 微水泥





































