初春的二月,城市和平原已經掛滿“春”的氣息,但是,在離開成都僅僅200公裏的小金縣,卻仍然春寒料峭,著名的四姑娘山的和峽穀中的原始森林,仍被厚厚的積雪覆蓋,原始的山體躲藏在憨態可掬的積雪後麵,一片安寧、平靜、祥和。人們到這裏,除了感受到刺骨的寒氣和美麗的雪景外,撞入眼簾的就是放養的馬駒和嘉絨藏族家飄出的屢屢炊煙……
驅車三個多小時趕到這裏的人們,在突然加劇的高原反應麵前,使他們除了在厚重的棉衣壓迫下發出渾濁的喘氣聲外,不願多說一句話。突然,一陣陣輕微的騷動打破了車內的沉悶:“到了、到了”幾張臉貼向車窗玻璃。
汽車沿著一段白雪漫漫的盤山公路艱難地行進一段路後,以一定夾角依靠在一起的兩棟白色三層建築映入人們的視線,它們由一個低矮的耳房聯接在一起,形成整體,宛如在雪地中恍如生長出來的小花,倔強地與大地形成一體。這時,建築小窗和角窗透出溫暖的橘色燈光,讓人倍感暖意和溫情。整體建築既有傳統藏式的包裹性,又具有現代建築的簡約和明確的特征。
這就是具有“東方阿爾卑斯山”美譽的四姑娘山長坪溝;這就是四姑娘山景區內唯一對外開放的精品民宿:“大隱・四姑娘”;這就是成都萬謙集設計公司為喜愛雪山、喜愛四姑娘山的人們度身定製的棲身之所!
幾年前,當人們去到一個地方旅行時,最令人鬧心的是就是:“今夜我住在哪裏?”於是,我們將目光投向了一個叫“酒店”的地方。但是,滿街遍野的商務酒店和“星級酒店”確讓我們的眼神中布滿遺憾,這種“遺憾”不是價格,而是氛圍:在這樣的酒店駐足,我們注定不能尋覓到同類,注定是孤獨!
好在,對旅者有理解的酒店設計的從業者敏銳地察覺到:日益富足的人們因為生活向度的選擇,有了不滿足於觀光獵奇旅遊的心理預期,那是深入自然與人文的“旅行”,“為自然、為生活去追尋美好”成為他們當然的細分市場,他們需要將他們對生活的體悟融入旅行之中,將具有傳統生活特征的生活方式與陌生人共同居住結合在一起,形成微型和“偶遇”的圈子。他們需要和具有相似感悟的人相社交和融入。於是,在“民宿”中生活成為他們的首選。
隱匿於四姑娘山的精品民宿“大隱・四姑娘”,就具有這樣的“咫尺天涯、聚散不定”的特征和氣質!
在這時,投資人想到他在阿爾卑斯山旅行的經曆和開發者態度,眼前四姑娘山的景色和阿爾卑斯山確有幾分神似,於是,他與設計師一道,將國外開發阿爾卑斯山相近的態度投和熱情,傾注在“大隱・四姑娘”的項目之中。考慮投資體量,也為了和環境融合,設計師將建築總麵積控製為600㎡,共有七間房。
作為精品民宿,最重要的是對客人“居住”的心理需求的考量和滿足。為此,設計師和民宿的發起人和管理者作了深入、細致的研究,他們發現,人們起心動念居棲身在“民宿”的重要原因是:這裏最接近自然,也最接近嘉絨藏族的日常生活,同時,在這裏也能滿足他們在都市生活中的一切便利。在這裏他們可以實現他們對高原和原野的一切遐想:火塘、私湯、酒吧、星空、雪野和不受打擾的自我凝視……
於是,設計師將這一切帶到了“大隱・四姑娘”項目中,讓關於成年人的理想與童話都得到很好的表達。這一切恰恰不是設計“訓戒”所能得到的,而是有關對項目的直覺、夢想和情懷所致。
民宿由四壁圍合的場域猶如一個容器,它可以最大限度地拉近陌生人之間的心理距離,讓在不同環境中的人得到的人生經驗以行為、談吐等方式自然、不經意地流露出來,影響和沐浴著與它靠近的人,讓人增長了見識、獲取勇氣和力量。
因此,設計師在一樓設立了火塘和餐廳,將酒吧設立在三樓抬高層上,便於客人分流和均質分布。它們在有如寒夜中散發暖意的火塘、有民間修補意味地座椅環侍下成為不同人聚合的場所。被拉長的樓梯延緩了上樓的坡度,讓人可以信步漫遊。建築麵積在感覺上被擴大了,顯得親切而愜意。向上升騰的樓梯構成具有動感的線條,勾勒出空間結構,讓心靈向上飄蕩。
設計師設想:要讓民宿的所有朝麵將四姑娘山最美的景色擁抱進室內:冬天的森林和雪景、秋季彩林的色彩斑斕,讓室內真正成為一個“看得見風景的房間”。為此,設計師用“框景”的方式,將外部空間最值得留戀的地方,用窗口“剪裁”進室內,讓在室內的人能感受到身處於何處,並產生心裏的共鳴。
在居住的房間,設計師將火爐取暖的方式引入居住空間之中,讓居住空間洋溢做暖意。與此同時,取暖用的柴禾被碼放整齊與角落、具有生活包漿感而呈現出深褐色的櫃體,與座椅與巨大的落地窗,它們與潔淨、柔軟的床品,結合精致的木雕、牆麵自創的裝飾構成,顯示出主人的品位,可以想見房間暫時的主人在暖意 融融窗前落座,手中捧著一本書細細品讀,或摩挲著木雕想心事,茶幾上的煮茶咕嘟作響……這是何等愜意、溫情和慵懶的自語。
在“大隱・四姑娘”精品民宿,我們能感受到的舒適和溫情不僅僅是視覺的,也沒有抒發形而上的哲學說教,一切都是發自身體最深處的,不會欺騙的真實。能在如初春的沐浴中享受美景,也享受在地的傳統,那是悠遠的時光留下生活經驗的沉積,一層層,堅韌而柔軟!
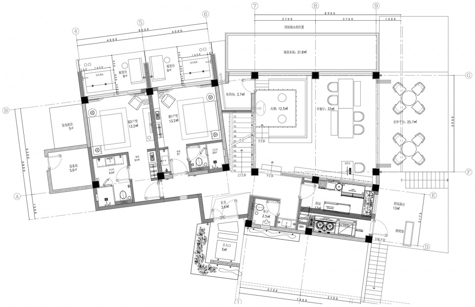
∇ 一層平麵
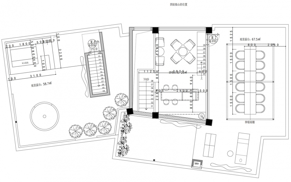
∇ 四層平麵
項目信息
項目名稱: 大隱與跡・四姑娘民宿
項目地點:中國四姑娘山長坪溝
項目麵積:約600㎡
民宿主理人:唐瞾、 江明龍
全案統籌:成都萬謙集環境藝術設計公司
建築設計:ZYXtudio 自由實踐室
藝術總監:汪宏
室內設計:謝曉雨、姚正東
撰稿:張軼青
空間攝影:翱翔







































