在東三裏屯,有片院子叫“北京聯合大學機電學院”,也就是現在的“機電院”,它的前身是京師督學局於1907年創辦的“京師初等工業學堂”。現在,大家習慣叫它“三裏屯機電院”。
不同於以往的單純銷售,在未來線下社區型集合商業模式中,各種業態將會以不同形式的嫁接完成“新零售體驗店”的轉型,相互成為展示性的“櫥窗”和進行體驗和消費的場所。本案內,大觀在三裏屯的這塊隱藏地圖裏改造一處包含美發沙龍功能的有趣咖啡酒吧。
三裏屯就像空降到北京的一個島嶼,籠罩著富有異域感的人造氣泡。這裏可能有著北京最長最嘈雜的夜晚,人潮如織,攘往熙來,而一個沒有沿街展麵的“機電院兒”卻形成了獨有的鬆弛氛圍。我們基於保留原生場地的曆史記憶的同時,挖掘場域精神。正如不同分子撞擊形成新的化合物,將美發沙龍與日咖夜酒結合,融於三裏屯板塊的多元語境中。在隔層上空穿插體塊搭建,規劃出了上下層不同的功能形態,同時預先策劃未來空間的運作內容、兼顧了商業體的引流。
∇ 室內結構穿插分析圖
這棟建築從建成以來就開始自由的變化生長,跟隨著這裏的住戶和時代的變遷不斷變化著,留下的都是不可複製且無法再現的記憶,在建築沿街麵明確原生框架與可改造部分後,首先將原有磚混結構體係的駁舊牆體形態加以優化,縫合具有大院時代記憶的立麵肌理,讓新舊互為共生:雙方因為彼此的存在而使價值得到了提升,最終形成一種可識別的區域ip,共同組成一塊城市拚圖。
設計圍繞著美發沙龍與咖啡空間的結合延伸,基本策略是把三塊原始獨立空間經過牆體拆解與階梯軌道嵌合完成包含多個商業形式層次的集合體。通過不同層次階梯的形式將一樓與二樓串聯、時間和空間交錯穿插使用讓客群有的一定重疊和互換,從而形成一條完整的遊走動線,在有限的空間場地裏製造趣味性的空間視覺與體驗感。挑空一方麵延伸了室內空間的“視野中心”,另一方麵作為上層客座區動線軌跡指向不同業態經營。與此同時我們也將整個空間的動線重新進行了梳理,讓空間的到達性及目的性更強。
∇ 動線分析圖
基於重新規劃後的空間架構,室內呈現出環狀的空間結構:二層中央區域為島式空間,通過打開局部通道,形成多個出入口。我們用一層朦朧的聚碳酸酯板幕牆表皮將業態獨立,避免由於隔絕而造成的閉塞感與單調性。將場域氣氛置入某個高精度的實驗工廠,機械組件暗示著標準化與自動化技術的進步,通過藝術的表達將挑高的橙色軌道傳送帶作為展示的場景單元。
人工照明的設計采取投射燈為主的表現方法,鋁製工業頂燈引導燈光照明,以線性的形態穿梭其內,形成隔一牆一線即變化的多重感官體驗。金屬材質的拚接和延伸為空間帶來的流動感、釋放沉靜穩定的情緒。相對空間上部的明亮和通透性,一樓咖啡吧台則更多是隨性與秩序微妙。空間由此產生一種垂直性,一種上下關係的明確呼應。
位於首層入口處的吧台壁麵飾以大量水泥混塗料,釋出粗糲感強烈的冷性氛圍。水磨石、不鏽鋼和鋁板的重複利用,讓材料本身呈現原生風貌。靠近街廓的區域,利用桌角的局部退讓,讓光線可以經由設計後的角度進入空間。相對空間上部的明亮和通透性,吧台則更多是隨性與秩序微妙。空間由此產生一種垂直性,一種上下關係的明確呼應。
這是大觀首次嚐試參與設計與餐飲之外的業態兼容經營,一切空間設計都圍繞著對場景的體驗,我們相信空間不僅是一個物理環境的呈現,在嚐試更多未知的經營命題後才能挖掘出更多商業空間設計的可能性。我們創造的空間同時也在創造體驗,相輔相成。
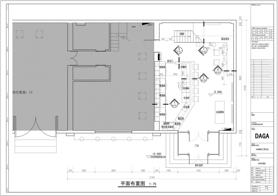
∇ 首層平麵圖
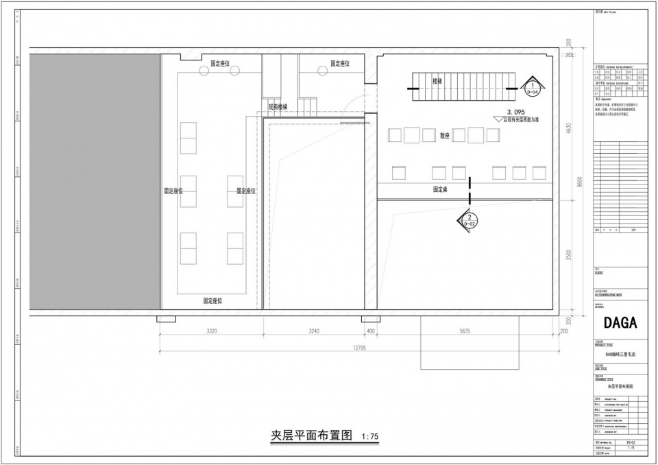
∇ 夾層平麵圖
項目信息
項目名稱:輕改造嵌入美發廳的咖啡酒吧
設計公司:DAGA Architects大觀建築設計
設計團隊:申江海,康靖雯, 韋娜,王立楓
項目類型:室內設計
建築麵積:240㎡
設計時間:2022.08-2022.10
建造時間:2022.10-2022.12
項目攝影:UK STUDIO©UK STUDIO
媒體撰文:滕天怡


























