01. 建築
佑見民宿
麵朝大海仰視落日餘暉
俯瞰海浪繾綣與歸航漁船
所有的自然野奢趣味
所有的浪漫詩意柔情
盡在湄嶼之上
落日向晚,黃昏在拉長,我喜歡這溫柔的時辰。
02. 空中大堂
穿越時空,過去與未來的對話。隻有當過去與未來相結合時,才能看到現在的魅力,這便是歲月的沉澱,藝術的力量。
設計師賦予空間以優雅、嫻靜、自然的大方,引導人們停頓、凝望、小憩、交流。人群的交流互動,隨著空間的延伸,也增加了無限的可能性。
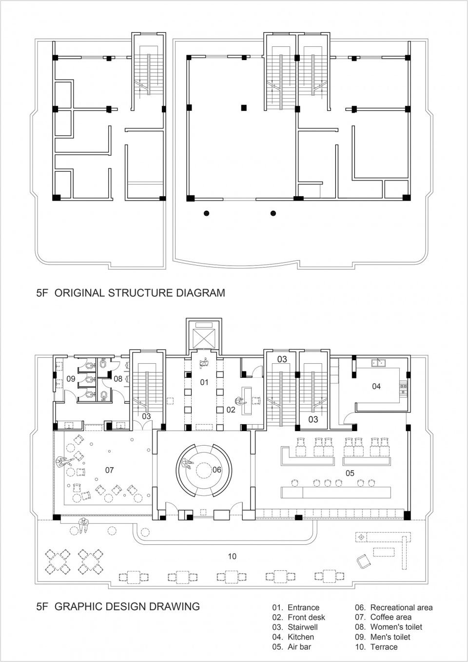
03. 酒吧
餐廳並未采用大麵積的窗戶頂部降低空間,然後橫向大開窗然後引入外部的海景(限定空間內人的視野範圍),設計師從空間開始調動情緒。在極簡的硬裝下,設計師在五樓餐廳開啟自然畫卷隔著玻璃感受著四季的變化,用借景這一手法,表明了設計主題“春去秋來”。
打通5F~6F樓板,裸露的鋼筋混泥土梁,承上啟下,野性空間酒吧將整個空間的氛圍定調,悠然與閑適感從進入的那一刻便升起。考慮到酒吧自帶的慵懶喧鬧的氛圍,設計師以沉寂的色調搭配質樸的肌理,為整個空間注入一道以靜製動的韻律。
保留著當時對於空間功能和建築美感的理解,因而延續了建築的原始結構,保留了本有的房梁,搭配石材卡座以新的方式,賦予不同的空間體驗。
04. 下午茶
大海是自由的,森林也是自由的,讓自然重新融入新空間換發生命,錯綜複雜是自然的規律,沒有約束才能得到自由,空間中的樹幹重新注入生命,以此能給別人帶來更多的思考。
05. 休閑區
承接而下的樓梯小徑,散落的光線為此增添一分神秘的味道,將人引入一片拙樸而典雅的氛圍。
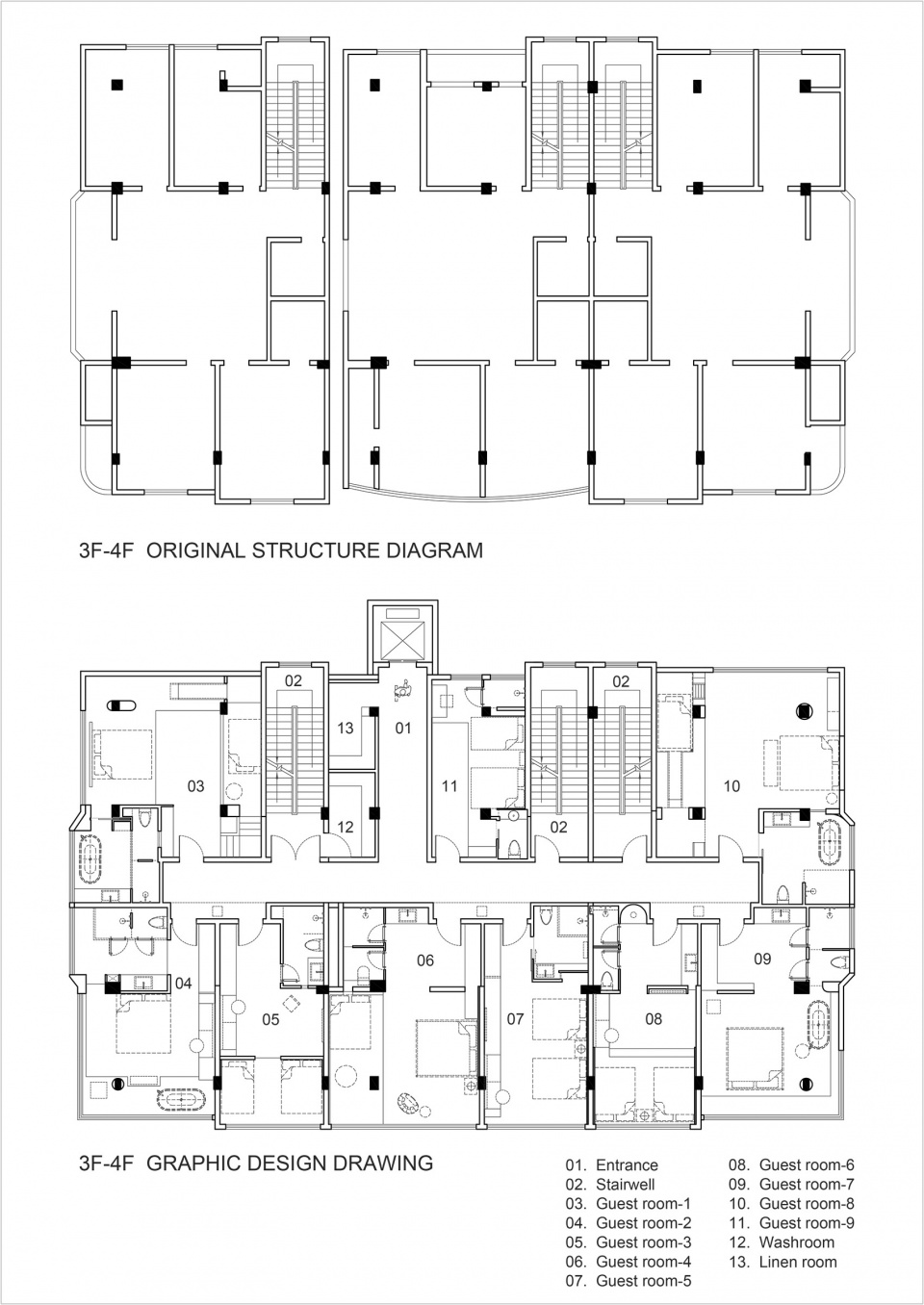
06. 民宿住房
閑適的主調從推門而入的大麵積海景開始,自然光景透過大麵玻璃窗與室內空間相映生輝,澄澈清爽的夢幻之感便在內外空間的對話中誕生。
光影自帶魔法,將陽光下粼粼閃耀的波光調和,待流入人的視野之時,便是一片溫柔細膩。
房間內獨占一片浪漫海景,粼粼的波光晃入室內,與房間內的木質香氣一同在空中浮沉,為整個房間增添了無窮盡的浪漫主義色彩,度假感就在這樣的氛圍中變得生動起來。
設計師重視材質的肌理質感和真實呈現,在多種自然材料的疊加使用中,營造休閑質樸的靜謐氛圍。保證空間舒適度與功能性的同時,創造出令人放鬆且安心的度假氛圍感,在線條流動中傳達出溫和平靜的情緒感受。
海風與光照毫無保留地在空間中流動,占據空間的每一個角落,與搶鏡入畫的小嶼一同,構建起新的空間秩序。
身體在自然光景的滋養中,與空間場域發生了千絲萬縷的聯係。對於生活的美好,便在光影交織、一海一樹的藝術意境中,得到了全方位地感知。
關於浪漫,海占一半。
弧形的圓拱設計,營造出洞穴般的原始風情,同素淨的牆壁一起,展現出一種質樸的粗糲感。光影如海浪般在屋內起伏,勾勒著建築的邊界與線條。在強化了弧的張力的同時,延伸著曲麵帶來的視覺廣度。
07. 時間餐廳
餐廳空間以沉寂的色調搭配質樸的肌理,通過微水泥牆麵與深色軟裝格調的設置,保留整體的幹淨與簡單。
一器一物,一茶一飯,生活的動人,往往就在於不著痕跡卻又恰到好處的細節之中。
大麵積落地窗的運用,從外向內引入更多的自然幻想,流動縈繞的光影,是一種看得見的建築之美。
建築的精神也是心靈境界的呈現,設計師將沉穩冷靜寓於材質肌理之中,創造出簡的空間,給人素雅與質樸的自然感。
保存一份熱愛,奔赴下一場山海。
∇ 1層平麵圖
∇ 3-4層平麵圖
∇ 5層平麵圖
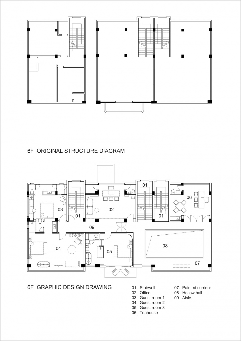
∇ 6層平麵圖
項目信息
項目名稱:湄嶼佑見
設計單位:大小設計工作室
設計總監:蘇清華
設計團隊:歐誌鵬 卓建凡 黃萍萍 吳湘霞 陳瑩瑩
項目麵積:2000+㎡
設計時間:2021/04
完工時間:2022/06
主要材料:藝術漆、木飾麵、崗石、鋁板、水洗石
施工單位:李建裝修工作室
項目攝影:ACT STUDIO
項目地址:福建省莆田市湄洲島高朱北環東路245號














































