情感升華,戲劇演繹,蔚來交付體驗中心新感受
With emotions running high and drama in full swing, the NIO Delivery Center promises a new experience.
泊赫設計以“新空間”理念賦能蔚來體驗中心,創造了交付環節的新體驗。在深切洞察用戶與汽車、與品牌聯結的每個觸點後,將情感、精神屬性置入功能性空間。流動的空間串聯起一幕幕詩意場景,一場人與車的特殊結緣,在情緒的此起彼伏中上演。巔峰時刻的期待感、儀式感、紀念性,成為每個用戶心中獨有的生命記憶。
Empowered by the concept of “new space”, POHE Design has created a new delivery experience for NIO Delivery Center by infusing emotional and spiritual attributes into functional spaces following a thorough examination of every single point of interaction among users, cars, and the brand. The fluid space intertwines poetic scenes and cultivates special emotional connections between individuals and their cars. This results in a truly unique and memorable life experience for each user, complete with a range of emotions such as anticipation, ceremony, and commemoration that come along with the emotional ups and downs.
情理中,意料外
Reasonable but Unexpected
∇ 門店與街區關係Relationship between Store and Street Block
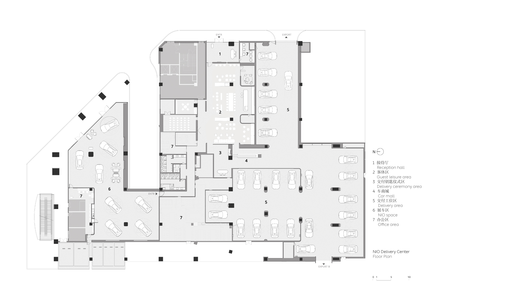
蔚來長沙交付體驗中心NIO Delivery Center,位於長沙市梅溪新天地商場,是湖南地區目前最大的交付體驗中心。室內麵積總計2500平方米,包含接待廳、展廳、客休區、交付轉換區、交付工位區、辦公空間等多個功能區域。
NIO Delivery Center, currently the largest delivery experience center in Hunan, is situated in the Meixi New World of Changsha. Covering a total indoor area of 2,500m2, the center includes a reception hall, exhibition hall, customer lounge area, delivery transition area, delivery workstation area, office space, and other functional areas.
為了避免形式上的同質化和周圍環境帶來的視覺幹擾,本案的設計機構泊赫設計通過更加通透、簡約的設計語言,賦予蔚來獨特新穎的臨街形象。
In order to steer clear of formal uniformity and visual distractions from the surrounding environment, POHE Design has given the NIO Delivery Center a distinct and innovative street-facing facade using a more transparent and minimalist design approach.
∇ 項目外立麵©張大齊 Project Exterior © Zhang Daqi
#01 建立情感鏈接
Establishing Emotional Connections
從外立麵到室內空間設計,泊赫設計延續了蔚來既有視覺體係,同時引入現代空間極致、純粹的表達方式。
POHE Design has skillfully blended the ultimate and pure expression of modern space into the exterior facade and interior space design of the NIO Delivery Center, while staying true to NIO’s established visual system.
入口前廳開啟了整個交付體驗中心的空間基調,呈現出包容、開放、高級的品牌形象。對景牆麵上的柔光logo第一時間建立起品牌與用戶的視覺連接。
The entrance lobby sets the tone for the entire delivery experience center, projecting a brand image that is inclusive, open, and high-end. The soft light logo on the feature wall creates an instant visual connection between the brand and its customers.
∇ 前廳©張大齊Lobby © Zhang Daqi
四周通透的立麵材質反射著燈光,將訪客的目光引入客休區,傳遞著空間動線的行進,以及情緒體驗的遞進關係。
The transparent facade material reflects the light and beckons visitors into the customer lounge area, guiding the movement flow within the space and conveying the gradual progression of the emotional experience.
∇ 客休區©張大齊 Customer Lounge Area © Zhang Daqi
∇ 水吧區©張大齊 Bar Area © Zhang Daqi
客休區麵積和座位配比根據運營調研分析而設計。開放靈活的桌椅陳列營造了人們輕鬆交談的氛圍,牆麵展示著品牌與用戶的文化共創內容。
The size and the seat ratio of the customer lounge area are carefully designed based on operational research and analysis. The open and flexible layout of tables and chairs fosters a relaxed atmosphere for conversation, while the wall showcases cultural creations that are co-created by the brand and its users.
#02 演繹場景戲劇性
Interpreting Dramatic Scenes
穿過客休區,一個朦朧的“盒體空間”浮現在眼前。U型玻璃具有半透明的視覺效果,雖然超出項目慣用的材料選項,但呈現出夢幻的神秘感、美好的憧憬感,以及前置的交付感受、互動氛圍,充分表達了空間要傳達的情緒體驗。
As visitors make their way through the customer lounge area, a misty “box space” comes into view. The U-shaped glass creates a semi-transparent visual effect that goes beyond the usual material options for such a project, evoking a dreamy sense of mystery and longing. This, along with a sense of anticipation and an interactive atmosphere for delivery, fully conveys the emotional experience the space aims to create.
∇ 交付轉換區©張大齊 Delivery Transition Area© Zhang Daqi
特別值得一提的是,U型玻璃是設計中引導情緒變化的重要材質,設計團隊通過反複對比打樣,對其模數和排列進行組合,嵌入線性燈光,打破了原有玻璃隔斷形式的視覺疲勞,並根據前期設計預設的安裝形式進行嚴謹施工。
An important detail to mention is that the U-shaped glass is a critical element for guiding emotional shifts in the design. The design team conducted multiple rounds of comparison and prototyping to combine its module and arrangement, and embedded linear lighting to break the visual monotony of the original glass partition form. The installation was carried out with great care, adhering to the predetermined installation method established during the earlier design phase.
∇ U型玻璃細節©張大齊 U-shaped Glass Detail © Zhang Daqi
在這裏,一層玻璃,演繹出現代劇場的先鋒感和戲劇性。空間秩序和情感體驗逐層展開,起承轉合之間,用戶與品牌交互的點滴記憶不斷被喚起,共同迎接交付時刻的巔峰體驗。
Here, a layer of glass embodies the avant-garde and theatricality of a modern theater. The spatial order and emotional experience unfold gradually, with each stage building upon the last, evoking users’ memories of their interactions with the brand and ultimately culminating in the peak experience of delivery.
#03 重塑親密關係
Rebuilding Intimate Relationships
從相識、相知到最終決定購買,是人與汽車、與品牌的深度互動。這個過程,像極了我們日常生活中親密關係的建立。而交付鑰匙的一瞬,代表著一種承諾和緣分的締結,是汽車所屬權發生轉移的重要節點,有著特殊的儀式感和紀念意義。這一重要的核心體驗引領著新交付中心的設計策略,並不斷影響著其他空間的設計思路。
From the initial acquaintance and familiarity with a car and brand to the ultimate decision to make a purchase, it involves a profound interaction among individuals, car, and brand. This process is reminiscent of how we establish intimate relationships in our daily lives. The act of handing over the key represents the establishment of a commitment and fate. It signifies a crucial moment of ownership transfer, imbued with a unique sense of ceremony and commemorative significance. This important core experience serves as a guide for the design strategy of the new delivery center and continues to influence the design concept of other spaces.
∇ 鑰匙交付區©張大齊 Key Delivery Area © Zhang Daqi
繞過朦朧的U型玻璃入口,便踏入交付鑰匙區。一麵動態屏幕如畫卷懸垂於端景牆前,講述著用戶與蔚來相知、相識的故事情節。數智化的交付係統與智電汽車的產品基因在這裏得到完美的契合與智慧的表達。
As visitors pass through the misty U-shaped glass entrance, they step into the key delivery area. A dynamic screen hangs like a scroll in front of the end feature wall, recounting the story of users getting to know and familiarize themselves with NIO. The intelligent delivery system and NIO’s product gene of smart electric cars are perfectly integrated and intelligently expressed here.
當屏幕逐漸暗下,追光燈將承台照亮,用戶的目光即刻定格在裝著鑰匙的禮盒上。專屬顧問隨即遞上鮮花與禮品,慶祝並記錄這一美好時刻。
As the screen gradually dims, the spotlight shines on the podium, drawing the user’s gaze to the gift box containing the key. A dedicated consultant then presents flowers and gifts to commemorate and capture this unforgettable moment.
這一“神聖時刻”,將視覺、聽覺、觸覺、嗅覺,以及心理的情緒起伏渲染得恰到好處,在用戶見到愛車之前提前抵達期待的巔峰。
This “sacred moment” masterfully combines visual, auditory, tactile, olfactory, and psychological emotional fluctuations, culminating in the peak of anticipation for users before they lay eyes on their beloved cars.
#04 觸發情緒共鳴
Triggering Emotional Resonance
穿過LIFESTYLE的展陳區,用戶可以隱約看見愛車身影,外在輪廓和色彩,與用戶期待的情緒產生又一次的心弦共鳴。
As users walk through the LIFESTYLE exhibition area, they catch a glimpse of their beloved car’s silhouette, exterior contour, and color, triggering yet another emotional resonance in their hearts.
大麵積的光源照亮汽車的流線型態和工藝細節,進一步烘托出事件中的主角。人們迫不及待的拍照留念準備試駕,以此釋放情緒的高點,最終完成了汽車交付的全過程。
The expansive light source casts a glow on the car’s streamlined shape and intricate details, elevating it to the forefront of the event. Users eagerly snap photos and prepare for a test drive, releasing their emotions and culminating the entire car delivery process.
∇ 交付工位區©張大齊 Delivery WorkStation Area © Zhang Daqi
在交付汽車的整個事件中,泊赫設計以故事發展的情節和重要時間節點定義空間的功能及情感基調。不斷推演的空間動線一步步緊扣用戶的情緒起伏,行為與心理在流動的空間中譜出和諧的奏鳴曲,這是設計機構與品牌努力創造的一場浪漫邂逅。
POHE Design has meticulously crafted the spatial function and emotional tone of the entire car delivery process based on the storyline and crucial time nodes. The spatial flow evolves continuously, intimately mirroring users’ emotional fluctuations, while behavior and psychology harmoniously create a symphony in the space. It is a romantic encounter that the design agency and brand have meticulously crafted.
#05 價值重構新範式
Value Reconstruction with New Paradigm
在這個項目中,泊赫設計對汽車展廳的垂直領域形成了係統而深入的研究體係、實踐方法、理念引領。新消費空間的迭代是商業變革中的必要環節,這對室內設計公司提出了更高的要求。不僅解決設計專業技術層麵的問題,更要在設計思維、用戶體驗、行為心理、工作模式等層麵產生變革。
In this project, POHE Design has embarked on a systematic and in-depth research system, practical methodologies, and conceptual leadership in the vertical field of automobile showrooms. The iteration of new consumer spaces is an integral link in business transformation that imposes elevated expectations on interior design companies. This endeavor not only addresses professional design-related issues but also drives transformations in design philosophy, user experience, behavioral psychology, work models, and other related areas.
泊赫設計一直專注於地產與商業設計,洞悉人們的生活方式和精神訴求,為客戶創造有價值、可持續的新空間。他們通過“新空間”理念營造“情理中、意料外”的生活樣本。在超現實主義美學中,萃取戲劇、衝突、剝離和旁白的設計手法,運用業態跨界、場景體驗等來敘述空間故事。著重策劃人與空間的價值重構,設計創造承載生活方式、情感鏈接和可持續運營的新空間。
POHE Design has a longstanding commitment to real estate and commercial design, with an exceptional understanding of people’s lifestyles and spiritual aspirations. The company is dedicated to delivering valuable and sustainable new spaces for their clients. They leverage the “new space” concept to create living samples that are “reasonable but unexpected”. Incorporating surrealistic aesthetics, they skillfully extract design techniques of drama, conflict, stripping, and narration, and employ cross-sector collaboration and immersive experiences to convey compelling spatial stories. With a primary focus on the reconstruction of value between individuals and spaces, POHE Design strives to create new spaces that incorporate lifestyles, emotional connections, and sustainable operations.
∇ 軸測圖 Axonometric Diagram
∇ 平麵圖©泊赫設計 Plan View © POHE Design
項目信息
項目名稱 | 蔚來交付中心,長沙梅溪新天地
Project Name | NIO Delivery Center, Meixi New World, Changsha
項目業主 | 蔚來汽車銷售服務有限公司
Project Owner | NIO Automobile Sales and Service Co., Ltd.
地點 | 中國,長沙
Location | Changsha, China
服務範圍 | 建築立麵改造+室內設計
Services Provided | Architectural facade renovation + Interior design
麵積 | 1,872㎡
Area | 1,8722
外立麵麵積 | 516㎡
Facade Area | 516 m2
完工時間 | 2023年2月
Completion Date | February 2023
業主空間設計管理團隊 | 張淩雲 劉坤 李翔 楊輝
Owner’s Space Design Management Team | Zhang Lingyun, Liu Kun, Li Xiang, Yang Hui
設計公司 | 上海泊赫環境藝術有限公司
Design Company | Shanghai POHE Environmental Art Design Co., Ltd.
空間設計 | POHE 設計部
Space Design | POHE Design Department
設計策劃 | POHE 策劃部
Design Planning | POHE Planning Department
項目管理 | POHE 項目管理部
Project Management | POHE Project Management Department
項目室內照片及視頻攝影 | 張大齊
Project Interior Photography and Videography | Zhang Daqi






























評論(1)
很好的學習作品