形態在簡、木色潤澤,光影間自然色調的微妙變化將空間的柔性點亮,呈現出屋主理想中的自然、耐看且舒適的高級視覺感官,體塊合圍下紋理與造型交互,行走坐臥間,悅己自在,溫瀾潮生。
追求連續的運動空間,變為一種生動的力量。從而創造一種流動的、貫通的、隔而不離的整體空間效果。不同功能區互相滲透,幾個區域的弧形頂麵造型在各自的空間延伸,連綿不斷的層次讓空間視覺更具縱深感。
用細膩輕盈的語彙將對空間的把控融入細枝末節,墨色的點綴勾勒空間結構與質感,打破空間的單調,沉靜的空間多了幾分張力。材料的情感來自於人們對他產生的感受,即質感,以溫和自然為主,原木質感融入沉穩、淡然的韻味,紋理獨特的洞石自帶天然的溫度感與奶油般的潤澤感,自然與現代碰撞出火花,相互映襯之下風雅的美感迸發,帶來美的享受和整體的舒適。
經由意識的表達,關於家的構想被逐漸具象。澄澈自然的色彩以一種平靜的方式與材質交融滲透,立麵與電視背景處的隔板選以實木整木材質做擦色,允許天然的不規則點綴於空間裏,勾勒溫潤淡雅氛圍的同時又不會顯得太過單薄。
一隅圓融,一處吧台,臨煙火,酌清歡。注重形式與功能上的強調,以素雅營造明淨,超長的大島台作為極具體量感的空間元素與建築結構生發出的化學反應,是妥妥的家居空間實用性裝置藝術品,碰撞出多樣的形式感和幾何感,滿足多功能的同時對理想生活的憧憬和儀式氛圍感滿滿。
尋求一個最佳的平衡點,兼納光、影、聲、色,帶領潔淨純粹的基調通向自我與盡興,理想烏托邦在生活中生成具象。幹淨利落的線條藝術為此後豐富的延伸埋下伏筆,在純粹與簡淡裏覓得真正的自由精神。
築構光影場景,塑造重輕關係,將空間和功能整合,用細節設計蘊含生活的情調,過濾色彩、形狀、質地,從功能性出發,感知溫度,卸一身繁重,回歸理想生活。
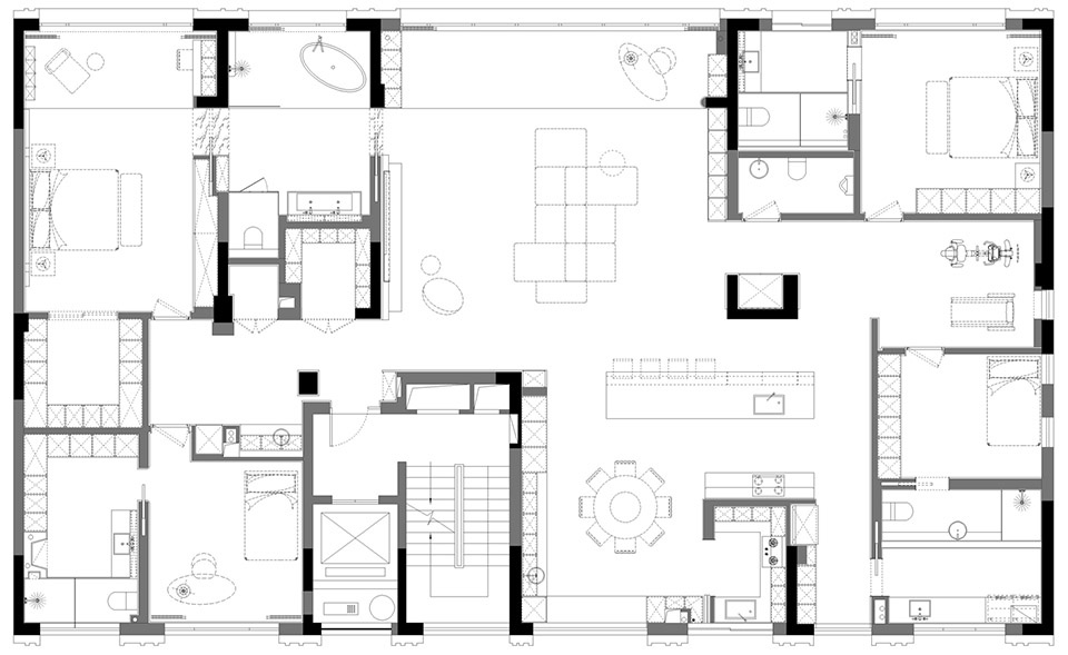
∇ 平麵圖
項目信息
項目名稱:伊頓公館
項目地址:浙江嘉興
設計麵積:平層330㎡
室內設計:杭州辰佑設計
施工單位:梵品築匠
項目攝影:形在空間攝影 賀川

























