Mawu Café 是一家位於印尼泗水市中心的小型咖啡館和私人辦公室。全白色金屬外殼,該結構使其成為Ketabang 社區中引人注目的新成員。
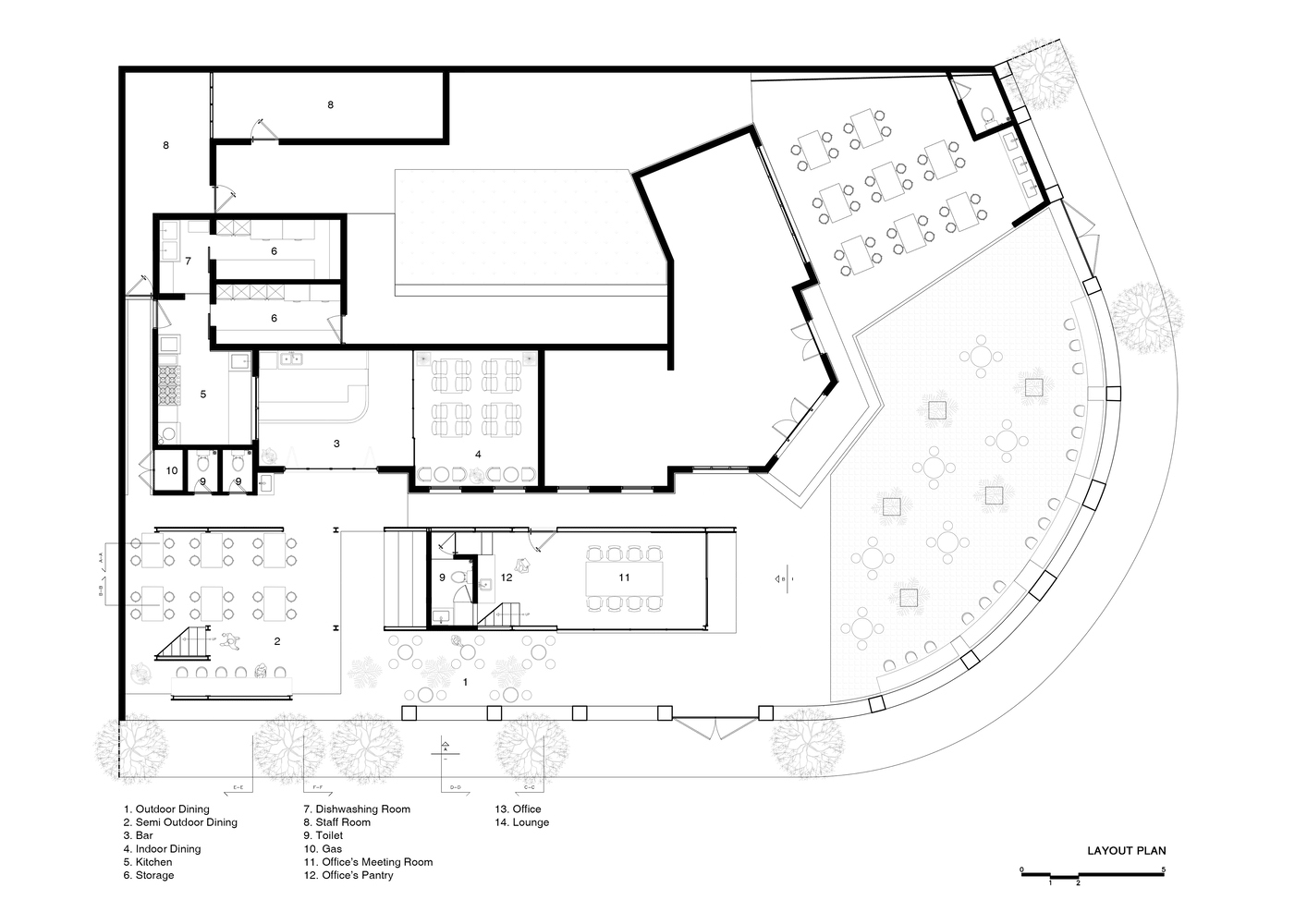
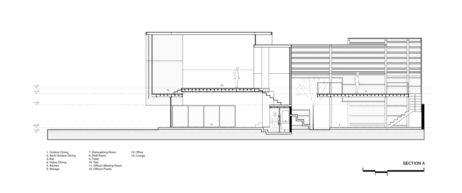
現有的大部分材料和細節都暴露在外,作為咖啡廳的結構和建築元素,而重疊平麵的組成和對現有建築輪廓的回應則作為對內部和外部的建築表達。這些設計提供了充足的光線,以不同的方式照射和落在房間的每個平麵和側麵,牆壁之間的縫隙允許空氣和顧客自由地進出空間。
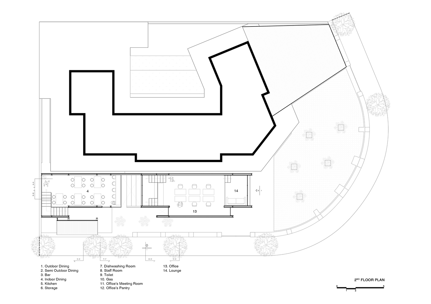
作為一個小型公共空間,視覺連通性通過牆壁上有開口的開放式平麵呈現在每一層。新舊建築之間的關係隨著它們之間相互交織的功能而被放大。現有建築設有酒吧、廚房和室內用餐區;而新結構可容納辦公室和半戶外用餐區。
∇ 模型照片
∇ 一層平麵圖
∇ 二層平麵圖
∇ 剖麵圖
∇ 爆炸分析圖
版權聲明:本站所有文章除投稿授權發布外,其他文字內容均為原創,享有著作權保護,未經許可不得以任何形式進行轉載(包括且不限於:媒體、網站、公眾號等)。所有項目照片/設計圖形版權歸原作者所有。本站部分內容源自網絡公開資源或用戶分享,如若侵犯了原作者的合法權益,可聯係我們進行處理。


































