設計之初
孩子們心中的房子是怎樣的?他們需要什麼樣的空間環境?這是我們設計之初所思考的問題。我們希望這是一座透著滿滿童心與愛意的建築,這裏有充分考量且適宜於孩子們的建築形式、空間尺度及成長環境。
∇ 區位
項目背景
天府三幼位於成都市溫江區主城區,項目用地麵積約10.8畝,呈規則矩形。其東南、西南側臨市政道路,北側為萬盛TOD公園,西側為規劃中學,東側為市政用地,南側隔錦府路為在建住宅。
項目規模為15班幼兒園,總建築麵積9200㎡,地上建築麵積6200㎡,地下建築麵積3000㎡,周邊配套完善,交通便捷。
設計理念——夢想“家”
我們發現孩子們畫筆下的“夢想家”是充滿童真趣味的,一棟棟坡頂小屋,色彩鮮豔,形式可愛。設計中我們從孩子們的筆下抽象出基本的建築單元模塊,模塊之間留出縫隙,並通過組合、扭轉,形成聚集在場地內的建築群。
∇ 方案生成
“村落小院”:內向性的場所空間
建築群通過圍合的布局形成核心“院落”空間,塑造出具有安全感的內向性場所。在這裏,一座座小屋向院內“張望”,連接彼此的環廊暗含出了邊界,院內鳥語花香、綠樹成蔭,孩子們嬉戲玩耍,歡聲笑語。我們希望這樣的“院落”空間能讓他們能感受到大自然的氛圍與溫度,成為孩子們可以自由探索的空間。
∇ 設計分析
“趣味空間”:激發孩子們的探索天性
在二、三層,通過連廊將建築群相互串聯,形成一個“活力環廊”,環廊的路徑上除了基本的建築功能單元,也出現各種因建築基本單元扭動而成的“犄角旮旯”空間 ,孩子們通常對這樣的空間充滿好奇,樂於駐足嬉鬧。這些空間同樣也可作為開方式兒童閱覽區、活動區、手工作品展示區……我們希望這樣的不規則空間,將為兒童自發活動及情境教學提供開放性場所的可能,並激發孩子們的探索天性。
立麵設計
坡屋頂建築群:在起伏的白色坡屋麵中,我們利用彼此之間的間隙穿插置入透光的玻璃坡屋頂,為幼兒的戶外活動空間塑造多樣的光影效果和空間感受,“它們”正如兒童畫筆下的小屋,心中的“夢想家”。
溫暖的色彩:色彩上為避免出現五顏六色的視覺衝擊,建築群整體以白色為主色調,屋簷下、窗框內配以同色係的暖黃、暖橙、暖木作為點綴色,旨在創造一個溫馨暖意的幼兒成長環境。
∇ 總圖
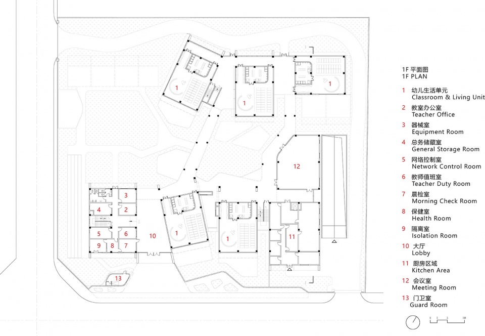
∇ 1F平麵圖
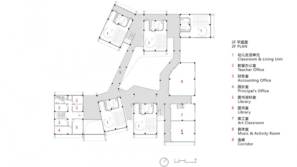
∇ 2F平麵圖
∇ 3F平麵圖
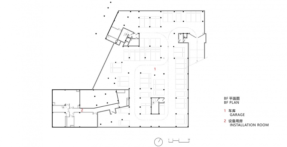
∇ BF平麵圖
∇ FF平麵圖
項目信息
項目名稱:成都天府第三幼兒園
項目類型:教育建築/幼兒園
設計方:成都惟尚建築設計公司
設計年份:2018
完成年份:2022
設計團隊:楊進洪、劉銘、沈茂良、張月
施工圖團隊:李海東、譚明浩 、楊睿、邱彬芮、鍾波、呂康
項目地址:四川省成都市溫江區錦府路成都SBI創業街東北側約190米
建築麵積:9200㎡
攝影版權:淺深攝影
客戶: 四川隆和紫樾房地產開發有限公司
材料:混凝土、玻璃、塗料、金屬
































