Casa Patio 位於哥斯達黎加太平洋沿岸的蓬塔雷納斯 ( Puntarenas),位於 Playa Hermosa 的豪華住宅區。該項目是在一個 1924㎡的房產內開發,周圍環繞著花園,地處熱帶自然環境中,該社區環繞著西側的太平洋。
這片土地的特點是平坦,兩側有兩個斜坡,將相鄰的地塊分開。在它的兩個主要端點,一個入口麵向公共街道,另一個則可以看到海景。房子的設計麵積為800㎡,設計的目的是創建一個帶有私人區域的主功能區,社交區的規劃是主功能區的橫向部分,優先考慮海景。
第二層的私人功能區為第一層的露台、融入露台的主要社交空間和包含植被的中央庭院提供覆蓋和遮蔭,以便對該庭院周圍的區域進行生物氣候處理。項目坐東朝西,主景觀海,幸運的是可以看到日落。擁有完善的服務區、主臥、5間次臥、以及朝西的大型社交區,盡享與大海融為一體的夕陽。
圍繞主庭院的建築方案的組成使這座別墅對花園充滿新鮮感和透明度,將外部與內部融為一體,營造出一種“始終與自然共享”的感覺。
Garnier Arquitectos將這座住宅的設計稱為“當代熱帶”,建築師將其帶入現代,同時不忘記哥斯達黎加的氣候及其位置,使用混凝土、金屬和玻璃等材料,與木材、粘土磚和植被混合,軟化現代感並增添溫暖感。此外,這些材料有助於在整個項目中解決的生物氣候設計。
∇ 建築設計概念
∇ 爆炸分析圖
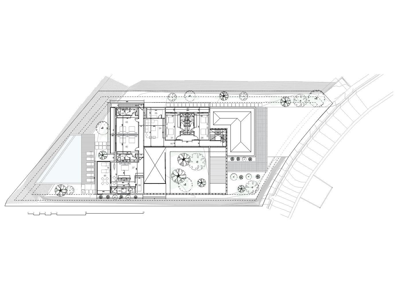
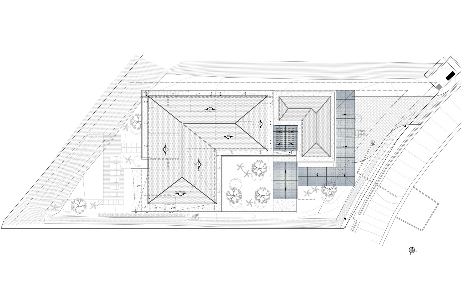
∇ 平麵圖
版權聲明:本站所有文章除投稿授權發布外,其他文字內容均為原創,享有著作權保護,未經許可不得以任何形式進行轉載(包括且不限於:媒體、網站、公眾號等)。所有項目照片/設計圖形版權歸原作者所有。本站部分內容源自網絡公開資源或用戶分享,如若侵犯了原作者的合法權益,可聯係我們進行處理。


















































