楔
現代人以服裝作為自我的延伸,借助時裝讓唯我論在庸碌宇宙中顯聖。我們在此討論,如何製造一個「時尚」的容器?拒絕追逐流行的虛型,將複製品歸入劣等,以拓荒者的姿態展露態度。正如阿庇亞認為:不應製造森林的幻覺,要創造身處森林者的幻覺。
映射
這是無壁壘的設計精神對於雷同化的醫治,一次語義轉換的美學實驗。設計以敘事性的幾何法則,對建築進行量裁。豎向元素呼應圈定空間,塑造出更具凝聚性的場域。拆解自然,使其轉化為人造室內足夠容納的美學符號。於是,「水」作為多種意象的合集被引用——容納者、深刻的覺受反應與自觀之鏡。以易感的能量法則,池在靜默沉肅的整體氛圍中泛起波瀾,賦予空間永不固化的流動性靈魂。
糅合
撕開風格的邊界,塑造包羅萬象的自我。不依附於任何一個時期、任何一種「主義」,任由錯綜的時間線在此交彙,如同一切故事的元點。極具張力的構造中,縱深延展,穿越時空雙重屬性的動線。人為構置的墟壤中,新舊反差以視覺語言衝擊著整體環境下的陳腐烙印。簡單的林立陳列,也能碰撞出強烈的情緒轉折。
終
在此處,思維能夠超越桎梏,在符號化的遺跡中得以重塑與新生。推翻巴比倫的沉悶後,一切便脫胎於骨質的灰白。
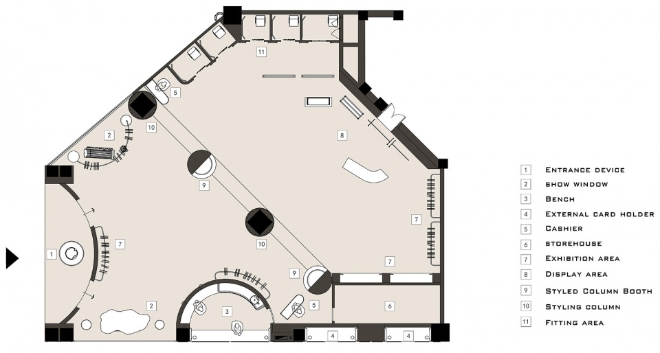
∇ 店鋪平麵圖
項目信息
項目名稱:24ANS
項目類型:零售空間類
設計方:E27 STUDIO
項目設計&完成年份:2023
設計團隊:Terri 汪衍 ;Jazmin 周敏
項目地址:COSMO 成都
建築麵積:190㎡
合作方:24ANS
攝影版權:Cookie
版權聲明:本站所有文章除投稿授權發布外,其他文字內容均為原創,享有著作權保護,未經許可不得以任何形式進行轉載(包括且不限於:媒體、網站、公眾號等)。所有項目照片/設計圖形版權歸原作者所有。本站部分內容源自網絡公開資源或用戶分享,如若侵犯了原作者的合法權益,可聯係我們進行處理。























