stamp意為郵票、印記、印戳,主理人希望他的空間和咖啡能給大家留下一抹印記,歐洲留學的經曆讓他更喜歡一些有沉澱感的東西,但同時希望這裏保有包容和開放的態度。
此案例采用大麵積暗色調的複古綠配以深色原木和鋁製波浪板,碰撞出不一樣的化學反應。我們設計了三扇3軌綠色木質玻璃移門以及木質卡座折疊窗,讓室內和室外的空間能夠得到完全的交互,結合戶外泥土地鋪設的草坪形成的一塊戶外可露營的區域,滿足了店鋪的社區屬性。
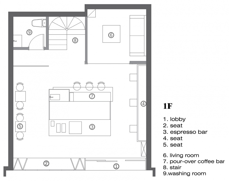
在吧台區域我們專門設置了一個業主的折疊自行車的存放展示區,這對尺寸的要求非常極致。我們將3米長的意式吧台以及手衝吧台平行放置於進門正對區域,利用二樓搭建部分的圍欄,自然形成整個店鋪的門頭,左右兩邊的洄遊動線設置客座區,通過一個回轉樓梯鏈接二樓的小小烘培及間以及其餘客座區。
牆麵使用藝術塗料以及稻草漆,達到不同層次的肌理效果。我們使用大量的材質穿插,鋁製波浪板,不鏽鋼板,藝術玻璃,水洗石等。在空間進行無秩序穿插。
∇ 一層平麵圖
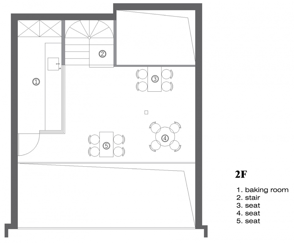
∇ 二層平麵圖
項目信息
項目名稱:stamp cafe
項目類型:餐飲空間設計
項目設計:付楚楚
完成年份:2022
設計團隊:wooom studio
項目地址:成都
建築麵積:100㎡
攝影版權:季光
材料:藝術塗料、稻草漆、藝術玻璃
版權聲明:本站所有文章除投稿授權發布外,其他文字內容均為原創,享有著作權保護,未經許可不得以任何形式進行轉載(包括且不限於:媒體、網站、公眾號等)。所有項目照片/設計圖形版權歸原作者所有。本站部分內容源自網絡公開資源或用戶分享,如若侵犯了原作者的合法權益,可聯係我們進行處理。




























