作為滬上廣受歡迎的放克和靈魂樂俱樂部,SHAKE於2016年首次誕生。如今這家充滿活力的Live音樂酒吧已經重新升級歸來!
這次升級的關鍵就是保留SHAKE精神,讓忠實客戶感受到情懷延續。整體設計遵循SHAKE永不消退的複古情懷和晚餐俱樂部酒吧的理念,這是一個受到音樂啟發並向黑膠時代致敬的環境空間。
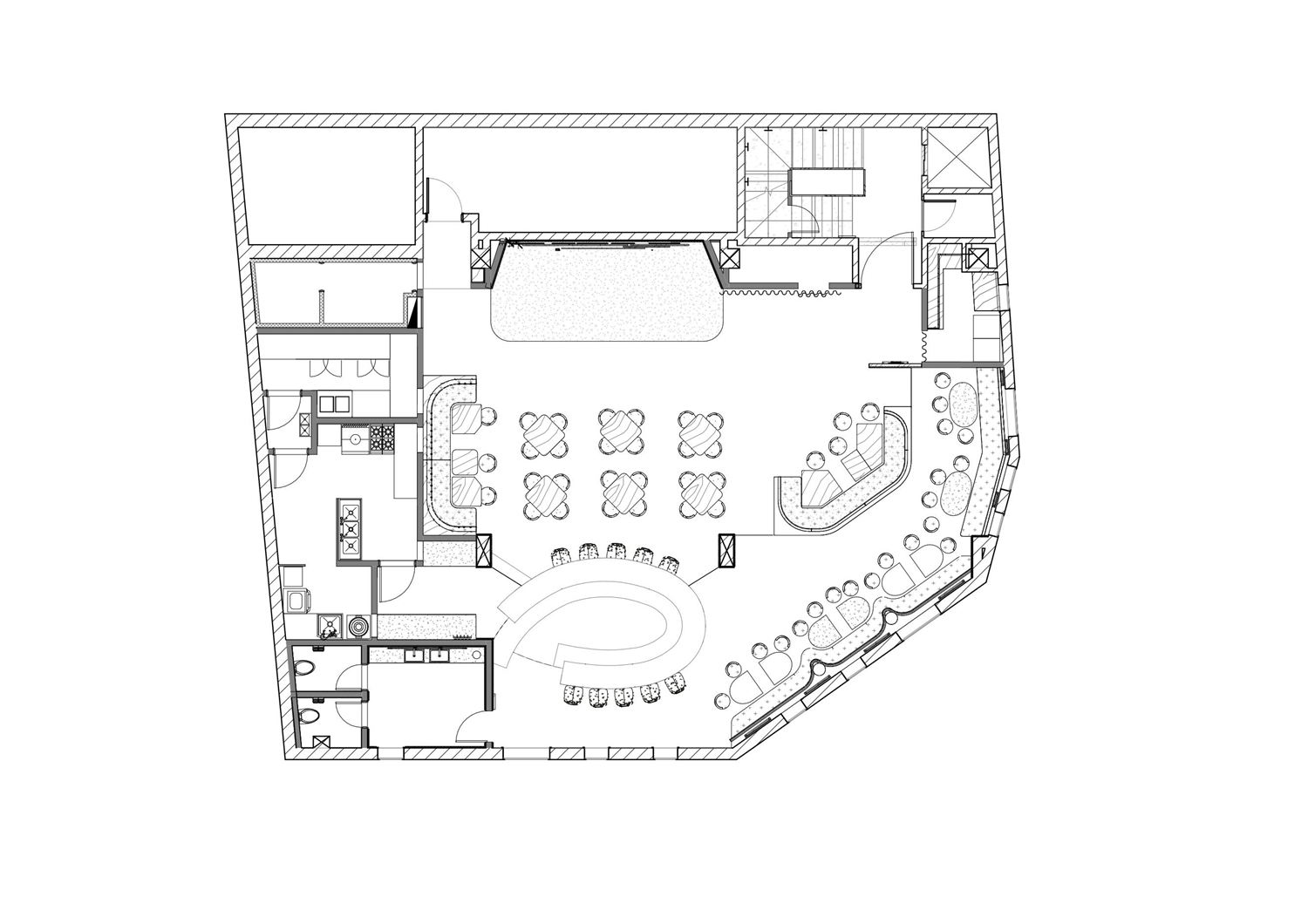
為了給音樂家創造更加一目了然的表演區域,同時擴大場所食物供應,我們對布局進行了優化,因此有了一個更大的廚房和挑高的舞台。作為供應雞尾酒和晚餐的音樂俱樂部,座位安排必須要考慮到用餐和休閑空間的舒適度。
我們將整體布局升級,增加了VIP卡座擴展座位,讓賓客在用餐同時也能輕鬆觀看現場表演。彎曲的天鵝絨長椅取代了高高的桌子,蜿蜒於牆體形成親密的就座區域。現有的紅磚被漆成黑色,燈光柔和照亮了深色灰泥牆,為深紅色和橙色長椅座位營造精致氣氛。複古色調的木質貼麵和大理石,將人拉回晚餐俱樂部時代溫暖和懷舊的氛圍。燈光輕輕掃在唱片和音響振膜上,隨處可見的黃銅元素呼應了華麗迷人的舞台魅力。
舞台是整個空間的焦點,我們的設計可以將全場注意力都集中在音樂家和表演上。大型聲學設計logo以栗色和洋紅色為背景,沐浴在SHAKE標誌性的紫色燈光中。
∇ 分析圖
∇ 平麵圖
項目信息
項目名稱:SHAKE
室內設計:hcreates罕創(上海)建築設計有限公司
主創設計師:Hannah Churchill
設計團隊:Florencia Gutierrez, Yufei Chu
項目地址:上海市黃浦區茂名南路46號3樓
完成時間:2022年
麵積:250平方米
攝影:Graeme Kennedy, Katherine Gu
客戶:SHAKE
施工方:上海澤康建設工程有限公司
版權聲明:本站所有文章除投稿授權發布外,其他文字內容均為原創,享有著作權保護,未經許可不得以任何形式進行轉載(包括且不限於:媒體、網站、公眾號等)。所有項目照片/設計圖形版權歸原作者所有。本站部分內容源自網絡公開資源或用戶分享,如若侵犯了原作者的合法權益,可聯係我們進行處理。






















