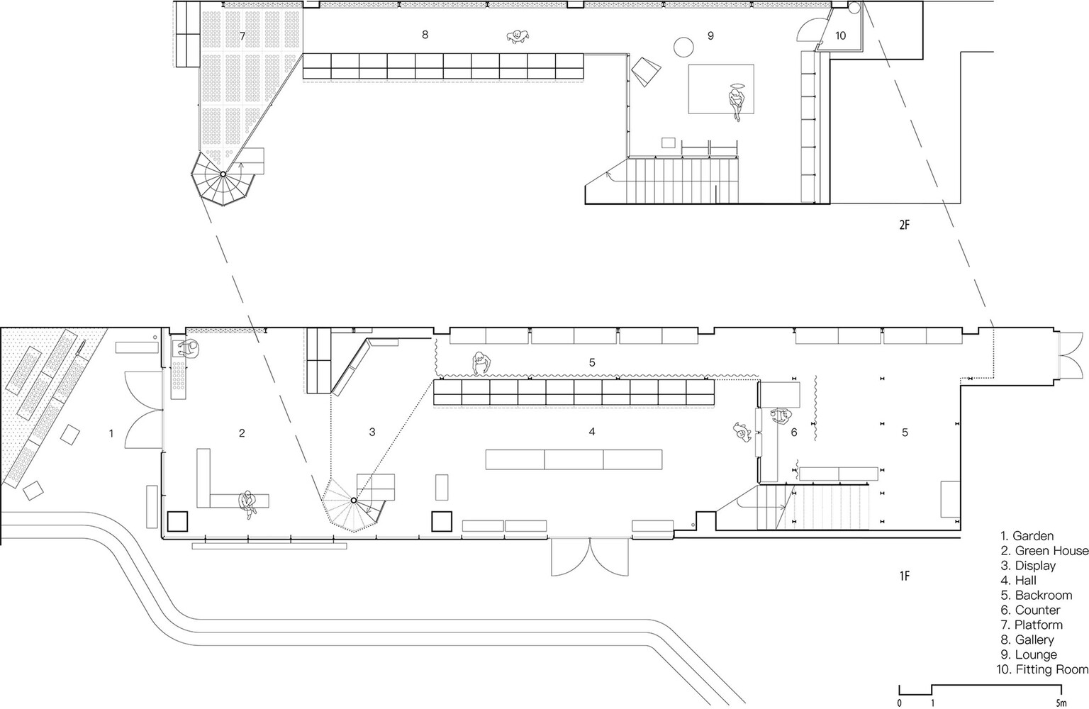
位於成都南郊的大源中央公園曾為垃圾填埋場,應城市南向擴張需求,經水土改良為城市公園。內嵌於公園景觀的下沉中庭原為市政配套,已被改造成新型商業綜合體。其中一座植被繁茂,與上方園林聯結成立體綠色屏障,陽光每日經數層過濾柔化灑向庭院北麵,這便是in the PARK源野的項目基地。場地狹長,三分之二與庭院開敞對望,顯現出理想“長屋”的潛力。
我們受伊姆斯自宅(Eames House)“創造性的美好生活”和“智性的建造”所啟發,以此作為起始的錨點;希望營造機構大樓般幹爽清洌的空間品質,關照生活細節又兼具市政樞紐的建構理性,召喚街角巷尾的日常經驗和集體記憶。
通過從空間剖麵入手,我們運用了一排鋁型材改良而來的鋁合金高展櫃係統來劃分整體空間平麵,同時兼顧正麵對外展示,一層背麵上貨與內部倉儲,以及二層高台陳列,這些功能都被整合進這座鋁合金巨廈(mega-building)中。並結合站台、遊廊、旋轉樓梯和直跑樓梯,提供立體交通動線。動線和視線的組織帶來移步換景的驚喜。L型透明玻璃幕牆輕盈包圍整個空間,如同晶體映射四周。
我們探索了零售環境中信息“正麵性(frontality)”的幾何遊戲,利用長桌、鋁合金展櫃等設施,展現多樣化的商品陳列形態,將不同尺度的物件和圖像合理組合。將以上設施與玻璃幕牆平行配置,形成層次豐富的圖像信息。
我們試圖搭建一套基於日常的建構係統,貫穿建築、室內直至家具的尺度轉換(scale shifting)。例如利用鋁合金工業型材組裝的桌凳係統,避免勞力密集工序,實現材料與製作的集約化。通過工業型材和五金係統的輕量化改造、裝配式建築、商業空間建材的集約預製,以及零售道具的可持續產品化等多層級設計(multiscalar design)議題,我們期待以“智性地建造”無限接近“創造性的美好生活”。
∇ 平麵圖
∇ 剖麵圖
∇ 軸測圖







































