“建築是一種創新的工具,建築就是建造,而設計則是突出那些最真實的意義,自由地運用形式,又不完全依賴純粹的形式處理,使建築富有鮮明的個性,通過環境和材料的選擇產生優雅的魅力,把富有這種魅力的、有生命力的空間呈現。”
——David Chipperfield
空間內外的構建法則
The rules of construction inside and outside the space
每一棟伴山大宅都代表一種身份、一種品位、一種境界。臨山而居,擇水而憩,當生活智慧與理想居所在此交融,保利紫山“伴山別墅”的珍稀之處盡顯,引人向往。
本案坐落於佛山保利紫山,相伴4A風景區展旗山,綠意盎然的山景讓人縱享心曠神怡。在這裏,設計師為居者創作了一間極具質感的開放式簡約別墅。
在保留原始建築物的原有結構上,巨人設計為居者打造幹淨簡潔、更趨於本質化的外立麵。室內空間也並非是獨立於外界的存在,而將其視為建築的延續,在空間中窺見生活的吉光片羽。通過建築思維塑造的室內空間讓設計理念闡釋得更為完整生動,關於光影與流動的故事便在設計師打造的box體塊的介入中娓娓道來。
∇ 概念分析圖
自由尺度/Freedom
私宅設計始於平麵布局,傳統的以牆體劃分功能區域的形式過於封閉壓抑且毫無趣味。設計師打破住宅設計的製式化,用建築化的語言創造了一種自由的、流動的、靈活貫通的整體空間係統。
伴山別墅除了最佳自然景觀,肆意灑脫的自然光照更是地勢最佳饋贈。為將最好的采光引入室內,設計師把原本以樓梯為單一動線的結構情況,拆解成內外有界、公私有度、動靜平衡的三大動線,以主動線、後勤動線及進入負一層的次動線,串聯起伴山別墅的不同功能格局。
而一層與二層之間形成的挑空格局,敲掉了原有的固封牆體,6米高的中空廳落地窗讓空間自由地沐浴在自然光景中,既可獨享日出的洗禮,又可私享傍晚的唯美落日,同時,將室外的一切於無形中悄然引入室內,打造流動的空間體驗。
石材與金屬兩種硬朗材質巧妙地與溫潤的木飾麵融合,打破了常規對稱的背景牆布局,創造了一種虛實結合的閑適墅生活,展現出家宅的張力。
在自由通透的整體空間中,客餐廳連為一體,凸顯了大空間尺度,中空廳與後勤功能區域的劃分以加置的BOX來實現,通過合理巧妙的布局與材質,達到一種看似區分卻又互相交融的自由狀態,這也呈現了現代人生活中空間的多功能性及對靈活的居住環境的極大需求。
設計師根據居住者的實際生活習慣,取消傳統客廳中的大桌子,用方塊組合的沙發與茶幾,增大空間使用範圍;木飾背景牆中置入的金屬box通過陳列層架形式,精心地為墅居者創造更多的展示及儲物功能使用;稀奇藝術的玻璃飾品搭配Akrai野口勇經典藝術氛圍燈令空間漸生雅趣,熠熠生輝;
B&0 Beoplay音響與FLOS皮帶吊燈與沙發地毯彼此搭配,整體色係渾然天成,以繁複元素的有序堆疊,創造富有層次感的氛圍;餐廳中Vitra餐椅搭配原創ARSDEN吊燈,於簡約中創造趣味;與中空廳的紛繁相對,地下一層玄關以留白手法,構造視覺張力,Stellar works扶手椅優雅而立,點綴采光一角,流溢姿態美感……
精神領域/Spirit
對光的感知,是建築結構中的功能常態,亦是建築美學的偏好。設計師將自然光引入室內,作為一種自由流動的介質,與空間中的立體構件巧妙對話。正如蘇州園林的移步換景、景境融通,當人們漫步於客廳,踱步至地下一層,轉入靜謐而安心的休憩場域,輕柔的微風拂過空間的每一寸,光影的細節定格著虛實交織的想象,場域緩緩釋放出“物我相融”的生活方式哲學。
地下一層的采光通風是設計中一個注重點。自然、藝術與文化,是設計於此布下的關鍵詞。而除此之外,不囿於某種統一的風格,而是在東方雅意或西方美學、中式韻味或法式經典,以及黑白極簡等混合語素下,設計師通過天窗改造,大範圍增加了地下層的采光麵。
透光石牆顛覆人們對於“隔斷”的固有印象,建造出“隔而不絕”的整體空間,使其成為空間的連接者。光影與空間聯結並互動,以此消解空間的邊界感,創造出隔斷卻連續的經典美學。如同隱藏著不同驚喜的神秘盲盒,在這裏打開通往未知的豐富精神領域。
混泥土的肌理,窗洞將光或朦朧或皎潔的傳遞,空間呈現著一種物我皆忘的寧靜。舒緩的節奏慢慢的敘述空間之美,朝陽日落,在某一時刻悄然映入牆麵,緩慢的流動,漸隱漸弱,自成空間藝術,光陰與光色的變化帶來空間的一日一景,讓墅居者的身心休憩地生發出有所不同的空間姿態。
∇ 概念分析圖
建築序曲/Construct Transition
設計師深諳業主的感性訴求與期望,出於建築全局考慮,設計師並未大尺度重整結構,轉而采用疊加、重組等手法再造了空間秩序,並在審美直覺和模型求證之間反複調整,創造出“一半自然一半生活”的伴山別墅。
地下一層天花通過疊加、延伸建築的設計手法,利用原有屋脊疊加圓拱造型,延伸了建築的空間秩序,加高的設計讓光自在地遊洄在室內;頂層保留了建築斜麵屋頂的結構,在電梯間加置了光景盒,引入更多的自然光,主衛則在原有基礎上延伸了建築本體,“盒子”構建的天花如插件般嵌入建築,使得天花坡度更低,空間更加豐富。
∇ 概念分析圖
設計後記/Design
豪宅之所以成為豪宅,源於珍稀地利,歸於卓越品位,融於文化精神。在巨人設計的筆下,“家”的藝術不是一種隨波逐流的定式,而是時間流逝後,依然存留於本質中的健康、生活與溫暖,這是超越於某種風格宰製的文化精神,是與理想生活方式深層次呼應的美學創造。
於這棟別墅中,巨人設計希望山景、建築、空間和生活之間是自然而然的和諧狀態,同時是立體交互的延續關係。於是,設計師以先鋒藝術的形式,承載東西方文化此起彼伏的新興韻味,植入自然趨常化、藝術景觀化的生活動線之中,煥新伴山棲居的終極理想。駐足於起居室,人的視野便攬納了綿延山景,臨窗往外望,翠意入懷,盡得自在。
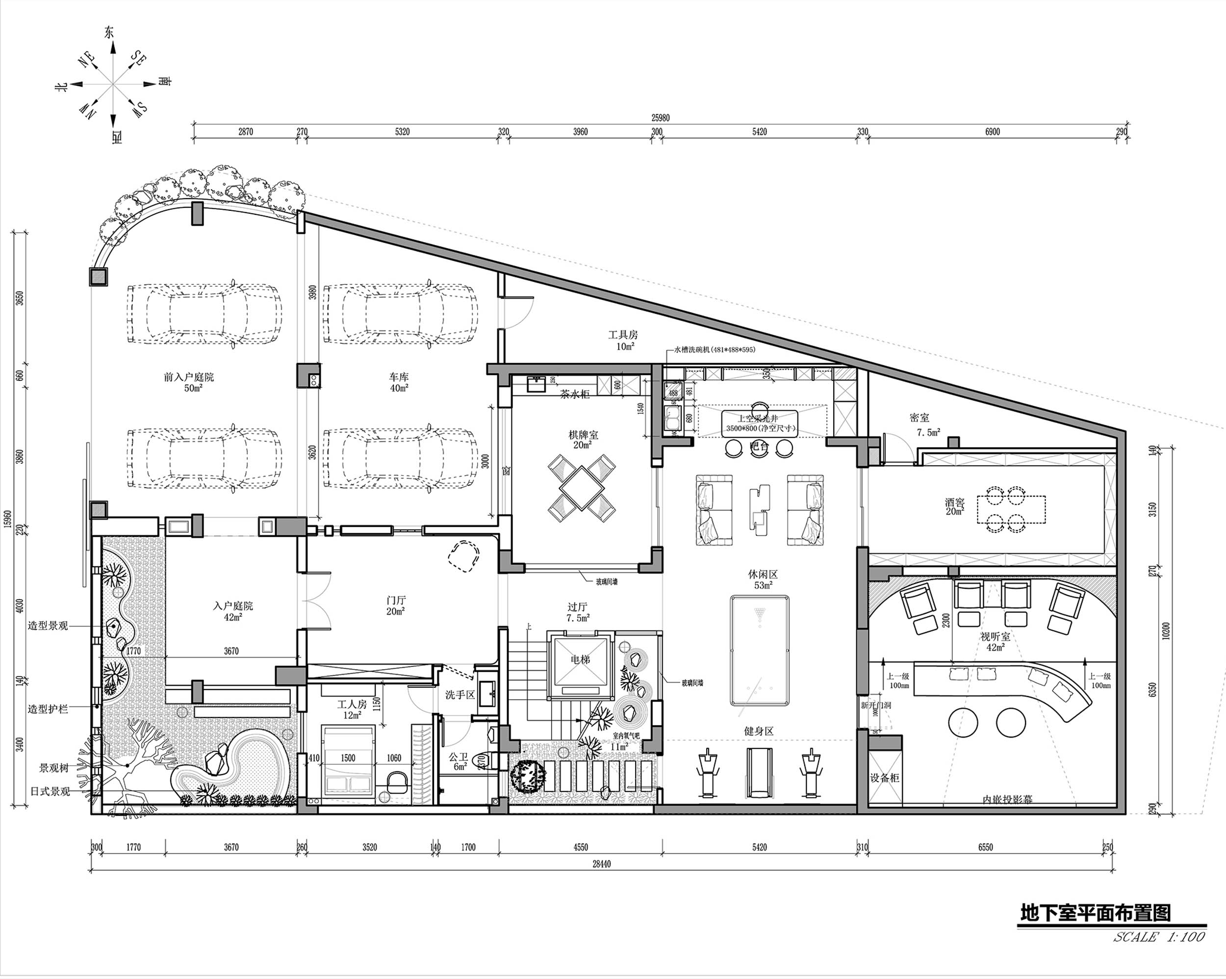
∇ 負一層平麵圖
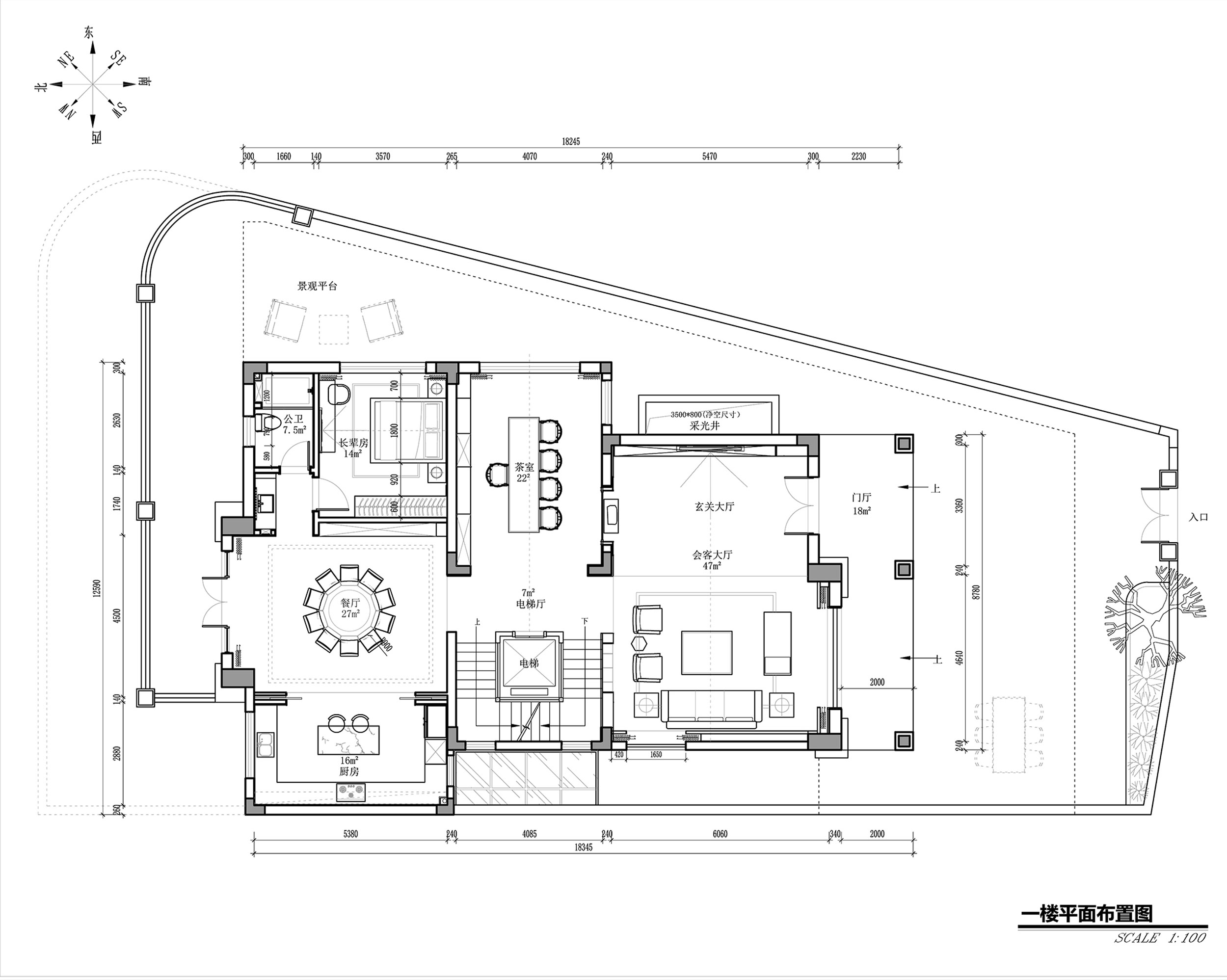
∇ 一層平麵圖
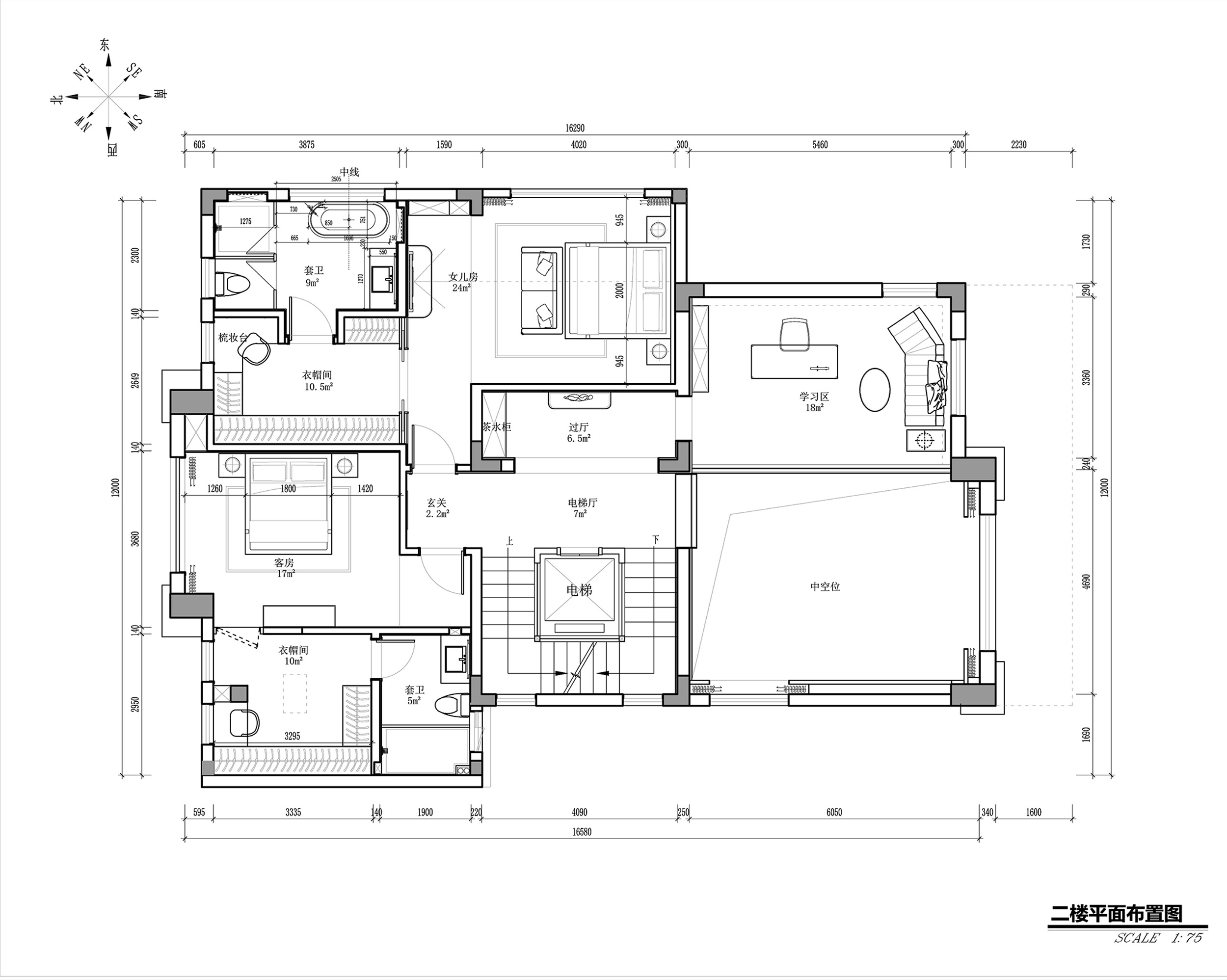
∇ 二層平麵圖
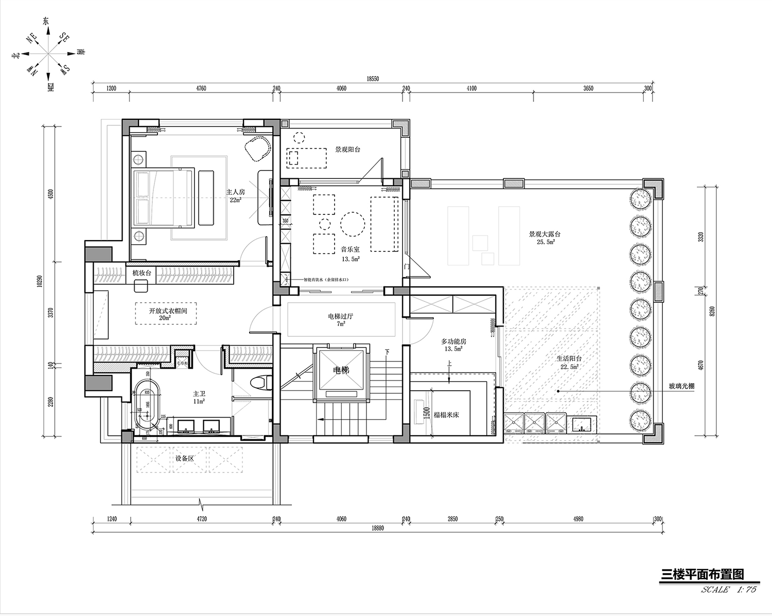
∇ 三層平麵圖
與此同時,攤開家庭關係、情感互動、物件故事、生活方式交織的場景內核,巨人設計讓藝術的自由、自然的隨性,照進生活的日常,讓細膩的審美交響回應墅居者的生活主場與內心角落。最終,淡雅歸心。
項目信息
項目名稱|900㎡伴山別墅
項目地點|中國 廣東 佛山
建築麵積|900㎡
設計時間|2022年3月
完工時間|2023年4月
設計主案|李小傑、胡誌強
設計公司|巨人設計
品牌顧問|有料策劃
定製顧問|Sammys 森美高奢定製/孔珍珍
瓷磚顧問|費羅娜水泥瓷磚/李文靖
照明顧問|西頓照明/鄧娟
塗料顧問|意大利塔薩尼藝術塗料/李曉潔
軟裝顧問|嘉寶軟裝/陳偉業
衛浴顧問|凱朗德璽國際—德國唯寶/Apple
主要家具|B&O Beoplay 、稀奇藝術、Akari、Flos、ARSDEN、Vitra、Stellar works、occhio
項目攝影|隱象建築攝影/歐陽雲
項目模特|羅靈君
設計文案|小安














































