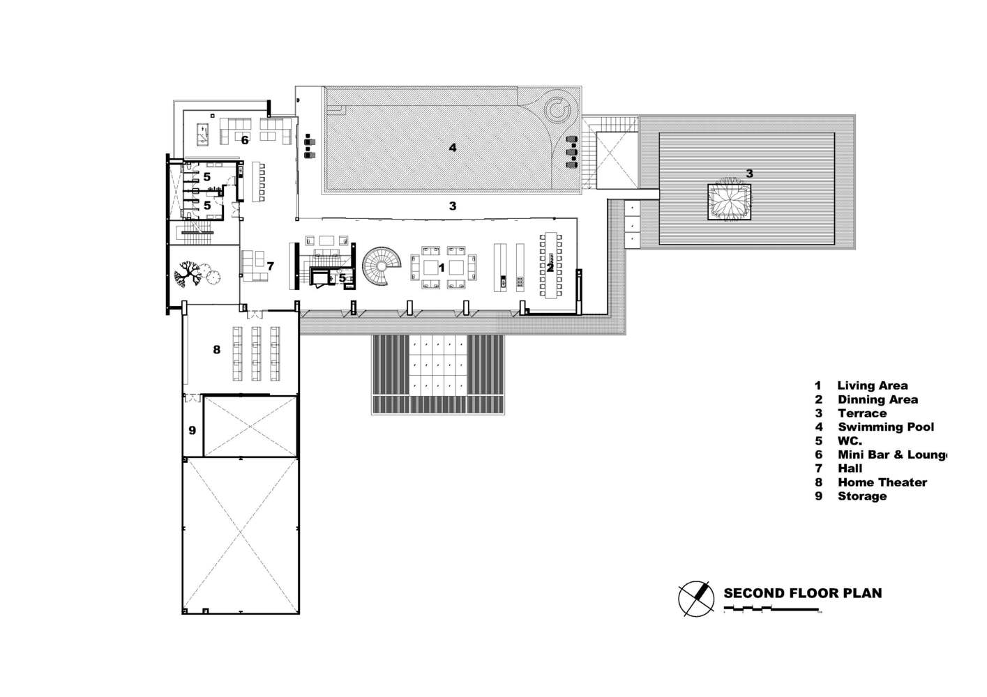
濱河別墅位於曼穀北部的巴圖姆薩尼省,可以將周邊景色盡收眼底,。業主需要一個像家庭會所一樣的度假屋來放鬆、聚會和休閑活動,此外,還需要一個河濱館和足球場以及未來的擴展區,包括三個兒子和女兒的房間。主要功能區由儲藏室、廚房、室內超級停車場、健身房、乒乓球館、羽毛球場、高爾夫模擬器、大客廳、大客廳、帶露台的遊泳池、休息室、家庭影院和最後一部分睡眠區、兒子和女兒的5間臥室以及父母的河邊主臥室組成。
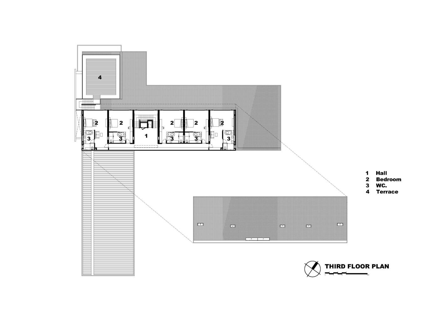
最底層為入口大廳,體育活動區、室內超級轎車停車場,服務,和存儲區。主臥室也設在一層,以便於進入,並與花園和河流連接。二層包括一個寬敞的客廳和餐廳,連接一個大型遊泳池和露台。在三層為臥室和衛生間,都設有天窗以提供自然采光。
版權聲明:本站所有文章除投稿授權發布外,其他文字內容均為原創,享有著作權保護,未經許可不得以任何形式進行轉載(包括且不限於:媒體、網站、公眾號等)。所有項目照片/設計圖形版權歸原作者所有。本站部分內容源自網絡公開資源或用戶分享,如若侵犯了原作者的合法權益,可聯係我們進行處理。













































