樞密院位於北京亦莊,是一處擁有獨特文化氛圍和優美綠植景觀的辦公園區。MARS星球建築事務所受樞密院的委托,為園區的“梧桐”辦公樓設計了一座體驗中心。設計打破了原有辦公空間的冰冷刻板印象,創造了一個如“家”般溫暖的接待和辦公環境。
項目位於園區一棟高層建築的首層,原本用於商業,淨高在4.5M左右,並不完全適合辦公。MARS植入了三個不同性格的功能盒子來消解使用者對空間高度的感知。
三個“盒子”
三個盒子由中央走廊劃分:白色玻璃盒子包含了會議室、茶水間和VIP接待;暖色原木盒子包含了多媒體展示和開放洽談區;走廊盡頭的自動門背後,則是員工日常工作的內部辦公區。
∇ 空間拆解圖
私密、半開放和開放
三個盒子對應不同屬性:木盒子開放,玻璃盒子半私密,辦公盒子偏私密。
玻璃的漸變效果既保證了空間的半私密性,又保留了玻璃上下半部分的通透感。內部暖色的氛圍也讓商務變得輕鬆愉悅。
空間的中央⾛廊,將⽊盒⼦與玻璃盒⼦分隔開來,也同時將活⼒與寧靜穿插在⼀起,讓使⽤者在其中穿行於不同的體驗。
“家”的概念
“家”是梧桐體驗中心貫穿的主題。從材質的氛圍到軟裝的搭配,都旨在打造一種“家”的歸屬體驗。
陽光透過建築室外的穿孔鋁板灑進室內,光影傾瀉在木飾麵的背景牆,整個空間沐浴在溫暖的陽光之中,這裏的員工和客戶進入室內即可感受到明亮舒適的氣氛。
半透明的樹脂材料打造的一體化的前台內部透出柔和的光,與上方的具有“不平衡感”的“碎片燈”,形成了有趣的對比。
VIP接待區並沒有采用傳統的商務的嚴肅氣氛,而是延續了木盒子“家”的概念,這樣有助於消除客戶對商務洽談私密環境下的不安全感。
“戲劇”般場景
木盒子在入口處底部的切角所創造出來的懸浮感增添了空間的張力,同時也增加了空間整體的通透性。並且功能上,使用者在進入空間之前就透過開口縫隙的視野擁有了提前的使用感知。
空間中體現出強烈的敘事性、活潑感和流動性,使用者在其中可以觸摸到空間的韻律,感受到詩意的藝術燈光和溫暖的家的氛圍,讓人感受到安寧、舒適與寧靜,同時還有活力。
半開放木盒子與私密的玻璃盒子隔中央走廊相望,打造出戲劇般的場景。從木盒子向玻璃盒子,是朦朧下的私密洽談,從玻璃盒子向對側望去,是木盒子框景下的輕鬆愉悅的“家”的場景。
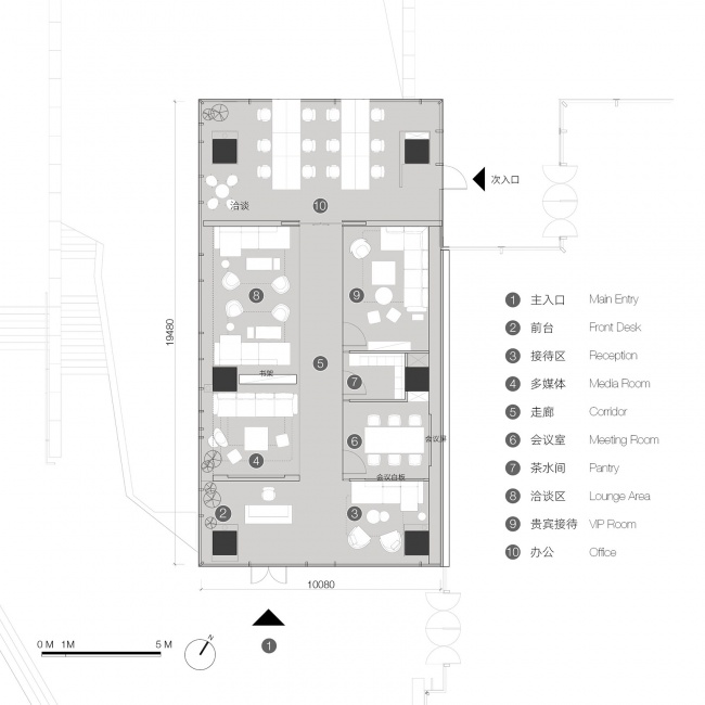
∇ 平麵圖
項目信息
項目名稱:“梧桐”體驗中心
設計單位:MARS星球建築
設計時間:2022.04 – 2022.08
項目位置:亦莊,北京, 中國
建築麵積:230平方米
主持建築師:馬寧
項目負責:劉世宇
設計團隊:楊佳欣,朱克,譚梓楓,趙嘉蕙
燈光設計:陳夢婷
軟裝品牌:HAY,Mutto,Carl Hansen, USM,Verpan,Frandsen,Petite Friture,Foscarini,Louis Poulsen,Sing Chan Design,歐美斯辦公
攝影:Wen Studio





























