stamp意為郵票、印記、印戳。stamp cafe ll店以主理人之願用更隨意的姿態入住社區,供來往者休憩與放鬆。本案將更多的空間給到麵包區,後廚的操作區、烘培區與打包區一氣嗬成,讓客人能同時享受到美味的咖啡與麵包。
The stamp II store aims to become a relaxed and welcoming community space, where visitors can rest and unwind according to the owner’s wishes. The design focuses on providing more space for the bread area, seamlessly integrating the operational, baking, and packaging areas in the kitchen. This way, customers can enjoy delicious coffee and bread at the same time.
咖啡區麵積不大,卻不會使人感到壓抑,良好的采光與門頭玻璃的采用,使室內空間自然延伸到室外。門頭內退的方式,亦在拉近互動,空間交流。
Although the coffee area is not very large, it doesn’t feel cramped. The abundant natural light and the use of glass doors extend the indoor space naturally outdoors. The recessed entrance of the storefront also enhances interaction and spatial communication.
整體空間幹淨整潔又不失質感,正是源於不同材質的合理穿插與使用,萊姆石、洞石和石材磚之間的有序結合。牆麵采用了萊姆石,大小各不相同,錯落拚接,增添了更多的設計感。此外咖啡吧台後牆做了木質框架結構外加pvc塑料磨砂板,在保證整體空間簡潔感的同時還增加了體塊感。
Overall, the space is clean and tidy, while still retaining a sense of quality. This is achieved through the clever interplay and usage of different materials, such as lime stone, cave stone, and stone tiles.The lime stone wall, with its varying sizes and scattered layout, adds an element of design. Additionally, the wooden framework structure combined with PVC frosted panels behind the coffee bar creates a sleek appearance while adding depth to the overall space.
我們用材料的疊加與穿插不斷豐盈空間。值得一提的是,門頭的櫥窗與後廚門都選擇了做玻璃豎拚,在此基礎上,門頭的櫥窗加了豎片玻璃片,與整體構成t形結構,更具造型感。
We have continuously enriched the space by overlaying and interweaving different materials. It is worth mentioning that both the storefront display and the rear kitchen door feature vertical glass panels, and the storefront display incorporates vertical slices of glass to form a T-shaped structure, adding to its unique design.
因stamp cafe ll店擁有更強的社區屬性,我們設置了可拆卸燈帶的楓木長桌,同時滿足辦公人群與以家庭為單位客人的需求。
Since the stamp II store has a strong community attribute, we have installed removable LED strips on maple wood long tables, catering to both office workers and families visiting as a group.
來者即可在此小憩,亦可把此地當作“避難所”。隨夏風慢下來,與咖啡相伴,覽閱幾章好文。stamp cafe II店是夏日沁爽的一抹綠,幹淨明朗;是回歸純粹的本真,治愈紛繁複雜。
Visitors can take a break here or think of it as their “refuge.” With the gentle breeze of summer and the companionship of coffee, they can enjoy reading a few good chapters. Stamp II store is a refreshing touch of green in the summer, clean and bright, a return to purity, and a remedy for the complexities of life.
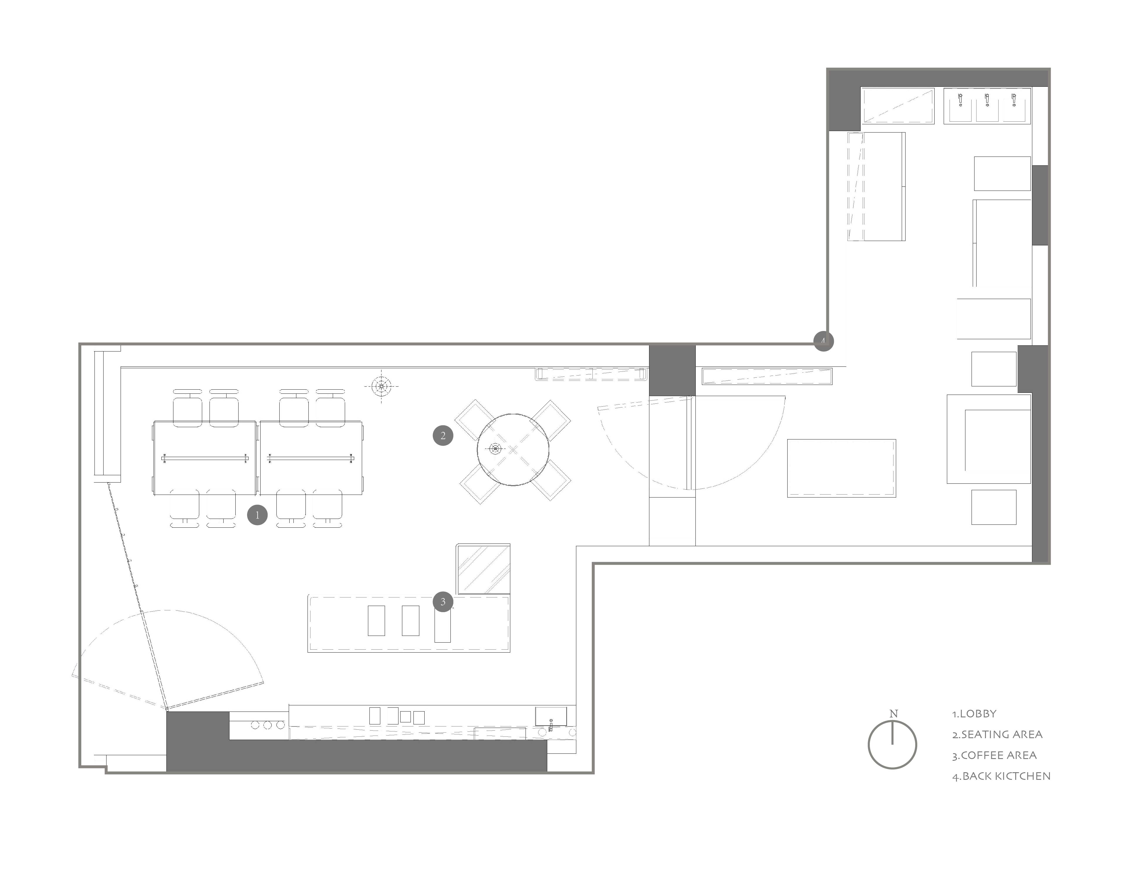
∇ 平麵圖























