該項目位於北京市中心東北約35公裏的順義區,建築師對原有房屋進行了翻新和擴建,將其改造成一個兩隻狗和四口之家的新家。改造前的地皮是典型的90年代幹掛瓷磚農村平房:包括一個120平米的正房和一個45平米的偏房。而隨著城市的擴建,曾經的農房也要適應當代白領的生活習慣,建築的一部分空間已經失去了曾經為了農民勞作而存在的價值。由於建築是實用主義的磚牆平房,看不到現代結構常用的混凝土柱,因此室內空間有著較大的發揮空間。
我們把建築的天花板拔高到三米,並安裝了預製混凝土天花板,使得內部空間更加合乎住宅的尺度,也滿足了一家四口的使用。”過半兒guò bàn er的聯合創始人Christian Taeubert說:”我們樂於賦予空置房屋第二次生命,將建築從一個的廢棄空間改造成一個熱鬧的生活場所。
∇ 改造前
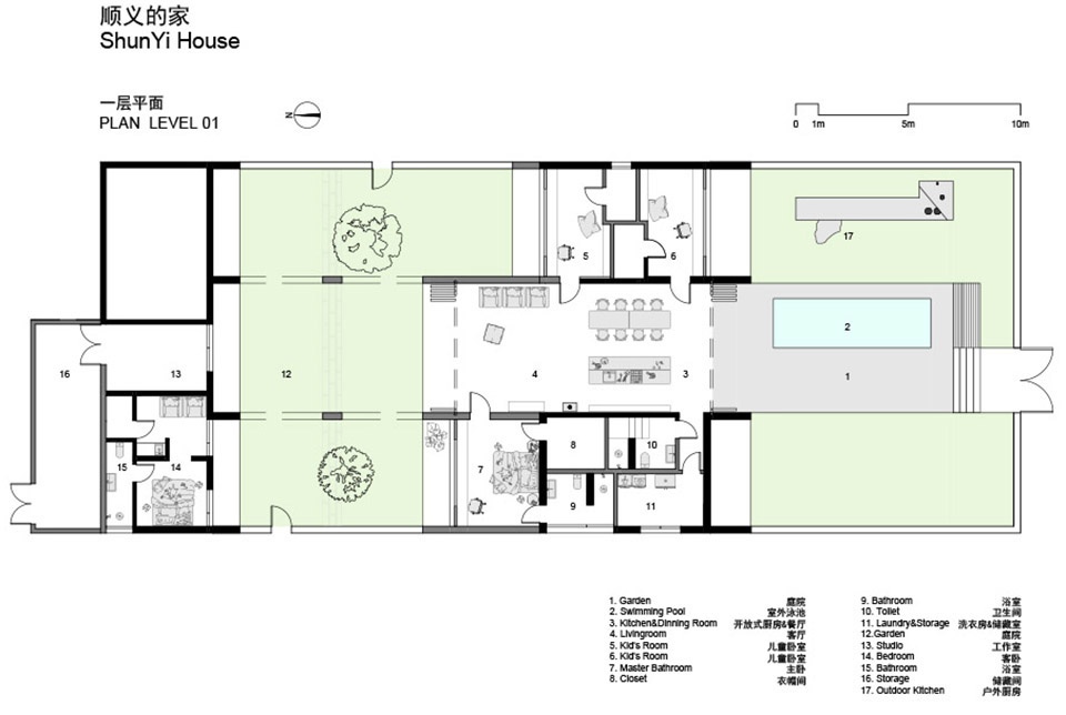
我們在主房的基礎上增加了50平方米,增加了一家四口居住體驗的舒適感。主宅南北兩側的兩塊綠地創造了相對寬敞的生活和社交空間,在視覺上將主房的空間延伸到了兩側的花園。
一個5.8米寬、11.5米長的南北向的空間成為新家的生活娛樂中心。Christian表示:“我們創造了一個寬敞的中心社交空間,在一個極簡的封閉空間裏,一切你能想到的都在發生。”主房兩側的懸挑房頂遮風擋雨,為住戶提供了額外的室外休閑空間。同時,這些懸挑的房頂為所有朝南的房間遮擋了夏季炎熱的陽光,而低矮的冬季陽光則可以照射到房間深處,帶來舒適和溫暖。社交空間的兩端都被折疊玻璃門所包圍;而如果你完全打開這些玻璃門,相鄰的花園則成為居住區的自然延伸,使得人與自然親密無間;北側的遊泳池和室外廚房也作為中央社交空間的延伸,引人至花園座談。
住房的外部飛梁橫跨南花園並連接到對麵的偏房。支撐飛梁的兩根柱子和飛梁形成了幾個橫向門框。這些門框和花園地坪的高度落差將花園劃分為不同的室外空間、露台和休息區。橫梁、立柱、花園牆壁和朝南的立麵都長滿了藤蔓。這些植物水汽的蒸發,以及北花園的泳池產生的蒸發冷卻效果,使得主空間總能很涼爽,令人們在炎熱的夏天都能感到舒適。當兩側的門都被打開時,氣流得以穿過房間,再加上兩個室內吊扇的作用,主房則擁有了一個舒適的小氣候;讓人們即使在35到38度的酷暑也用不著空調。過半兒guò bàn er的聯合創始人孫敏說:”我們全家都喜歡在戶外度過美好時光,因此我們希望消除室內和室外之間的界限。這樣我們的孩子可以從南邊的院子跑過客廳和餐廳,並一躍進入住宅另一端花園的遊泳池,這實在太有趣了!”
位於主房內部的起居室的西側是兩間麵積相同的兒童臥室。兩個房間都有步入式衣櫃,衣櫃頂部則是床。另一邊,作為住宅擴建的一部分,主臥室位於主空間的東麵,配有一個浴室和一個更衣室。
此外,還有一個供孩子和客人使用的浴室和一個儲藏室,使主屋的功能更加完善。除了一條兩平米的走廊通向洗手間和儲藏室外,平麵布局沒有浪費任何額外的流通空間,因此非常高效。從主屋穿過南麵的花園,就到了客房和佛堂。我們在南屋的基礎上,加建了一個35平方米的簡易儲藏室,用於放置家庭露營和園藝設備。
原有的建築外牆采用了保溫隔熱圍護結構,新擴建的建築也延續了這一設計。高效的空氣-水熱泵可以在零下20攝氏度的環境下工作,為房屋的製冷和供暖循環提供動力。起居室內的火爐,作為後備熱源,它的溫度也足以使人溫暖。不論是早春,深秋;清晨還是傍晚,它提供的熱量,甚至無需地暖,也能讓人溫暖。即使在寒冬,火爐也可以分擔熱泵的高峰負荷,為地暖提供動力。我們並沒有將原有的不合理的建築拆除,而是對其進行了整合,通過對現有結構的再利用,節約了後期使用的能源消耗,並盡可能地節約了建築成本。
最後Christian說:”我們的改建項目應該能啟發更多被當今北京內環天價租金所困的人。在12年的租賃期內,我們的月租金比原來住在城裏的時候降低了三分之二。當然,我們的費用還考慮到了翻新,和每天往返市區為的費用。這是我們願意付出的代價。”
∇ 平麵圖
項目信息
項目名稱: M001住宅
項目類型: 私宅改造
竣工日期 :2022年5月
麵積:220平方米居住麵積、35平方米儲藏室
地點: 北京順義
建築與室內設計: 過半兒 guò bàn er
設計總監: Christian Taeubert, 孫敏
設計團隊: 嶽文博, 馬詩瑜
照片: Boris Shiu
造型師: Lily Zhao




























