美,不存在與物體之中
而存在於物與物產生的陰翳的波紋和明暗之中
——穀崎潤一郎《陰翳禮讚》
Beauty does not exist within objects,
but rather in the shadows and contrasts that arise between objects.
——Junichirô Tanizaki In Praise of Shadow
∇ 建築門頭外景
該項目是DCDSAA為正山堂品牌打造的茶室空間,希望營造一個品茶和放空的精神之所,讓喝茶體驗變得更加寂靜,可以享受純粹由喝茶帶來的質樸體驗。
This project is a tea room space created by DCDSAA for the Zhengshantang brand, with the hope of creating a spiritual place to sip tea and let go, so that the experience of drinking tea can become more silent, and one can enjoy the pristine experience brought about purely by drinking tea.
∇ 接待區與陳列展示
∇ 展櫃細節
此地有崇山峻嶺,茂林修竹又有清流激湍,映帶左右引以為流水曲觴,列坐其次
——王羲之《蘭亭集序》
Endowed with great mountains and lofty peaks, Orchid Pavilion has flourishing branches and high bamboo bushes all around, together with a clear winding brook engirdled, which can thereby serve the guests by floating the wine glasses on top for their drinking.
——Wang Xizhi Preface to the Anthology of Orchid Pavilion
一首《蘭亭集序》道出古人憑欄而坐,曲水流觴,暢敘幽情之雅興,今有觀韻以茶空間效之,這不是一間傳統的茶室。過道迂回輾轉,在“曲徑通幽”的氛圍中捕捉空間與內心之間的微妙氣場,滌除雜念,享受獨有的清幽和雅致。
A poem from Preface to the Anthology of Orchid Pavilion expresses the refined sentiments of ancient people who sat by the railing, enjoying the flowing water and wine, and expressing their innermost feelings. Today, we observe the charm of tea space, which is not a traditional tea room. The winding corridor captures the subtle atmosphere between space and inner thoughts in the ambiance of “a winding path leading to a secluded place,” purging distracting thoughts and enjoying the unique tranquility and elegance.
∇ 多功能茶空間
∇ 駿眉茶空間
∇ 多功能茶室局部
我們試圖深度挖掘茶文化的時代性表達,用年輕化的設計語言,通過提煉和呈現中國茶道美學中現代禪意精神中的“東方意境之美”,營造一個品茶和放空的精神之所。
We attempt to deeply explore the contemporary expression of tea culture, using a youthful design language to extract and present the beauty of “Oriental artistic conception” in the modern Zen spirit of Chinese tea aesthetics, creating a space for tea tasting and relaxation.
∇ 品茶會客廳
∇ 休閑會客廳
∇ 展櫃與廊道
步入大廳,空間簡潔柔和的線條層次分明,開放的空間給予空間更多可能性。設計師打造空間的初心是退設計化,盡可能的去弱化空間本身存在的結構落差,讓整個空間更連貫、自然,成為正山堂品牌印象的一個全新維度——具有東方美學意境的新派茶空間。
Upon entering the lobby, the space is characterized by simple and soft lines, with distinct levels, and an open layout that allows for more possibilities. The designer’s initial intention in creating the space was to minimize the design and weaken the structural differences inherent in the space, making the entire space more coherent and natural, and creating a new dimension of the Positive Mountain Hall brand impression – a new-style tea space with Oriental aesthetic conception.
∇ 燈光裝飾隔斷
∇ 茶台局部
稍加留意會發現牆麵的肌理,是通過傳統手工技藝的精彩呈現,柔和而素雅,讓空間增添一絲文人氣息。即使外表粗糙、斑駁、有紋路的牆麵在空間中也不會顯得突兀,正是這種精致的粗狂對比,呈現了一個極具時代氣質的空間體驗。
Upon closer inspection, one will notice the texture of the walls, which is presented through traditional handcraft techniques, soft and elegant, adding a touch of literati atmosphere to the space. Even rough, mottled, and textured walls do not appear abrupt in the space, thanks to the exquisite contrast between roughness and delicacy, presenting a space experience with a strong contemporary vibe.
∇ 林飛應茶空間
∇ 茶台細節
東方推崇風雅與韻味,歲月在器物與空間上烙下的痕跡都會讓人覺得無比的安心與親密。它承載著一種記憶,一段情緒,這正是我們所理解的茶道美學。
The East values elegance and charm, and the traces left by time on objects and spaces can make people feel incredibly at ease and intimate. It carries memories and emotions, which is precisely what we understand as the aesthetics of tea culture.
∇ 空間局部細節
∇ 靠窗燈光隔斷
茶為意,空間為境。一束插花,一方茶席,品茶之餘,傳遞著人與自然、人與人、人與藝術的美感。獨飲細品,或者與好友對飲,給瑣碎的日常生活一段留白,才能理解無聲之處造就的精彩。
Tea represents intention, while space represents environment. A flower arrangement, a tea table – while enjoying tea, we convey the beauty of the relationship between people and nature, people and people, and people and art. Whether savoring tea alone or drinking with friends, leaving a blank space in our mundane daily lives allows us to appreciate the wonders created in silence.
∇ 正紅茶空間
∇ 璞龍茶空間
∇ 茶室一角
∇ 細節局部
光的出現,讓建築室內有了明暗關係。從燈光的設置,到材質的紋理,再到建築空間分布,處理了空間與光的關係,便形成空間自身獨特的氣質。
The presence of light creates a relationship between light and shadow within the interior of a building. From the arrangement of lighting, to the texture of materials, and the distribution of architectural space, the relationship between space and light is handled to form the unique temperament of the space.
∇ 岩語茶空間
新與舊是一對辯證關係,新素研的設計也大多都是在尋找“老物新用,古法新作“之道,讓傳統與現代產生對話,傳承並創新。
New and old are a dialectical relationship, and many of Xin Su Yan’s designs are also seeking the way of “using old things in new ways and creating new works with ancient methods”, allowing tradition and modernity to engage in dialogue, inherit and innovate.
∇ 廊道與空間
∇ 景觀內局部
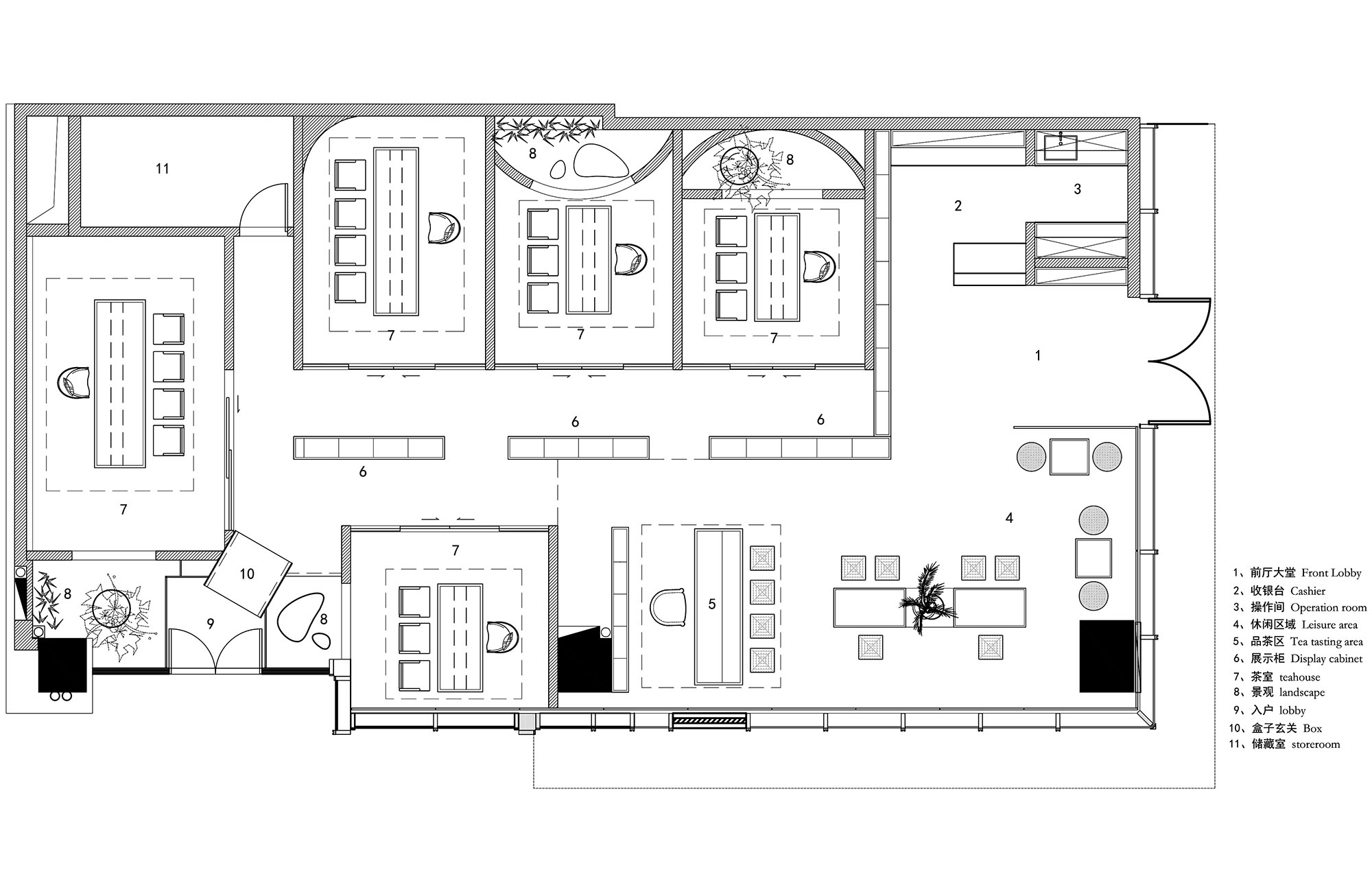
∇ 平麵設計圖
∇ A立麵圖
∇ B立麵圖
∇ C立麵圖
項目信息
項目名稱:( “正山堂茶室”)
Project name: Zhengshantang Tea Room
項目地點:中國·上海·虹橋萬創中心
Project location:Hongqiao Innovation Center-Shanghai-China
項目業主:正山堂品牌團隊
Project owner:Zhengshantang Brand Team
建築麵積:260平方米
Building area:260sqm
設計公司:DCDSAA澱川建築事務所
Design firm: DCDSAA Architecture Office
設計範圍:外景改造、室內設計、軟裝設計
Scope of Design:Exterior remodeling, interior design, soft furnishings design
公司網站:www.dcdstudio.cn
Company website: www.dcdstudio.cn
主持建築師:王皓
Principal Architect: Wang Hao
設計團隊:袁鄭亮、唐超、徐大明
Design Team: Yuan Zhengliang, Tang Chao, Xu Daming
設計時間:2023年4月
Design date:April 2023
建成時間:2023年6月
Completion date: June 2023
施工單位:上海寶立建築裝飾工程有限公司
Constructed by: Shanghai Baoli Architectural Decoration Engineering Co.Ltd
照明設計:上海馳加照明
Lighting Design: Shanghai Chiga Lighting
燈具品牌:愛齊光電IG
Lighting brand: IG Lighting
家具定製:杭州住工智能家居有限公司
Custom furniture:Hangzhou Zhugong Intelligent Home Co.Ltd
主要材料:石材、鋼板、木飾麵、玻璃、金屬、肌理漆
Main materials: stone, steel plate, wood veneer, glass, metal, texture paint
項目攝影:吳清山
Project Photographer: Wu Qingshan
DCDSAA澱川建築事務所
DCDSAA澱川建築事務所是專業性的設計機構,致力於建築設計和室內設計研究及實施。對材料的研究與善用,是建築、室內及景觀設計創新的重要途徑,從而平衡建築、室內與自然的關係,也是對曆史、文化、自然和光的尊重,更加現代化、多元化、商業化、對創新更加具有獨特性和開放性。
我們始終認為研究是設計的一種有力工具,因為每個項目都具備有其特有的背景。對規劃運作、地點、功能和曆史等進行細致深入的研究是創造嚴謹作品不可或缺的要素,在研究的基礎上,一直致力於設計理論研究與實踐,並提供全方位的專業原創設計服務。



































