飲食是種無法替代的現實體驗,幾乎可以是繁忙城市生活中獲得自我療愈的期待。
與笨魚品牌主理人共同構思新店——“燒鳥社”之初,我們就默契地確定了新店的主調:取傳統建築外形之意,以現代手法重塑。有未至之境的聯想,也有在地化的理解。造一個氛圍豐滿的場,注入笨魚的社區之魂;佐以酒肉,治愈疲憊,歡愉相聚。
∇ 外景輪廓線框 © Jaguar
門店所在的街區是舊改的創意街區,捕捉到現有條件揚長避短。利用外立麵較大的開麵尺度和規律的轉折層次展開設計,以延續的疊層屋簷造型和交錯的梁柱線條,構成穩定、靜謐的形體,呼應日式料理的主題聯想,也把連接戶外庭院空間的遮陽擋雨做了交代。連貫的屋簷造型起到了重構了邊界的作用,在現有的建築中框出了屬於自己氛圍的景致。
∇ 外景視角 © Jaguar
以現代手法建造傳統形態屋簷,杜邦紙燈箱模擬透光的窗,陣列的翻窗造型由上至下構成了整個外立麵。屋簷處運用錯開結構邊界的標識字,讓原本平穩的視覺秩序製造點有趣的波動。在可交互立麵由翻窗構件作為主體,長虹玻璃搭配橫豎窗花在日夜之間分別透出室內外的光景,其中還在室內的包間處分別以相同造型留出了可出入的門,讓室內外的通行有了更專屬的動線。
∇ 日景庭院 © Jaguar
∇ 夜景庭院 © Jaguar
在外場區域打造了景別豐富的庭院體驗,不盲目追求“日式枯山水”的表層形式,而是用品牌主理人對植物景觀的喜愛和替客人考慮的體驗出發。以高低錯落的綠植、竹製圍欄等戶外構件配合刻意降低的坐姿,給客人在其中有環抱掩映、舒適私享的感覺,盡量享受戶外特有的自在氛圍。
∇ 庭院客座、植物 © Jaguar
∇ 庭院水景 © Jaguar
室內的布局規劃以操作吧台延展而來,盡可能利用空間內的橫向尺度使其負載更多功能,也從入口處就行程左右的直覺導流,減少進店選座的遲疑讓接待服務更高效。在空間裏的幾處端麵賦予暗色鏡麵材質,收束光效至於更讓鏡中世界延展現實視野。
∇ 入口玄關 © Jaguar
∇ 明檔吧台 © Jaguar
∇ 包間雅座 © Jaguar
∇ 明檔及客座區 © Jaguar
從社區出發的笨魚,延續以熱愛給日式料理賦予本土精氣神的主旨,營造一方繁忙生活中愜意小憩的所在,相聚於此,佐以酒肉,治愈疲憊,歡愉相聚。
∇ 夜景全觀 © Jaguar
∇ 軸側圖 © Jaguar
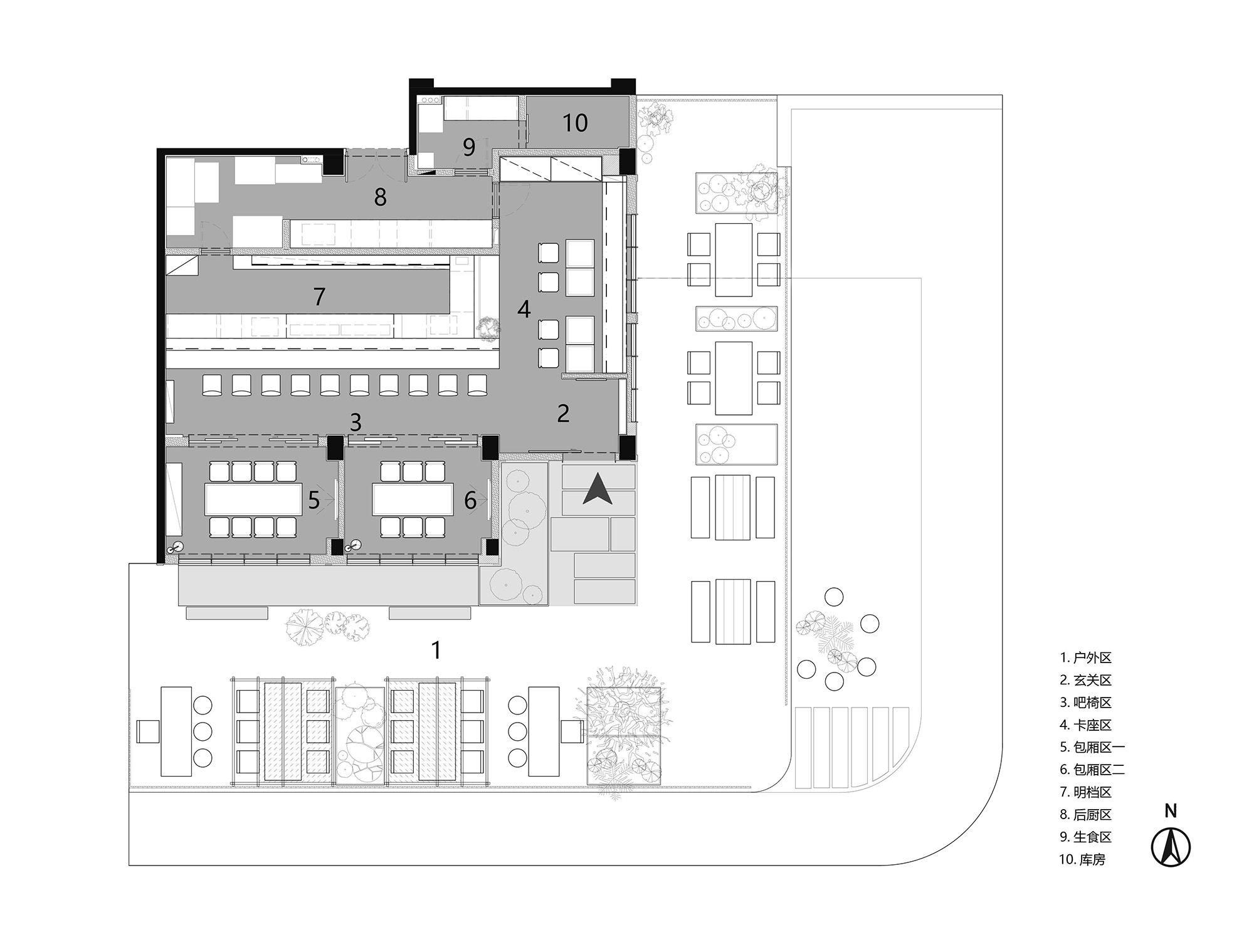
∇ 平麵圖 © Jaguar
項目信息
項目名稱:笨魚燒鳥社
項目麵積:114㎡
項目輸出:空間設計
設計公司:具格設計
主創及設計團隊:魯易,吳君誠,禤潔威,陳浩
項目時間:2023年6月落地
項目地址:廣東 · 深圳
攝影:肉山





































