一對沒有孩子的年輕夫婦來到我們的辦公室,要求有更大的房子和寬敞的休息區。所要求的方案包括一個私人區域,有3間套房和毗鄰的社交和休閑區,均位於一層。
第一個解決方案是要沿著停車場右側的縱軸合並該地塊,並利用牆角條件,將社會區域向左側未使用的部分開放。
第二個解決方案是將廚房和燒烤區置於社交區域附近,將其置於停車場後方的橫向軸上。
第三個解決方案是由於客戶要求有一個寬敞的辦公室,以容納他們的專業和學術活動。這一要求是在2021年大流行病期間提出的,促使設計修訂。該提議是將辦公室設在高層,以提供景觀視野,並確保與底層的社交活動分開。
在項目的最後階段,第四個解決方案側重於整體美學。體積測量被認為是向周圍呈現兩個麵。主要的固體體積靠在車庫的牆上,在容納了這一層之後,我們雕刻了辦公室,建造了一個具有東西方景觀的木製畫廊,以及一個用於露台景觀美化和與客廳相比降低天花板高度的較低高度的混凝土塊。
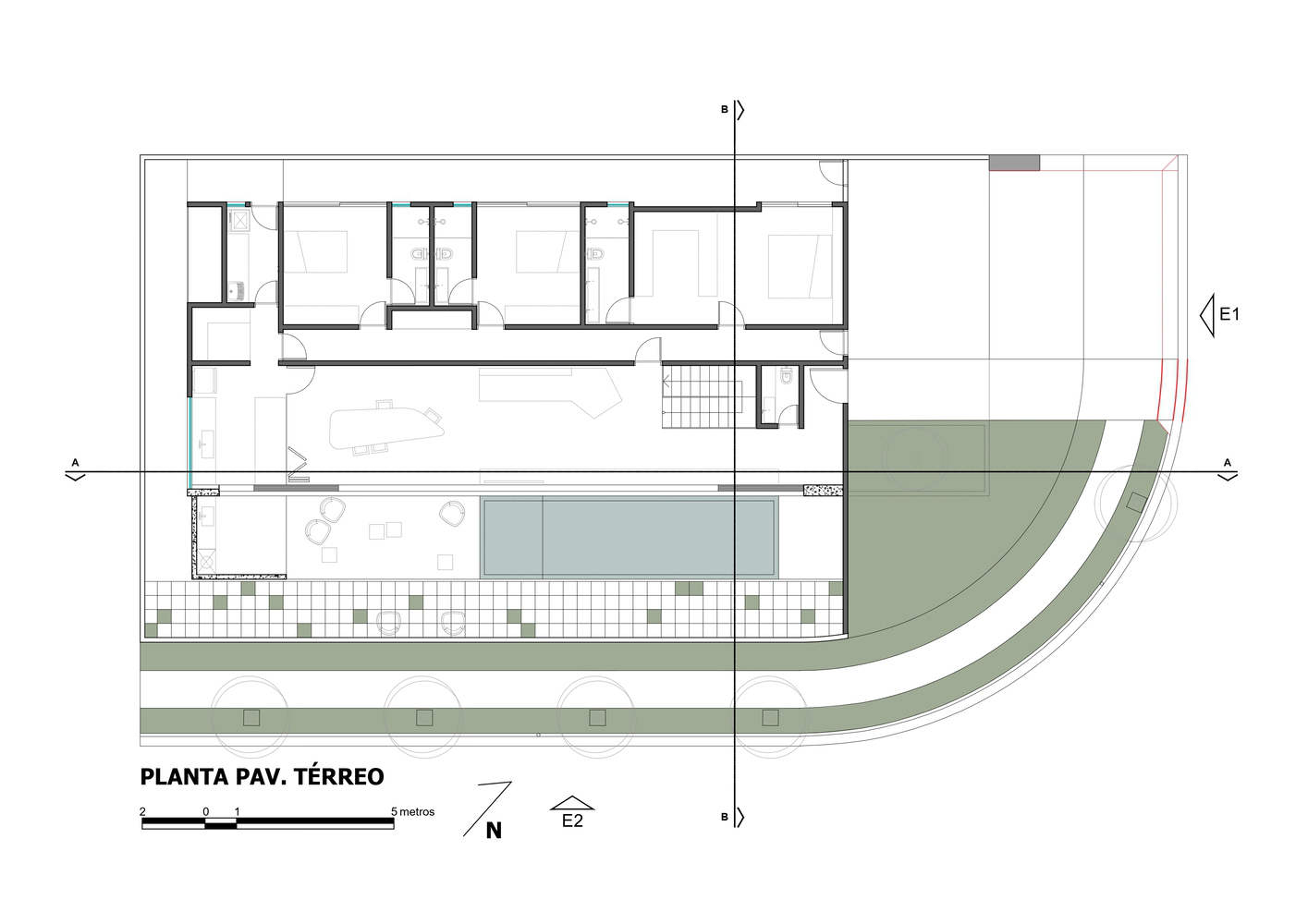
∇ 平麵圖
∇ 軸測圖
∇ 分析圖
版權聲明:本站所有文章除投稿授權發布外,其他文字內容均為原創,享有著作權保護,未經許可不得以任何形式進行轉載(包括且不限於:媒體、網站、公眾號等)。所有項目照片/設計圖形版權歸原作者所有。本站部分內容源自網絡公開資源或用戶分享,如若侵犯了原作者的合法權益,可聯係我們進行處理。






























