本項目位於一處商業園區內,原建築條件是廢舊的配電樓,一個是細長通高五米左右的黑盒子,裏麵有兩處夾層,一個是細長高三米左右的白盒子,怎樣利用好通高空間和夾層,如何使用細長過道,建立兩個空間的聯係成為設計思考的重點。
∇ 項目區位圖
原有空間是狹長較為封閉,采光不足,內外閉塞,且通高不一的狀態,借此基礎上我們轉弊為利,決定將中間牆開窗破洞,還原一樓本應該有的酒吧空間體感,打造開放自由的互動空間,再將黑盒子建築的5米通高優勢,一半建立二樓私密空間和小區域散座,另一半讓位給原本高度,在牆壁上打造投影設備,搭配燈光、音樂發揮空間特點,得以承載各類展示。
以空間合理劃分的邏輯,拓寬了狹長的視野範圍,設計希望改變各個空間的結構獨立性,對穩定空間輪廓進行擾動,不同層次空間組合聚集形式將一樓與二樓串聯,流動感的空間表達,讓人群錯位相遇,使人群不僅是熟悉間的互動,還能讓陌生群體間產生新的鏈接。
時空交錯穿插使用讓客群有的一定重疊和互換,從而形成一條完整的遊走動線,大大拓展了空間的包容性和可塑性,整個空間雕塑感更加強烈,在有限的空間場地裏製造有趣的空間視覺與體驗感。
∇ 總體軸測圖
整體空間使用自然的色調與材料,溫暖木材家具和吧台的紅磚調和了清冷的混凝土的堅硬質地。燈光、黑色燈條框架、綠植、木材與紅磚,精致的黑色細節裝飾都為內部增加了些許對比和優雅感。摒棄多餘的視覺信息,簡單地桌椅陳列擺布,克製卻精細的設計手法,設計師仍保持了其愉悅的空間。從空間的結構到材質的呈現,都能將美食、文化、設計微妙融合,形成獨有的空間體驗。
一樓區域吧台設置在空間內側,是酒吧的核心,座椅隨意擺放,客人們隨機落座,相互吸引而又相對獨立,正是恰到好處的社交空間。
基於實用性和最大化利用空間,我們想在局促的空間內增加就座的麵積,讓人群的眼神有更多的互動,打破人群的陌生感,讓流動感重構在此空間內,我們打通盒子間的隔閡,顧客通過“想見你”窗洞,視線穿過大小不一的窗洞見到想見的人,將抽象的空間概念轉化為具象的實質表現,酒吧原本曖昧的氛圍在窗洞中交織,隱晦的話語傳遞於一牆之間,窗洞訴說一段段地下迷城的竊竊私語。
顧客可以自由選擇,如果希望被打擾就坐在有窗洞區域,不希望被打擾便避開窗洞即可。窗洞的設計改變了原本狹長的壓抑氛圍,打通了兩個“盒子”堅不可摧的隔閡,增加了人與空間,人與人之間的互動性。以空間為工具,通過打破一牆之隔建立人與人間的信任,同時還能保證空間和通風通透。
∇ 兩個盒子的一牆之隔打破,既保持原有結構,又增添了趣味性設計感,想見你窗洞設計概念
二層客座區動線軌跡指向不同空間運營模式。我們將整個空間的動線重新進行了梳理。由於原始建築的層高,我們決定改變盒子二層布局,打破一二層以天花板擠壓的空間形態,重新組織的視線關係和動線,將一層通往二層的樓梯置於與吧台背後。從一樓到二樓,私密感逐級遞增,保持了視覺上的分離。
設計希望空間有更多的視覺穿透視角,五米的挑高空間其四分之一,玻璃以內空間,在吧台上方成為了上帝視角般的舞台中心(散座區),身居高位的顧客可以清晰的看見下方穿梭的人群,見證一牆雙方的關係建立。另一四分之一私密的場所無法被紛亂打擾,形成獨立空間。
∇ 空間結構改造
包廂是一個獨立的圍合體,在保證客人隱私的情況下,私密空間整麵窗向一側開,讓戶外的和風吹入室內,自然呼吸,與庭院由內而外形成一條線,層層遞進。
建築外立麵采取大麵積留白和留窗的設計手法,木質地門窗框跳脫白色外立麵限製,劃分內外空間界限,平衡內外交界處,由外向內可見內部溫暖明亮的空間氣息,內外部聯動以更開放的姿態向街區平台及路過的人們傳遞友善的訊號,可以入內,駐足、用餐、小聚,參與社群生活氛圍構建,室內區域向室外延伸,原先被一堵牆封閉起來的空間通過窗戶的不同形式變得生機勃勃,模糊了室內與室外的界限,在平淡的往日裏,啟發人們重新探尋新鮮的生活理想。
雖然能通過大麵積窗戶看見一樓內部室內景象,但通過樹木的自然遮擋關係,細木框架全玻璃立麵分隔,為室內提供了庇護,前後層級變得明晰起來,既將室外空間引入室內,室內空間也能欣賞外部,能夠充分保證隱私,也展示出精心挑選的自然元素。
沿建築外樓梯轉上,抵達樓頂露台區域。利用建築的頂部空間,隨階梯由私密轉化為開放的活動空間,顧客在此相對舒展,到訪的顧客可以就坐欣賞。
在露台上可眺望不同的城市光景,露台提供了一種可供不同時令季節下多樣的經營性活動空間之用。從露台往下的大麵積戶外餐飲酒吧場地,作為街道的功能補充,為街區提供共享交流的友好場所,以及聚集休閑公共平台;作為酒吧的外部延伸,創造酒吧的活力。
酒館的氣質,真實的材料,生活的碎片,整個空間設計完成對酒吧空間的社交基因和屬性的落地。有關時空的延伸思考是貫穿設計裏的主線,酒館的建立是一種實現新社群相互連接的交際場所。我們希望空間與情緒得到共鳴,拉近人與人之間的關係。
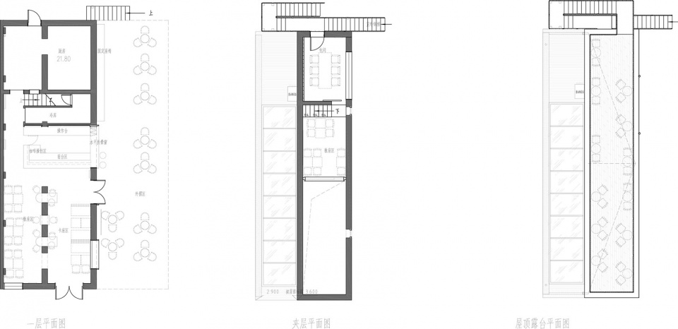
∇ 平麵圖
項目信息
項目名稱:BLUE ARK清坪樂酒館&DAO咖啡設計
設計公司:DAGA Architects大觀建築設計
客戶:BLUE ARK清坪樂酒館&DAO咖啡
設計團隊:申江海,龍瀟,孫春迪,王立楓,韋娜
項目類型:室內設計
建築麵積:100平方米
設計時間:2023.02-2023.03
建造時間:2023.03-2023.05
項目攝影: UK Studio
撰文:孫春迪 胡璐揚
































