人,以木為居;木,從自然來。
此間,延展出萬物形態,生長出棲居之地。
唯木,正如其名,是一家專注於“木”的高端地材建材商,知行空間設計受委托,為其在東莞的展示空間進行規劃與設計。室內整體麵積為230方,集辦公、接待、展陳功能於一體。
自然的氣質
未見其境,先聞其聲。以水造景,作為進入空間的第一觸點,不僅限於人與水的交流互動,其意境更是直滲心幽,在潺潺回響中洗去塵浮和疲憊,再以輕盈快意之態迎門而入。
設計上著意於以不同視角、最大化的“打開”,引導人們從一個空間到另一個空間。經由外在的木格柵尋找契機,讓光影的氣息流入室內,營造一個開放、通透、明亮的空間。
自然的意趣,先成為空間的底色。燈從岩漿中采擷靈感,一麵是山體流動的熱核,一麵是歸於精致的工藝,釋放的熱核衝撞著水的律動,渾然天成。
未經雕鑿的石塊保留了山穀裏的粗狂與拙,和木材的溫潤雅致、窗景的搖曳綠意相互交織,共同闡釋質樸和原野的特性,從而呈現空間氛圍及場所本身自帶的特質。
體塊的錯落
相較於“門”“木格柵”,“打開”的形式不止於橫向意義。室內空間的原始結構是一個類似長方形、擁有斜屋頂的不規則空間。若依據現有的狀態劃分空間功能,或讓本不寬闊的空間更顯局促。因此,挑空、傾斜的中庭結構被保留,空間得以縱向生長。
極少的牆柱作為“媒介”堆疊各個功能空間的層次,構成了前廳、展陳區、休息區、樓梯、茶室等功能空間,場景與場景之間保持獨立,又相互滲透,不設界限,又自成天地。
以克製、充滿秩序感的自由,表達對功能與美學的詮釋。
以開放式前廳及展陳區為核心視覺區域,塑造日常中所擁有的居所體驗,將品牌理念對於“所見即所得”的極致追求盡數呈現。大麵積沉穩的黑、簡約的白與溫潤的木輔以線性燈光,交融出現代美學與生活融於一體的本質,也飽含自然清透的風雅。
可移動模塊化的陳列台,演化為幾何體塊進行組合、翻轉,不同的意識形態拆解為多元功能的載體,靈活應對展陳場景的轉承。既可作裝置、展示,也可稍作休息,近距離觀察、觸摸關於“木”的動人細部。
陳列台與內裏的島台通過場景的穿插構置互為呼應,空間的界限悄然弱化、虛實相融,營造出隨意遊走、自在探索的行走路徑。
依托下沉的地麵和軟裝,造就層層遞進的沉浸式法則。
偏居一隅的休息區,布藝沙發的柔和之息,中和了圓形案台的硬朗風格,進而傳達出低調而內斂的洽談氛圍。木格柵與綠植適宜的添入,以模擬自然窗場景,營造原生質樸的詩意。低飽和的綠與橙,以跳脫趣味的顏色煥活黑與白的單色空間。
內在的對立
衝撞的反差,是令人著迷的,材料尤其如此。鋼板純粹而素淨,木質溫潤而質樸,大理石光滑而厚重,製造材料的對立與碰撞。
借以木質與鋼板結合的階梯,適當調整原始位置,既完成了充當連接的功能過渡,灌注場域以向上延展的建築力量,又增添了空間利用率,構造貼合於空間體驗的開放視線和遊走動線。
步步踏上階梯,進入開放的茶室區域,情緒氛圍也隨之轉換了另一種情緒,以靜謐、充實的意境塑造高雅的藝術韻律。這裏承擔著深入洽談的服務功能,也可作休憩、品茶和活動所用。眺望台沿著光的蔓延,或能俯瞰兩層全景,或能與下沉客廳對話。
設計師以克製的建築秩序和自然的藝術本質,重塑唯木對外的精神內核,於現代居所的美學風格中追尋純粹的雋永,探索木材與生活的可能性,串聯唯木與人的情感鏈接。
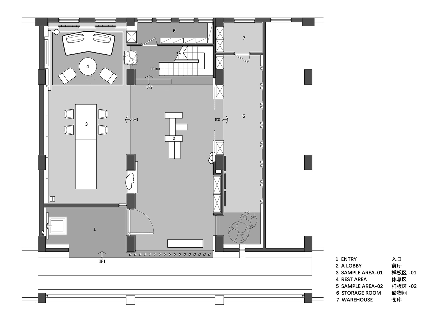
∇ 一層平麵圖 © T&D知行空間設計
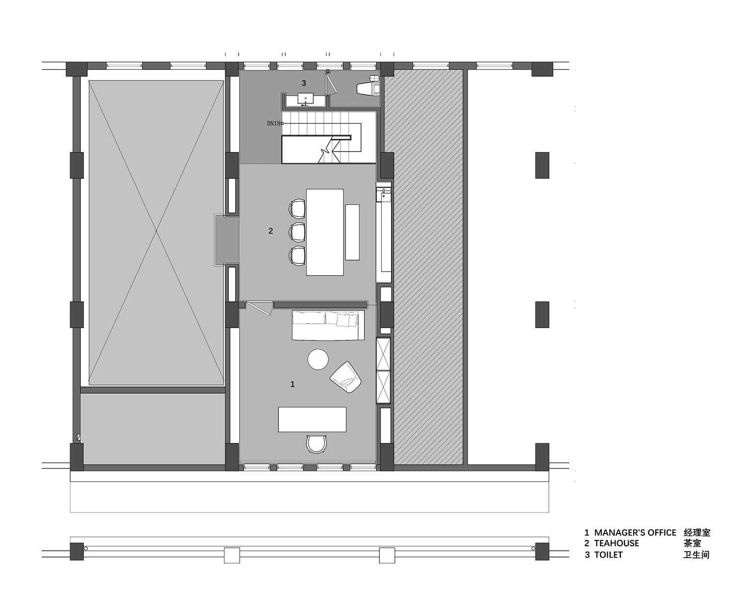
∇ 二層平麵圖 © T&D知行空間設計
項目信息
項目名稱:唯木空間
項目地點:中國 廣東 東莞
項目麵積:230m²
完工時間:2023.01
設計公司:T&D知行空間設計
軟裝陳設:T&D知行空間設計
設計團隊:黃宇、徐解、何月媚
項目攝影:深圳花覺創意文化傳媒有限公司
木地板:ARRE die
油漆:novacolor
燈具:RIGART LIGHT
潔具:深圳市勇鴻國際建材有限公司
園林:東莞一方造園景觀有限公司
智能:摩根智能
定製:深圳岩作








































