店麵,還是美術館?
現在有太多的好名字隱藏於喧鬧的繁華都市街頭,那些瑰麗的人間寶藏不急不躁等待著走向他們的有緣人。
Store or art museum?
There are too many good names hidden in the bustling streets of bustling cities now, and those magnificent treasures of the human world are waiting patiently for the destined ones to walk towards them.
於是,在一個枝頭戴滿露珠的清晨、陽光撒落窗扉的上午、亦或是百合花慵懶盛開的午後,時光妙不可言,相通的心靈終要相遇。
So, in a morning full of dewdrops on a branch, a morning when the sun falls on the window, or a lazy afternoon when lilies bloom, time is indescribable, and interconnected souls will eventually meet.
陳丹青說:“攔不住的。”
Chen Danqing said, “It can’t be stopped.”
在帕多瓦的古老城牆內,有一個小村莊Via Beato Pellegrino,是意大利曆史悠久的家族產業。一位熱愛藝術的父親Dante Aurelio Raccanello但丁.奧雷利奧.拉卡內羅。一個清晨,他捧起但丁的《神曲》虔誠閱讀,了解但丁的好友Giotto喬托——“歐洲繪畫之父”。但丁.奧雷利奧.拉卡內羅仔細觀摩其畫作之後得到靈感,與他的兩個兒子Gino吉諾和Giuseppe朱塞佩,一起創建了後來享譽全球的ARD品牌。
Within the ancient city walls of Padua, there is a small village called Via Beato Pellegrino, which is a long-standing family business in Italy. A father who loves art, Dante Aurelio Raccanello. One morning, he picked up Dante’s Divine Comedy and read it devoutly, learning about Dante’s friend Giotto Giotto, the “father of European painting”. After carefully observing his paintings, Dante Aurelio Lacanero was inspired to create the globally renowned ARD brand with his two sons Gino Gino and Giuseppe Giuseppe.
開山–混沌初開,萬物伊始
Opening the Mountain – Chaos Begins, Everything Begins
設計師將意大利的溫情浪漫,江南的婉約秀美,在同一時空融洽展現。
The designer showcases the warmth and romance of Italy and the graceful beauty of Jiangnan in harmony in the same time and space.
大廳的立麵猶如被開天之斧劈就而成,直挺的塊麵利落幹淨,整個空間高大俊朗地立起來。
The face of the hall is like being cut by an axe, with straight and clean blocks, and the entire space stands tall and handsome.
壁爐透出的暖光,中和了牆麵的米白。
兩麵L型隔斷牆錯落有致,既讓會客與沙龍兩個區域相互獨立,又保持了一定的通透性,別有意境。
The warm light emanating from the fireplace neutralized the beige on the wall.
The two L-shaped partition walls are arranged in a staggered manner, making the reception and salon areas independent of each other while maintaining a certain degree of transparency, creating a unique atmosphere.
像是意大利畫家的兩片畫板,或江南墨客的兩扇屏風。
Like two art boards by Italian painters or two screens by Jiangnan ink artists.
空間的開辟既有“放”也有“收”。
The development of space involves both opening and closing.
微水泥效果的桌體,在曙光般的光影下,極具意大利的深沉與典雅。
The table with a micro cement effect exudes Italian depth and elegance under the dawn like light and shadow.
右手邊的黑色櫃體呼應背光中的隔斷,似有百種遠古傳說蘊藏其間。
The black cabinet on the right side echoes the partition in the backlight, as if there are hundreds of ancient legends hidden within it.
觀雲–高山仰止 ,雲環霧曉
Observing the Clouds – High Mountains Ending, Clouds Surrounding Mist Dawn
曾記得觀賞古堡壁畫的時候,那種由遠及近,昂首仰望的感覺。
一個時代的曆史,一座城市的藝術,以文字、圖形的方式記錄在一麵麵牆上。
後人觀摩、思索、探究、感悟。這一刻仿佛時空穿梭,教堂的鍾聲在這個空間回響、呼應。
I remember the feeling of looking up from afar when I was admiring the murals of the ancient castle.
The history of an era and the art of a city are recorded on walls in the form of text and graphics.
Later generations observe, contemplate, explore, and comprehend. At this moment, it feels like time and space shuttle back and forth, and the bell of the church echoes and echoes in this space.
柔和的白,溫潤又靈動飄逸。意大利文藝複興時期雕塑大師米開朗基羅對大理石的詮釋給了設計師靈感。
Soft white, warm and graceful. The Italian Renaissance sculptor Michelangelo’s interpretation of marble inspired designers.
大麵積的米白上牆,配上刀削般的牆體輪廓,一如大理石的剛與柔。
大理石雕像美妙之處除卻工藝塑造精湛,還有那若影若現遊離在光影下的韻味。
但這似曾相識的韻味是什麼?
抓耳撓腮,沉思默想,探尋那心底泛著的漣漪,是從何處蕩漾開來……
A large area of beige on the wall, paired with a knife cut wall outline, is as rigid and soft as marble.
The beauty of marble statues lies not only in their exquisite craftsmanship, but also in the lingering charm of light and shadow.
But what is this familiar charm?
Scratching my ears and cheeks, pondering deeply, exploring where the ripples in my heart ripple from
塗料上牆展現的肌理感,以山、水、雲圖騰為參照,繪成中式審美的紋路——山水之間,雲霧繚繞,鳥語、花香隔著輕柔的雲海,伴隨清風徐來。
The texture displayed on the wall of the paint is based on the totems of mountains, water, and clouds, drawing a Chinese aesthetic pattern – between mountains and rivers, clouds and mist are shrouded, and the gentle sea of clouds is separated by the chirping of birds and the fragrance of flowers, accompanied by a gentle breeze.
一把中式圈椅融入景中,與大廳中央堆起的黑色卵石構建了中西方藝術的對話。
微落的燈光從遙遠的洞穴時代亮起,如影隨形,永不熄滅的是時光的記憶。
平整光滑的牆麵和凹凸起伏不平的“洞穴”,質感上形成強烈對比,這種視覺衝擊能夠使大腦自主營造出空間的故事感。
洞內修學,洞外觀雲。
A Chinese style circular chair blends into the scenery, creating a dialogue between Chinese and Western art with the black pebbles piled up in the center of the hall.
The faint light shines from the distant cave era, like a shadow accompanying us, and what never goes out is the memory of time.
The flat and smooth walls and uneven “caves” create a strong contrast in texture, and this visual impact can enable the brain to independently create a sense of spatial storytelling.
Study inside the cave, observe the clouds outside the cave.
登頂–撥開雲霧,平步青雲
Climbing to the summit – dispelling the clouds and mist, taking steady steps towards the green clouds
米白色的空間輕盈靈動,深灰色的台階探出一角。青雲色的扶手,墨水紋的台階,走在其上好似踏水行雲一般。扶手與台階麵都選用了深色,拐角處的牆麵安放了一盞圓形的小燈。
The beige space is light and agile, with dark gray steps protruding from a corner. The blue handrails and ink patterned steps make walking on them feel like stepping on water and clouds. The handrails and steps are both dark in color, and a small circular light is placed on the wall at the corner.
迂回空間的設計,有著意式的棱角,也潛藏了東方的智慧。
The design of the circuitous space, with deliberate edges, also embodies the wisdom of the East.
茶歇-五湖皆友,四海煮茶
Tea Break – Friends from All Lakes, Boiling Tea from All Seas
深色的中式家具與擺件,點綴在淺色的空間裏,就像茫茫大海中露出的礁石。落座期間,如扁舟行於水間。煮茶對飲,四海皆友。
這茶香,拂過江南的春夏,抵達意大利的秋冬。
Dark Chinese furniture and ornaments adorn the light colored space, like reefs exposed in the vast sea. During the sitting period, as if a boat is rowing in the water. Boiling tea and drinking together, friends from all over the world.
This tea fragrance brushes through the spring and summer of Jiangnan and arrives in the autumn and winter of Italy.
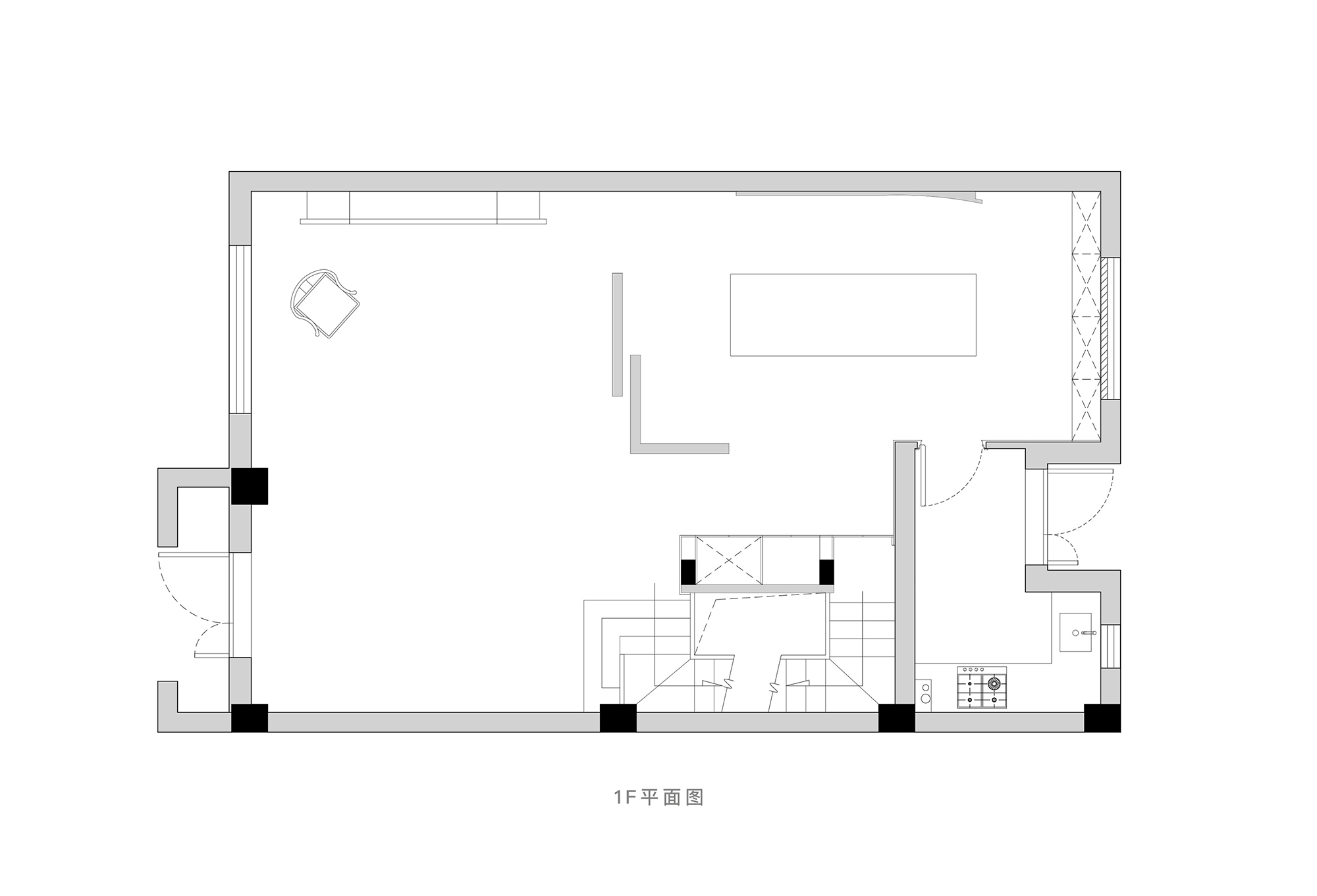
∇ 1F平麵圖
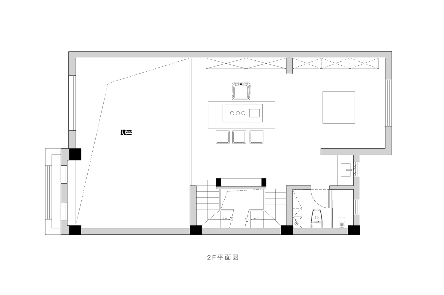
∇ 2F平麵圖
∇ 立麵圖
項目信息
項目名稱 | 時光·ARD
Project Name | Time · ARD
項目地址 | 江蘇 鎮江
Project Address | Zhenjiang, Jiangsu
設計機構 | 上海原話建築
Design agency | Shanghai Yuanhua Architecture
設計主創 | 賈峰雲
Designer | Jia Fengyun
參與設計 | 淩秋萍
Participated in Design | Ling Qiuping
項目麵積 | 180㎡
project area | 180㎡
項目文案 | 王憶夏
Project copy | Wang Yixia
項目攝影 | Ingallery陳琢
Project Photography | Ingallery Chen Zhuo































