The Body Lab是一家十分特殊的連鎖品牌健身房,在這裏人們彼此熟悉,共同營造一個親切的運動社群空間。場地位於商業空間的氛圍之中,空間的主人希望這家健身房之中可以容納一家小型的咖啡館。我們將的空間屬性重新定義為一家與咖啡館“嵌套”在一起的健身房。
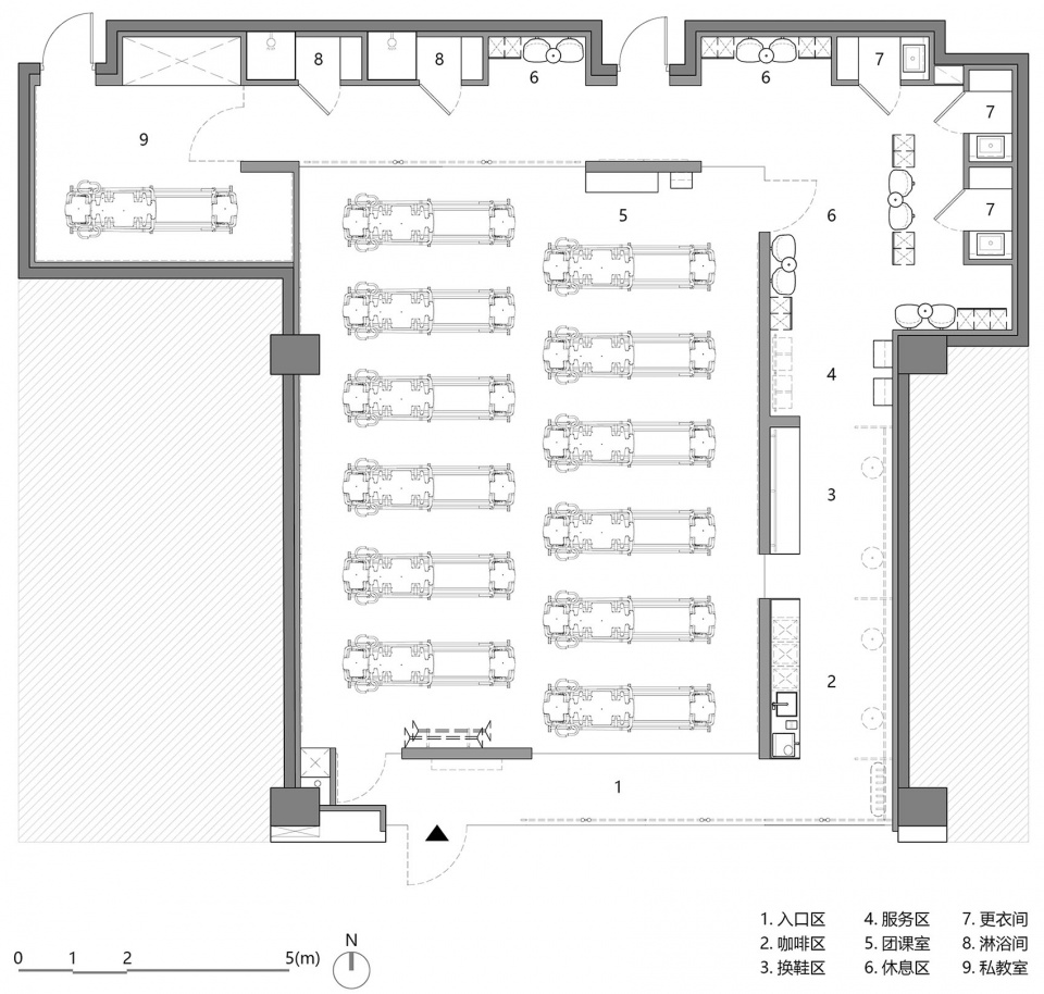
區別於將吧台、休息區、更衣、儲物模塊分區布置的常規手法,我們將這些空間功能拆散混合,圍繞核心健身區域打造了一個流線與視線均在流動的社交空間。這種“混合”與“流動”增加了以往健身房或咖啡館沒有的交互場景:課程開始前,學員可以在吧台前邊喝咖啡邊駐足等待,也可以就坐於更衣模塊之間,與更衣存包的夥伴交談,或者觀摩團課教室內的學員訓練;上課過程中,學員也可以通過半透明隔斷隱約看見其他夥伴在喝咖啡、交談或更衣存包,這時刻給予學員們一種身處於社群之中的感覺,將存在於虛擬之中的“社群”概念具象為空間表達。
為了實現這種“社群”氣氛,我們避免使用刻板印象中過分刺激的健身房元素,轉而采用樸素的材料——水泥砌塊磚作為空間主材,同時為設備、收納家具等這些基礎設施賦予明快的色彩係統,強化空間的識別性。這套色彩係統沿用了80年代車間的色彩體係,淺綠色的吧台,橙紅色的扶手、消防門,深綠色的櫃體,仿佛將時間帶回那個平等、有故事的年代。
∇ 平麵圖
項目信息
項目名稱:The Body Lab 北京嘉裏中心店
設計:空間站建築師事務所
項目設計 & 完成年份
設計:2023年4月-6月
施工完成:2023年9月
主創及設計團隊
設計團隊:
主創設計師:汪錚
項目負責人:廖惠琴
設計團隊:許輝、向懷誌
商業模式谘詢:凹凸合作社
給排水設計:宋顏波
暖通設計:高飛
電氣設計:閆天雄
工程技術負責人:楊定榮
工程現場負責人:李益中
攝影:金偉琦
項目地址:北京市,朝陽區,北京嘉裏中心
建築麵積:200平方米
攝影版權:Spacestation
合作方 施工總包:北京東方盛澤建築工程有限公司
客戶:The Body Lab
品牌:
水泥砌塊磚:北京東四磚業
微水泥:北京歐施泥塗料有限公司
空調:約克























