一隅之地
為這個城市提供的一隅之地在寸土寸金的上海,很大一部分的空間,一邊在低頻的使用,一麵又把極限的麵積空間炒作到天價。
上海市青年幹部管理學院的主辦公樓的兩個樓麵用來作為青少年團成員的學習場所為青少年提供定期的展示展覽開課路演等學習的空間,在沒有大型參觀學習的時間段,也對社會全麵開放,提供學習駐留的場地。
外觀
記憶中在農村的生活裏,看著長輩們在結束一天的忙碌之後,在屋簷下,男性長輩習慣性抽著黃色煙草,沒什麼過多言語,靜靜享受這一刻的休憩,女性長輩們則摘著菜葉,閑聊著一些家常像是在為這一天的忙碌做一個結束語。
廣中路的一側,臨近馬路,建築雨棚做成了一個“屋簷”,在屋簷之下,留出一塊半戶外的緩衝空間,看著馬路的上的車水馬龍,也希望為在這個城市的奔波者提供刹那的休憩空間。
內部
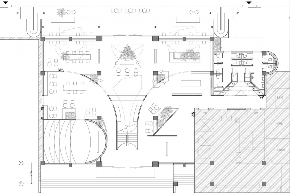
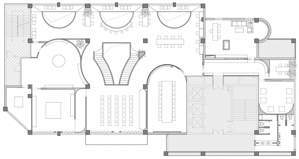
內部空間在改造中更多圍繞後期的使用場景去做設想,一樓的主要圍繞對社會麵開放場景,以景觀,咖啡,書籍,展陳為主,二樓則更多圍繞講學以及展示功能去規劃。
一二樓之間則更多垂直空間的貫通,之前改造的鋼結構樓梯進行拆除,重新設置了雙道混凝土樓梯,更具有踏實感,挑空空間給了大型綠植的更多生長可能。
材料
半戶外的雨棚,采用鋼木結構去呈現,鋼構件更多用於結構之間的連接處理;木結構則更多去做呈現情緒感受的傳遞屋簷之下采用石子鋪設,不過於去做地麵的固化,趨向於原始狀態。
整個建築的外觀,都是八九十年代典型的馬賽克裝飾材料,那在內部則延續馬賽克磚的應用,在馬賽克的長寬比例上也盡量去接近二三十年前的視覺感官,馬賽克的色彩則做了一個跳脫的顏色,整個以綠色生長為原則,再到整個空間內的大麵積的綠植置入。
“繼續”
空間構造之初,更多是一個人或一個團隊在打造的一個場景設想。那更期待的是,在社會層麵扮演不同角色人們在這樣一個空間內發生有意思的故事,從而繼續豐富這個空間,繼續“設計“下去!
∇ 外部軸測
∇ 一層平麵圖
∇ 二層平麵圖
∇ 入口立麵
項目信息
項目名稱:屋簷之下
項目類型:商業
設計方:直距設計
項目設計:徐俊偉
完成年份:2023年2月
設計團隊:施維,鄭凱,齊若嘉,舒之捷
項目地址:上海市永嘉路159號
建築麵積:1100㎡
攝影版權:ACT STUDIO,ANDY
合作方:上海龍琦裝飾工程有限公司
客戶:上海市團校
材料:水磨石/真石漆/不鏽鋼/定製金屬/橡木/











































