本項目是為延鋒汽車飾件係統公司設計的一個接待空間,用於接待其高級客戶。空間位於其展廳的二層,原本沒有窗戶,較為幽暗,密閉。設計師在南側外牆鑿開了兩扇條形長窗,將窗外的樹木景觀引入室內。景觀,陽光和空氣得以在室內外之間流動,交融。
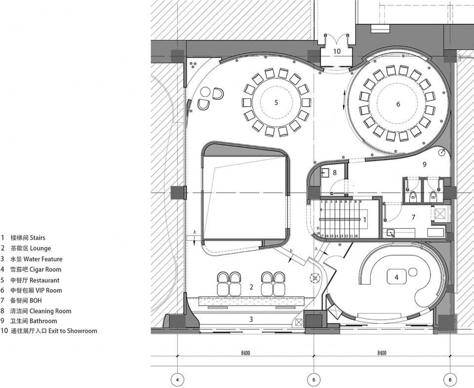
通過一個掛著球形吊燈、簡潔而高聳的樓梯間,訪客從地麵被迎上二層。抵達二層後,南側茶歇區的條形長窗將光線和景觀引入眼簾,提供了一種振奮和平靜的微妙平衡。人在進餐前可在此稍作休息,停歇。弧形的牆體將人包裹起來,呈現了安定的圍合氛圍,也讓空間流動起來。雪茄室同樣位於南側,由一道隱隱約約的夾絲玻璃牆略微分隔,裏麵的沙發順著牆麵呈弧形,讓人麵向景觀及壁爐圍坐。
順著弧形牆體往北,就到達了由兩個圓桌組成的餐廳區域。圓桌一大一小,較大的主桌由可滑動的移門分隔,空間可分可合,可用於多種應用場景。
去往衛生間的路上會經過一個方形小窗,透過窗洞可以看到樓梯間的球形吊燈和上樓的路徑,時間和視線在這裏重逢。
在汽車和生活越來越智能化的今天,智能科技帶給了我們無可爭議的便捷與快速。我們在這個汽車展廳的接待空間中,期望用綠樹,陽光,空氣,以及質樸的材料來平衡科技帶給我們心理的亢奮或焦慮,敦請身處其中的人們來感受一種關於快與慢,以及生活真義的體悟。
∇ 平麵圖
項目信息
項目名稱:鑿壁借景 —延鋒秀浦路展廳接待空間
客戶:延鋒
設計公司:多棵設計
設計團隊:陳曦,李蓉,莊皓淶
結構設計:潘超
花藝設計:南山
施工單位:上海路遠建築裝飾工程有限公司
麵積:248㎡
完成時間:2023年04月
項目地址:上海市浦東新區秀浦路428號
攝影師:磊杜
版權聲明:本站所有文章除投稿授權發布外,其他文字內容均為原創,享有著作權保護,未經許可不得以任何形式進行轉載(包括且不限於:媒體、網站、公眾號等)。所有項目照片/設計圖形版權歸原作者所有。本站部分內容源自網絡公開資源或用戶分享,如若侵犯了原作者的合法權益,可聯係我們進行處理。






















