熹維室內設計辦公地址的搬遷意味著新故事的開始,位於南京城牆下。觀賞高樓古牆,光影交錯間,金陵往事不斷映入眼簾。再點一杯咖啡,仿佛時間都已靜止,感受曆史與時代的交彙。
映入眼簾的是以點線麵打造的門頭,通過線條、色塊、材質的組合搭配,整體外觀充滿理性與純粹,宛如一幅構成主義平麵畫作。主體黑色門頭與原建築白色形成對比,左側開窗位置為Coffee Shop對外窗口,精致的戶外遮陽棚呈現全天光與影的變化。入口處Logo的設計既有利於宣傳品牌形象,又具有導視作用,感應門滿足多種應用場景。另一側落地窗去除多餘窗框,百葉簾的融入勾勒出頗具美感的光影。不止白天,夜晚也很溫馨,上方設計燈帶,柔美的燈光充分蔓延,晚風吹過愜意滿滿。咖啡吧外擺的休閑座椅隨意又慵懶,不同的形式滿足多樣化的體驗需求,探索空間的理想狀態。
進入內部空間,依舊延續室外基調,黑色為咖啡區域的主色,也是與內部辦公空間劃分的重要參考。靠牆設卡座,配置兩把熹維設計師款木凳,實用性滿分。另一側咖啡屋通過地麵抬高和櫃體圍合讓整體構造感更強,兩把吧台椅線條利落,為顧客提供一處休閑安靜的區域。
辦公空間整體以原木打造,自然的質感加入微水泥的細膩,創造簡潔有力的藝術作品。開敞辦公區去除多餘裝飾,將原木運用到淋漓盡致,頂麵燈具延續構成感,與豎向支撐體和諧組合,簡約的造型與嚴謹的結構兼具。左側三間洽談室通過地麵抬高、整木包裹的處理形式增強層次感,而玻璃隔斷和紙膜吊燈的融入讓空間更加輕盈通透。順著辦公區向內,到達較私密的辦公室,意味著內與外、私密與開敞的共生與界限。
樓梯設計延續構成主義特性,高與低、虛與實在此處達成統一,木質踏步與牆麵微水泥碰撞出溫暖的配色。樓梯下方設計一處休閑區,一盞壁燈溫馨治愈,滿足客戶來訪的等待需求。
左右兩側的樓梯通向不同的空間,一側為總監辦公室,通過保留斜頂結構更有構成感,前端設洽談區,皮質沙發加幾把座椅,落地燈也為整體格調加分,內部設辦公桌,玻璃台麵加木質支撐展現自然材質與現代設計的融合美感,後方一排矮櫃實用又美觀,形成更加豐富的視覺感受。通過樓梯走向另一側,開放式會議室使功能更加多樣化,裸露的管道保留著空間原本的結構,新與舊達到平衡,同時為設計師打造環境舒適的單人辦公室。遠處樓梯可通往頂樓,空間利用率達到較高標準。
整體設計以“構成主義”為導向,歸納提煉,化繁為簡,通過平衡、對比、層次等手法,賦予空間獨特的美感。
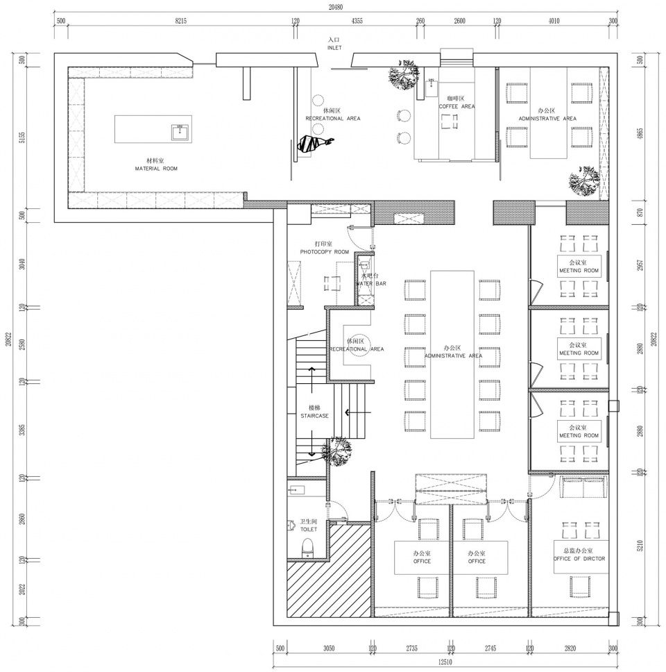
∇ 一層平麵圖
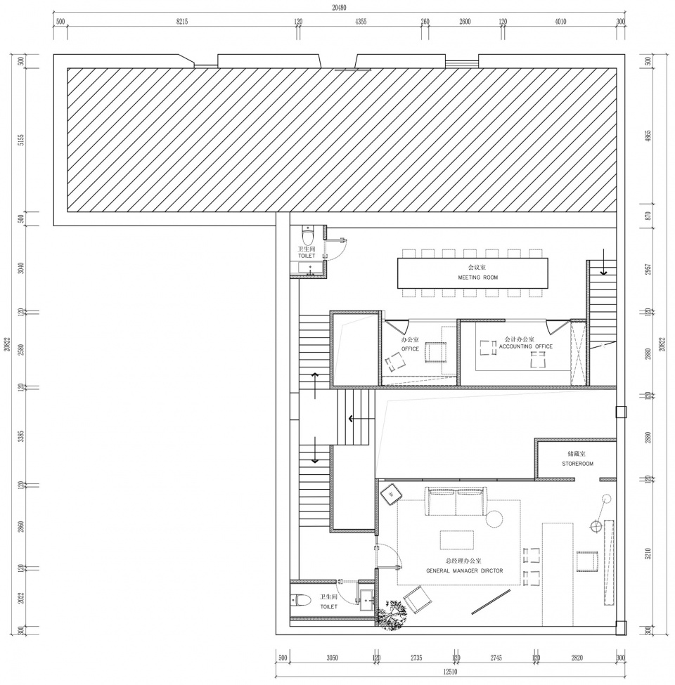
∇ 二層平麵圖
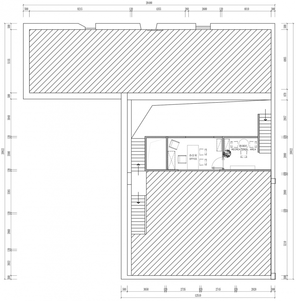
∇ 三層平麵圖
項目信息
項目名稱:結構的敘事-熹維辦公空間
項目類型:室內設計工作室
設計方:熹維室內設計
項目設計:2023.5
完成年份:2023.10
設計團隊:熹維設計師團隊
項目地址:江蘇省南京市秦淮區悅動新門西18棟102-2
建築麵積:558㎡
攝影版權:ingallery
客戶:熹維室內設計
材料:木飾麵、微水泥、玻璃、瓷磚






























