業主想要一個光線充足、通風良好的私人空間。 受剪紙藝術的啟發,房子的外立麵類似於折疊紙,有角度的折疊,右側有一扇長窗戶,用於采光和通風,同時保持隱私。左側各種尺寸的方形開口在白天允許光線照射,在晚上則使立麵發光。
進入後,高高的天花板給人一種寬敞的感覺,同時在起居室、餐廳和廚房區域使用一致的大瓷磚增強了視覺空間。入口附近的一堵有紋理的白色牆壁是一係列古董歐洲燈飾的背景。廚房中降低的木質天花板和深色主題與起居和用餐區形成了視覺對比。用於後擋板和長島台的紋理花崗岩為廚房增添了有趣的感覺。後麵的擋風板增強了空氣流通。主臥室通向景觀露台,提供與道路隔離的私人休憩場所。床高度處的水平窗戶構成了花園景觀,同時又保證了通風和隱私。
第三層是一個室內花園,其家庭活動室兩側均采用全玻璃麵板,營造出一個充滿自然生機的公共空間。這種室內外融合增加了整個房子的氣流和自然光。剪紙風格的樓梯通過過濾樓層之間的自然光來增強這一點。臥室中的微風塊進一步促進房屋內的氣流。街區後麵設計巧妙的翻蓋門提供了自然通風和空調之間的靈活性。該設計平衡了私人和公共空間,同時優先考慮自然光和通風。
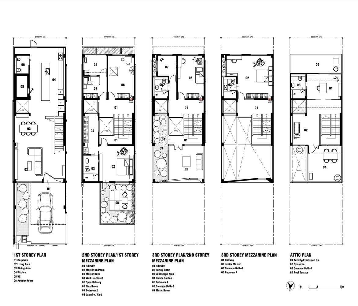
∇ 平麵圖
∇ 空氣流通示意圖
版權聲明:本站所有文章除投稿授權發布外,其他文字內容均為原創,享有著作權保護,未經許可不得以任何形式進行轉載(包括且不限於:媒體、網站、公眾號等)。所有項目照片/設計圖形版權歸原作者所有。本站部分內容源自網絡公開資源或用戶分享,如若侵犯了原作者的合法權益,可聯係我們進行處理。






















