這所房子是為家人和朋友而設計,他們希望欣賞大自然,從事運動,並在距離聖保羅270公裏的Avaré/SP的Jurumirim大壩旁享受休閑。該建築總麵積為1,300㎡,位於11,000㎡的地塊上,可欣賞大壩的景色。
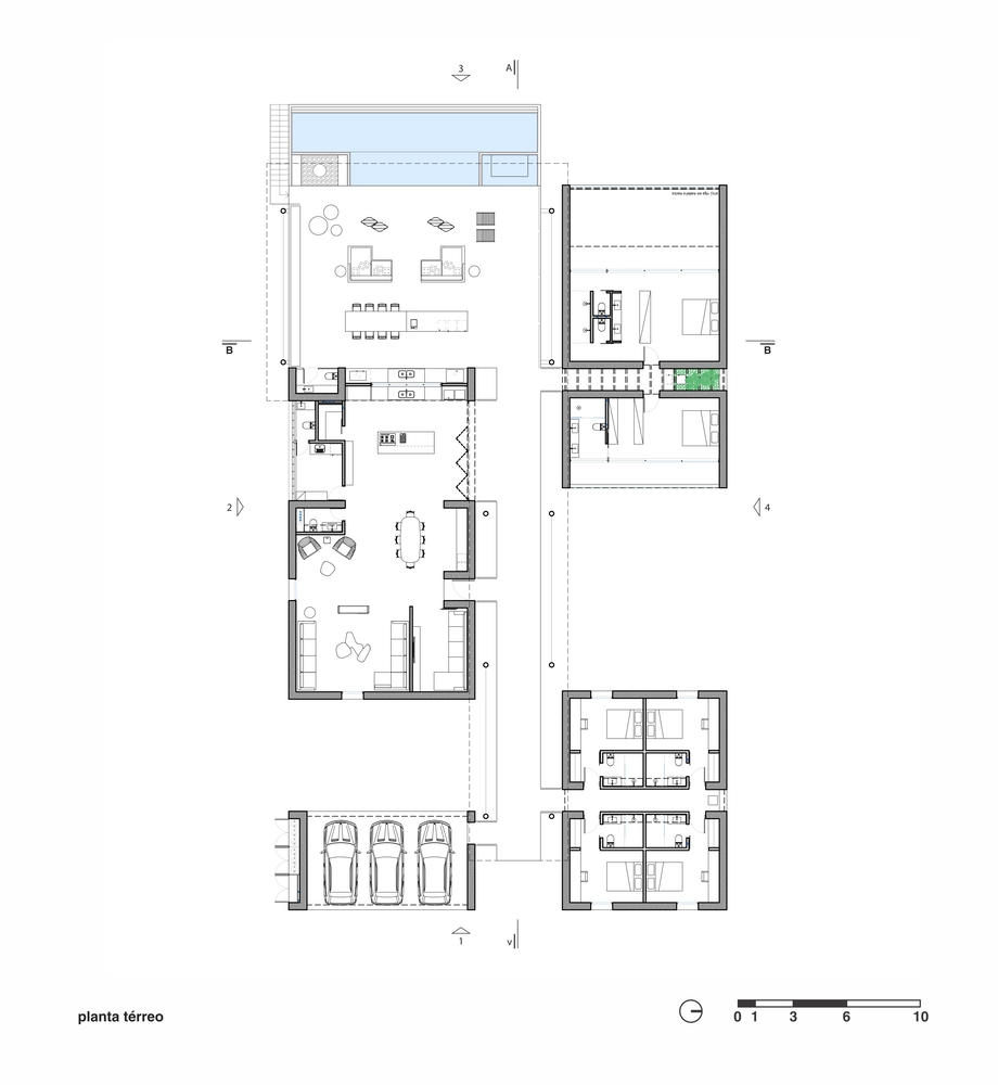
建築之間的連接由一條3米寬的高架木製甲板走道建立,從入口處形成一條循環軸線,穿過房屋的所有區域,最終形成一個帶燒烤架的陽台、起居空間和一個俯瞰大壩的遊泳池。
一個精致的交叉層壓木帳篷覆蓋著這條循環軸線,由車削的MLC木材製成的細長柱子支撐,直接將屋頂連接到從地麵露出的基礎上。與這個高架甲板和細長的帳篷形成鮮明對比的是,4個功能街區由厚厚的夯土牆組成,這些土牆來自場地本身,在一個巨大的現場鋼筋混凝土底座上執行,該底座從自然地形中出現,突出了土地的坡度,當施工接近大壩的海岸時。
自然材料紋理、光影遊戲、間隙空間和景觀整合使建築對象以沉思的方式和對“建築的微妙物質”的感知成為自然環境的補充。
∇ 平麵圖
版權聲明:本站所有文章除投稿授權發布外,其他文字內容均為原創,享有著作權保護,未經許可不得以任何形式進行轉載(包括且不限於:媒體、網站、公眾號等)。所有項目照片/設計圖形版權歸原作者所有。本站部分內容源自網絡公開資源或用戶分享,如若侵犯了原作者的合法權益,可聯係我們進行處理。







































