作為悅椿遺產收藏區Xcanatún莊園總體規劃全麵開發的一部分,該任務包括設計一個水療中心,該水療中心可以適應酒店補充設施的目錄和目前正在開發的Villes房地產項目。
SPA位於 Hacienda Xcanatún 的中心地帶,在主池塘的邊緣,設計前提是創造一個與莊園的物理和自然環境互動的建築。為此,建築師提出了建立在水平基礎上的線性亭子的設計,該亭子可以產生人性化的比例,並為莊園其他區域的程序提供隱私。
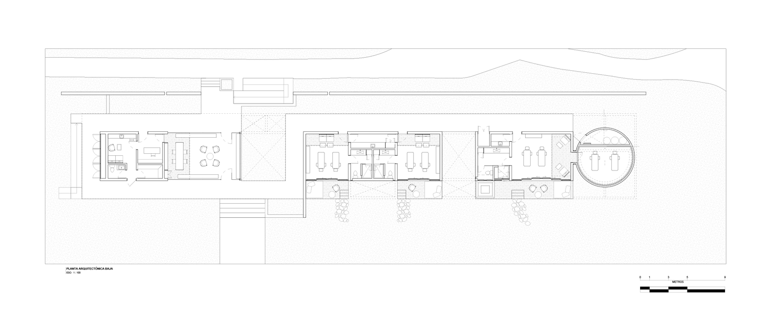
這個亭子主要由4個基本元素組成:金屬結構,包含並表達了建築的所有元素——一係列的石頭和chukúm體積,用於容納水療項目。平坦的懸臂式樓板提供了水平度,可以防止雨淋和日曬,並伴隨著模塊之間的路線和它們之間創建的中央露台。
∇ 平麵圖
版權聲明:本站所有文章除投稿授權發布外,其他文字內容均為原創,享有著作權保護,未經許可不得以任何形式進行轉載(包括且不限於:媒體、網站、公眾號等)。所有項目照片/設計圖形版權歸原作者所有。本站部分內容源自網絡公開資源或用戶分享,如若侵犯了原作者的合法權益,可聯係我們進行處理。


























