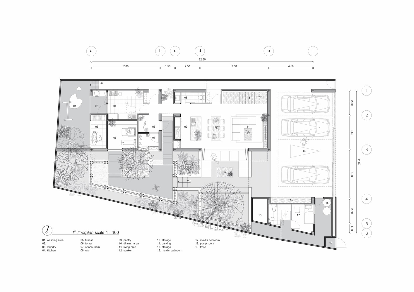
最近在城市中,社會化社區的背景發生了變化。鄰裏間是陌生人,也是新來者;大家沒有一起成長或經曆生活。因此,不得不重新定義鄰居之間的關係,相互依賴性影響了這種設計的結果。然而,仍然需要合適的自然陽光來建造居所,所以Greenbox Design把這棟房子設計成L形。別墅分為三個部分,利用這些分離的優點來製作合適的天窗和通風口。由於住宅是左鄰,設計師設計了共享空間,麵積為198㎡,營造出通風和開放的氛圍。
Greenbox Design對後院的建議,轉向西南側,挑戰了陽光的方向,Greenbox Design認為這有利於將其放置在這個方向上。首先,獲得了來自西南方向的風,鄰居建築物的高度通過陽光的遮陽使後院受益,鼓勵孩子們在天氣好的時候進行戶外活動。在夏天,當太陽下山時,客廳不會受到陽光的直接影響。此外,白天的光現象將產生光影,以適當地適應每個區域的使用。
別墅建築的外觀是由主人的個性和興趣來建造。男主人對時尚和現代的活動感興趣,而女主人則以溫柔甜美為特征。Greenbox Design將房子設計得簡單而優雅,通過使用淺灰色材料(包括木材和石頭)來代表男主人的性格,而內部則以暖色調為主。
在內飾方麵,Greenbox Design的目標是營造一種柔和溫暖的感覺,Greenbox Design為所有具有不同質地的材料選擇了暖色調和顏色。白色奶油色的瓷磚給人一種放鬆的感覺,在視覺上擴大了室內,並且易於維護。大理石和一些窗飾被用來為用餐區增添細節。樓梯下方的空間被指定用於隱藏洗手間門和第二個入口。Greenbox Design設計了類似於樓梯的牆壁,以有效地隱藏門。樓梯旁邊的牆壁采用板條設計,以最大限度地提高該區域的尺寸,因為頂部安裝了天窗,以觀察白天陽光的變化。
景觀不是專門為西方或東方模式設計。灌木的大多數紋理都給人一種西方的感覺,而柳樹則絕對給人一種東方的氛圍。事實上,景觀區域已被用於入口,以增強到達主屋的順序。
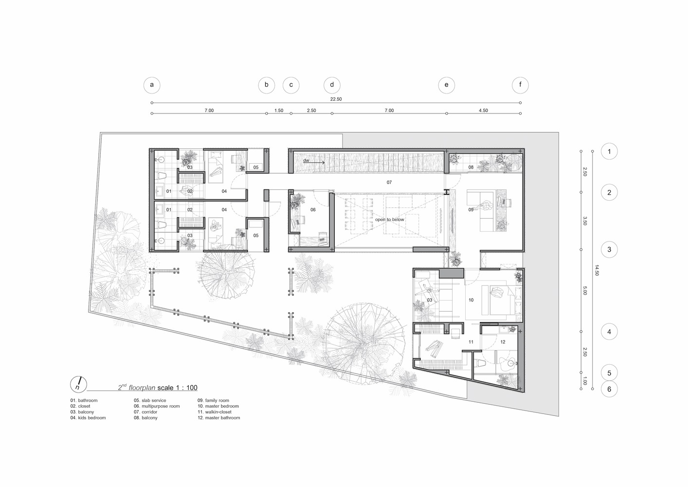
由於這所房子是為一對新婚夫婦設計,因此不需要完全考慮每個人的隱私。因此,Greenbox Design將公共區域的規模安排得比私人區域大得多。每間臥室都有其適當的大小,以鼓勵公共區域的可用性。將建築分成三個部分,不僅是為了天窗和通風口,也是為了樓上與花園的自由空間進行溝通的微小連接。出於這個原因,Greenbox Design將主臥室設在該區域,以便業主可以俯瞰房屋的每個部分。選擇木材作為樓上使用的材料,因為Greenbox Design強調溫暖和舒適的質地。主臥室非常緊湊,設計簡潔,提供空間和放鬆。由於壁櫥和洗手間的規模不太大,設計師決定將這兩個區域連接在一起,以最大限度地擴大房間麵積。設計師將浴缸區域設計得類似於內部庭院,為房間的另一部分提供照明。
∇ 平麵圖
∇ 軸測圖











































