“方院”位於雲南省紅河哈尼族彝族自治州工業園區內,業主希望我們利用園區內的一個角落用地,設計一幢服務用房,在這個高度工業化的園區內營造一處安靜的辦公及休閑場所。
“Fang Courtyard” is located in the Industrial Park of Honghe Hani and Yi Autonomous Prefecture, Yunnan Province. The client need us to design a service quarter in a corner area of the campus, as a independent place to work and relax.
命題:還原一座真實的房子
The Task:Restore it to a real house
當業主把我們帶到一片深藏在工業園區內的工地,指著那棟一層主體混凝土框架已完工的“仿古四合院”說:我想讓你們重新設計一座四合院。這時我們知道:他不隻是想要傳統意義上的四合院。於是命題便清晰起來——在基本不改變已建成的結構體係的前提下,設計一棟既適合現代工業園區環境,同時保有“四合院”空間特色,並兼顧辦公及生活的房子。對我們而言,更重要的是,扒掉“仿古”的虛假的外殼,還原一座真實的院子。
When the client led us to a construction site tucked away in an industrial park, pointing to the concrete frame of a completed first floor ,and it will be built as a Imitation pseudo-classical buildings. When he told us that he want a quadrangle and invited us to redesign it. We realized he didn’t just want a quadrangle in the traditional sense. So the proposition became clear – to design a building that not only harmonizes with the modern industrial park environment but also retains the charm of a “quadrangle courtyard”, and also serves office and residential functions. For us, what’s more important is to strip away the false veneer of “pseudo-classical” and return it to a real house.
∇ 原四合院設計方案效果圖,The previous design proposal rendering
∇ 建築原始結構,The original structure of the building ©張雷
作文:封閉與開放
Proposal:Closure and Openness
我們首先麵對的問題是:如何讓一棟具備傳統合院空間的建築在一個現代工業園區的場地環境中顯得合理而自然。在維持原始結構體係及建築技術經濟指標不變的前提下,扔掉仿古的殼,重新梳理功能空間。
Our first challenge was how to design a appropriate building with traditional “quadrangle” type within the context of a modern industrial park. On the premise of maintaining the original structural system and building technical and economic indicators unchanged, discard the shell of the antique courtyard and reorganize the functional space.
∇ 設計手稿,Sketches
傳統“合院”空間對外封閉,景觀內求,恰好可與界麵封閉工業建築構成形式上的協調。因此,外牆的開窗設計務求克製,加之景牆對入口界麵的進一步統一淨化,我們得以不失情趣地完成了與工業建築的形態對話。
The traditional “quadrangle” space is closed off from the outside, with an inward focus on the courtyard landscape. This allows for a formal harmony with the closed industrial buildings. Therefore, we designed the windows with restraint and selectivity, and further clarified the entry interface with a clean dividing wall. We successfully maintained the aesthetic of the quadrangle while engaging in a dialogue with industrial architectures around.
∇ 封閉的外牆,Closed exterior walls ©張雷
∇ 克製的立麵開窗,Restrained window opening ©張雷
∇ 景觀內院,Inner courtyard ©張雷
在推門進院之前,我們希望獲得一個與幹淨敦厚且尺度感模糊的外立麵截然相反的靈動體驗。於是在大門兩側嵌入鏤空隔板,消解厚重牆體帶來的沉悶。讓視線有節製地穿透院牆,內景隨步伐推進而時隱時現,空間序列逐漸展開。
Before entering the quadrangle, we wanted to create a vivid experience that contrasts with the pure, honest, and scale-ambiguous facade. So we inserted two hollow partitions on both sides of the gate, breaking up the heavy wall and adding a touch of lightness. This allowed controlled views into the quadrangle, with the inner scenery revealing itself as you walk through.
秩序與空間序列
Order and Spatial sequence
傳統的雲南民居有相對固定的製式,無論是昆明“一顆印”的“三間四耳倒八尺”,或是大理的“四合五天井”,都在形式上有其傳統原型要求。設計在格局製式與空間軸線關係方麵均嚴格對應傳統。中庭四周一圈均分的柱列,形式雖不“古”,目的卻還是用於強化傳統天井空間的秩序中心的儀式性。交通組織也將“回馬廊”的形式進行了當代演繹。
Traditional dwellings in Yunnan have relatively fixed form and standards, such as “Yikeyin” type in the central districts of Yunnan and dwellings of the Bai nationality in Dali, each with their own traditional prototypical requirements. In terms of layout and spatial axes, our design strictly adheres to these traditional models. The evenly spaced columns were designed around the central courtyard, while not a “ancient” form, it serve to reinforce the ritual significance of the traditional courtyard’s spatial form and standards. The transportation organization also reinterprets the “Horseshoe Gallery” of ancient times.
∇ 建築平麵秩序,The order of plan
在傳統合院的秩序的基礎上,我們試圖構建出一個連續的遊覽序列:入口“甬道”——門廳——庭院——柱廊——小庭院——樓梯間——二層內廊。入院,辦公、餐廳、茶室等公共屬性相對較強的功能安置在首層,首層對內外庭院借景的需求因而更強。既要借景,又要避免視線延伸至外圍工業建築,外庭之外的圍牆提供了視線的限定,外立麵也得以借景而不見窗,解放出首層的開窗自由。
We used a moderate amount of flexibility to purposefully arrange light and courtyards within the traditional order, creating an uninterrupted spatial sequence of The straight entry corridor – Vestibule – Courtyard – Colonnade – Small Courtyard – Stairs -Corridor on the second floor. Entering the building, offices, dining rooms, and tea rooms with relatively strong public attributes are located on the ground floor. This floor has a stronger need for borrowing scenery from both inside and outside the quadrangle. We managed to achieve this while avoiding extending the view towards the industrial buildings. The outer wall limits the view, while the facade remains hidden from view, giving the ground floor more freedom in window placement.
∇ 建築入口,Building entrance ©張雷
∇ 入口甬道,The straight entry corridor ©張雷
∇ 門廳,Vestibule ©張雷
∇ 內院柱廊,Colonnade ©張雷
∇ 小庭院,Courtyard ©張雷
∇ 樓梯間,Stairs ©張雷
∇ 二層內廊,Corridor on the second floor ©張雷
空間序列與光線
Spatial sequence and Light
傳統的合院民居雖強調製式,卻往往不拘泥於製式,建造在不同的場地中,房子也會在製式的基礎上“適應性”的生長。我們設計“四合院”,更希望靈活的傳承製式而非原樣搬運。適當的變通讓我們得以有目的的組織空間與光線。光線在遊覽序列中都被特意地精心處理:或從拔高的門頭一瀉而下,或從廊道的格柵板上濾出,又或是透過外牆的空心砌塊滲透進來。人們在院落與廊道被光衝洗後,方才進入室內。至此,有序而靈動的“新合院”空間序列才終告完整。
Traditional quadrangle-style dwellings stress form and standards but are not bound by it, allowing for flexibility in construction based on different sites. When designing this quadrangle, we wanted to maintain that flexibility while borrowing elements from ancient models. Light is carefully manipulated in each space: cascading down from an elevated vestibule, filtered through grating panels, or seeping through hollow bricks in outer walls. People are bathed in light after entering through these corridors before finally entering the interior spaces. Only then does the ordered and lively “new quadrangle” spatial sequence come to a complete whole.
∇ 門廳的光影,Shadow of Vestibule ©張雷
∇ 柱廊的光影,Shadow of Colonnade ©張雷
∇ 樓梯間的光影,Shadow of stairs ©張雷
∇ 回廊的光影,Shadow of Cloister ©張雷
∇ 光與建築,Light and Architecture ©張雷
結語
Epilogue
這原本是“蓋一座四合院”這樣一個命題清晰明了的項目,卻因其獨特的場域環境,被賦予了複雜的內涵,進而可以被更具體地操作。這個項目對我們來說是一個限定得比較明確的“命題作文”,我們需要在明確預算的前提,在“非居住”園區內設計一個,以傳統“居住”建築類型為原型的功能混合的建築——工業園區配套服務用房。這本是一個在整個工業園區所有建築項目中會被最簡單、最集約設計和建造的建築,而我們希望通過這個項目能夠傳達出一個理念——任何一個建築都值得用心思考和建造,在盡量控製建築投資的前提之下,生活和工作都值得被更好的建築去容納。我們利用簡單的建造方式、普通的材料去建造一個不太普通的建築。我們想,設計這樣一棟建築,並非造一棟“豪宅”,未必要借貴重的材料與複雜的建造抬高身價;轉而把它視為一棟生產建築則更不恰當。拋開塑造物理性內外環境的題中應有之義,我們把這個項目中對場所與空間處理理解為:對生產與生活兩種行為發生交融時的平衡與調試。這個空間既需容納主人眼下工作忙碌,也應寄托對詩意生活方式的向往。這是一個被精心設計過的簡單盒子,是一個抽象得當的“四合院”,也是我們對這一命題的答案 —— 一個盡可能簡單卻又內涵豐富的容器,去容納生活的複雜與矛盾。
This was originally a project with a straightforward task: “build a quadrangle,” but its unique site environment gave it a complex context that made it more challenging. This project was like a clearly defined composition assignment for us. Given a certain budget and within a “non-residential” context, we needed to design a mixed-use building based on traditional residential architecture prototypes and be used as an industrial park annex building. This building would have been one of the simplest and most intensively designed among all other Architectures in the industry campus, yet we hoped it could convey a message: every building deserves thoughtful consideration and construction, even within the constraints of controlling investment costs. We used simple construction methods and ordinary materials to create an extraordinary building. We don’t see this as building a “mansion,” rather we didn’t use expensive materials or complex construction techniques to add value; it would be more appropriate to consider it as a industry building instead. Leaving aside its physical environment, we see this project as about balancing work and life when they intersect. This space must accommodate its owner’s busy work life while also fulfilling his longing for poetic life. It’s a carefully designed simple white box, an appropriately sized quadrangle; it also our answer to this task- a vessel that’s as simple as possible but still rich in meaning, to accommodate life’s complexities and conflicts.
∇ 夜景,Night view of the building ©張雷
∇ 庭院夜景,Night view of the Courtyard ©張雷
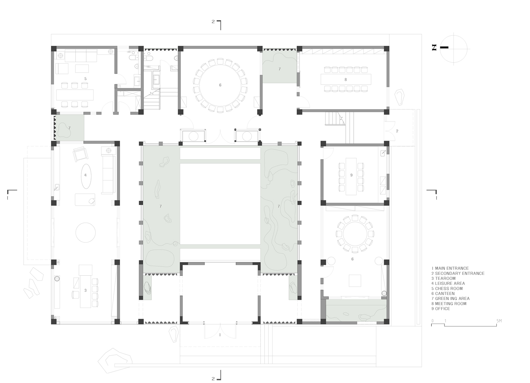
∇ 一層建築平麵,The first floor building plan
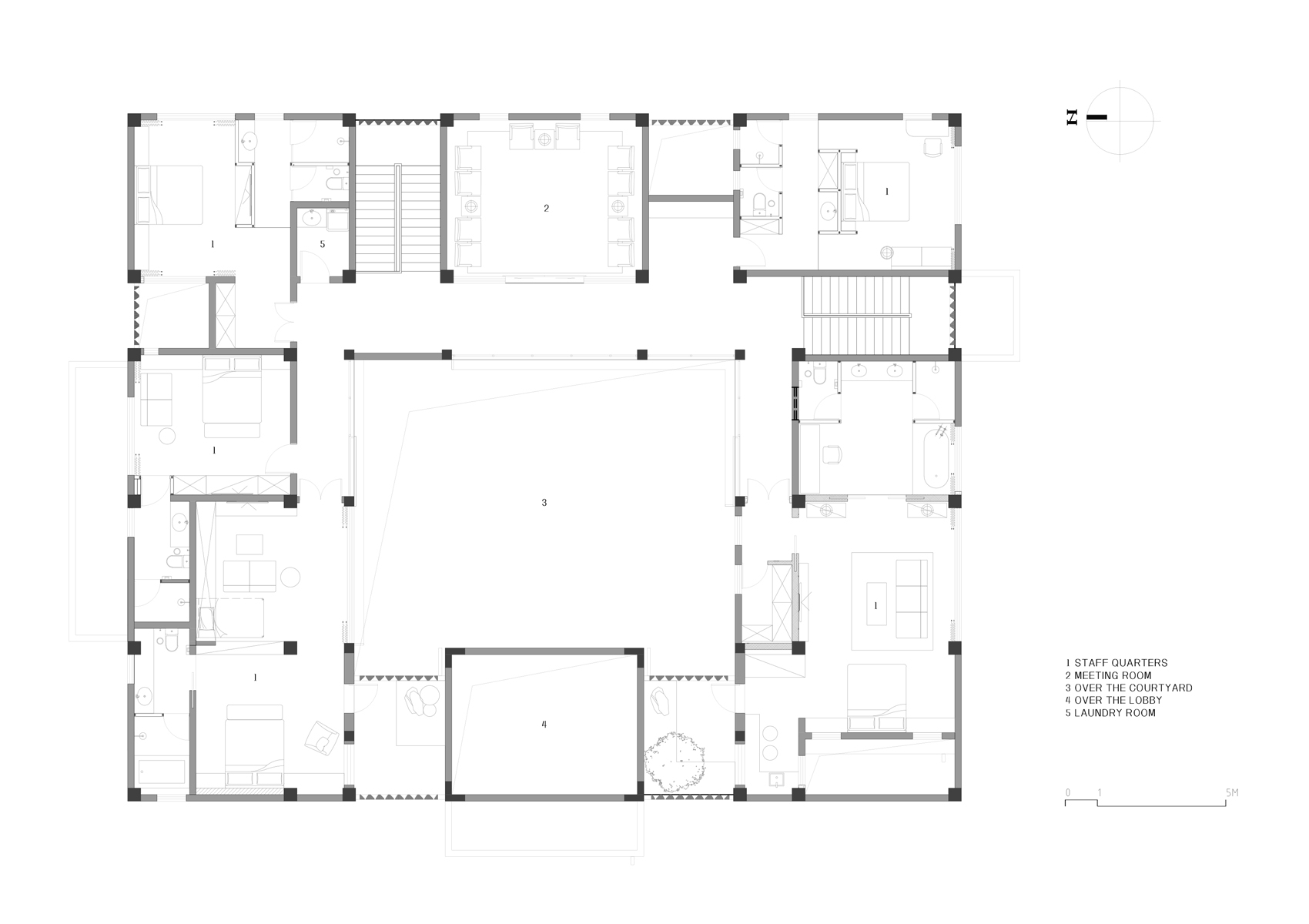
∇ 二層建築平麵,The second floor building plan
∇ 立麵1,Facade 1
∇ 立麵2,Facade 2
∇ 1-1剖麵,Section 1-1
∇ 2-2剖麵,Section 2-2
∇ 建築軸測,The axis side view
項目信息
項目名稱:方院——工業園區裏的“四合院”
項目類型:建築設計,建築改造,室內設計
項目地點:雲南省紅河哈尼族彝族自治州彌勒市工業園區內
設計單位:素造建築
主創建築師:郭旌 董文 杜傑
設計團隊完整名單:郭旌 董文 杜傑 尹曉文 朱文逸 張雷 程春楊 趙勝超 楊宇航 馬麗娜 李璟 陸繼行 陳濤 趙陽 王慧涵
建成狀態:建成
設計時間(起迄年月):2021.11——2022.09
建設時間(起迄年月):2022.05——2023.06
用地麵積(平方米):407.83㎡
建築麵積(平方米):646.88㎡
建築施工圖:雲南吉成園林設計有限公司
景觀:雲南吉成園林設計有限公司
攝影師:張雷(素造)










































