朱比利山 (Jubilee Hills) 是印度海得拉巴的一個丘陵高檔住宅區。它充滿了大型、華麗的住宅,其中大多數更多的是其有影響力的居民的項目,而不是氣候或環境敏感的建築。因此,每棟建築都試圖在周圍環境中顯得獨特、更加引人注目,從而使這個街區成為了不同時間和地點的建築風格的融合體。與海得拉巴的其他街區相比,這裏的特色(如果有的話)來自於起伏的山路、岩石地形以及大樹的持續存在,尤其是黃火焰樹(Peltophorum pterocarpum )。
該場地長 160 英尺,短邊各 60 英尺,麵向南北。較短的一側有道路通道和從南到北下降 30 英尺的斜坡。場地外的南北兩側,有四層樓高的巨大黃火焰樹。
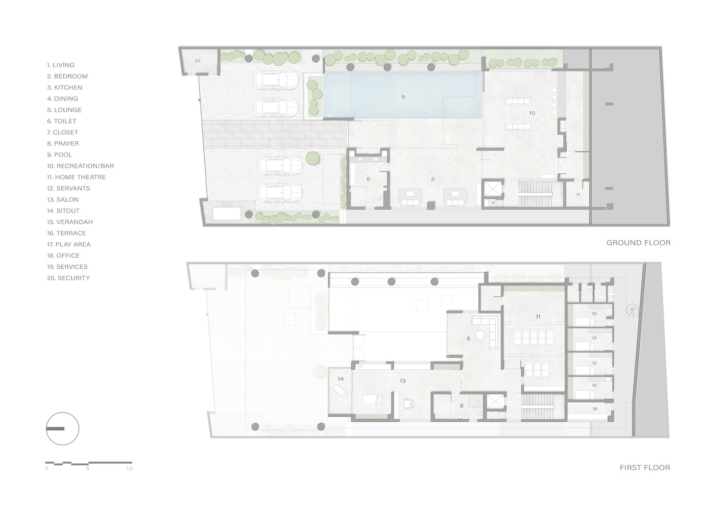
一個大門廳,帶有一個帶天窗的懸垂花園,歡迎人們通過一扇巨大的門進入房子的下兩層。這些樓層容納了所有的休閑空間,這些空間以一個巨大的雙高空間為中心,裏麵有遊泳池。上麵的五層向後錯開,形成了北部的梯形結構,與印度起伏的稻田相呼應。這些露台全年都被其前麵的地板遮蔽,充滿了層疊到隨後的較低露台上的景觀。北側和南側高聳的黃色火焰樹充當了與周圍環境的天然視覺屏障,它們引人注目的季節性花朵為環境調色板增添了鬱鬱蔥蔥的黃色樹葉。
在房子的內部,有一個巨大的中央空間,有兩個連接的雙高區域。一麵巨大的、空白的、大理石覆蓋的牆貫穿整個體量,光線透過巧妙地放置在室內種植區域上方的天窗灑在牆上。一座雕塑般的樓梯在明暗對比中蜿蜒彎曲,其形狀隨著頭頂的天窗而變化,呈扇形延伸到一樓的客廳。一共有三間臥室,兩間在一樓,第三間在二樓,所有臥室都可以通過內省的窗戶看到中央空間。主臥室占據了三樓,並配有附屬書房和私人陽台。
∇ 技術圖紙
版權聲明:本站所有文章除投稿授權發布外,其他文字內容均為原創,享有著作權保護,未經許可不得以任何形式進行轉載(包括且不限於:媒體、網站、公眾號等)。所有項目照片/設計圖形版權歸原作者所有。本站部分內容源自網絡公開資源或用戶分享,如若侵犯了原作者的合法權益,可聯係我們進行處理。











































