萬物皆戲劇,首位親子微劇場
All the World’s a Stage, SHOWAY ARTS SPACE FOR FAMILIES
全世界是個舞台,所有的男男女女不過是一些演員;
他們都有下場的時候,也都有上場的時候。
—— 莎士比亞
All the World‘s a Stage,And all the men and women merely players;
They have their exits and their entrances.
—— William Shakespeare
首位大計劃
SHOWAY BIG PLAN
首位(SHOWAY)位於上海市青浦區國家會展中心的西側,是聯美集團旗下一個擁有140萬方超大體量的文化商業綜合體。首位劇場事業部有一個宏偉計劃,將在此建成一個亞洲最大規模的現場演藝劇場群,全年上演來自全世界各地的優質劇目,旨在為上海帶來前所未有的文化體驗。首位親子微劇場(SAS)正是這一宏偉藍圖中的第一步:這不僅僅是一個專為0至14歲孩子及其家長量身打造的專業劇場,更是一個富有社區營造精神的多功能社交空間。
SHOWAY, located on the west side of the National Exhibition and Convention Center in Qingpu District, Shanghai, is a cultural and commercial complex with a massive scale of 1.4 million square meters, under the aegis of the LUENMEI GROUP. The SHOWAY Theatre Division harbours an ambitious plan: to establish the largest live performance theatre complex in Asia on this site. Showay Arts Space for Families (SAS) represents the initial step in this grand blueprint: is not only a venue for children aged 0 to 14 and their parents but a multifunctional social space imbued with a spirit of community building.
MEEM HOUSE與首位劇場事業部共創,以“萬物皆戲劇”為核心設計概念,從品牌,視覺,標識到空間的多維度設計,曆時一整年的設計與施工,在2024年1月16日迎來了首位親子微劇場的首秀。“劇有引力,煥新生活”,我們期待在這個家庭親子美好生活實驗場,將會發生的一場場關於戲劇演藝、文化交流和培訓學習的社區營造活動。
MEEM HOUSE and the SAS Team have pioneered an innovative project, anchored in the core design concept of “All the World’s a Stage”. This concept encompasses a multi-dimensional design approach, spanning brand identity, visual aesthetics, and spatial arrangement. After a year of design and construction, the first performance at SAS is started on January 16th, 2024. Under the motto “Drama attracts, revitalizing life”, we anticipate this place to serve as a hub for family-oriented activities, fostering a community through theatrical performances, cultural exchanges, and educational programs.
∇ 仰視角外立麵 Looking-up View of Façade © Voyager 21
∇ 區位圖 Site Location © MEEM HOUSE
∇ 項目軸測 Axonometric © MEEM HOUSE
LOGO即IP
LOGO IS IP
∇ 標識小人 Logo Design © MEEM HOUSE
如何建立品牌視覺體係,MEEM HOUSE總結了一套類比學方法論,就好比如何建造一個房子:品牌即地基,人群即柱子,產品即立麵,設計即裝飾。我們從品牌看不見(invisible)的內核出發,閱讀品牌,了解人群,分析產品,最終轉譯成看得見(visible)的視覺設計。
To establish a brand’s visual identity system, MEEM HOUSE has articulated a methodological analogy akin to the construction of a dwelling: brand as base, people as pillars, product as façade, and design as decoration. This philosophy initiates with the brand’s unseen core — its invisible essence — progressing through a comprehensive understanding of the brand, an analysis of the audience, and an evaluation of the product, eventually translating into a visible visual design.
突破常識,我們為首位親子微劇場設計了一個熱愛角色扮演的戲精標誌。
品牌的核心產品是戲劇。戲劇是以語言、動作、舞蹈、音樂、木偶等形式達到敘事目的的舞台表演藝術。戲劇擁有四大元素,包括了演員、故事、舞台和觀眾。演員作為最重要的元素,是角色的代言人,具備扮演的能力。角色扮演,因此成為了品牌視覺設計的起點。
Thinking out of the box, we have crafted a logo for SAS that exudes passion for role-playing.
The heart of our brand is the theatre — an art form of stage performance that employs language, movement, dance, music, and puppetry to narrate stories. Theatre consists of four fundamental elements: the actors, the narrative, the stage, and the audience. Actors, as the most crucial component, serve as the ambassadors of characters, endowed with the talent for role-play. Thus, role-play forms the genesis of our brand’s visual design.
首位親子微劇場的英文名稱是Showay Arts Space for Families,英文縮寫是SAS,我們用這三個英文字母組合LOGO,形成小人的擬人形態。搭配不同的道具,有樂器、麵具、帽子甚至是提線木偶,一個不停行走的可愛小人躍然紙上。他/她是佐羅,是小醜,是吟遊詩人,是無所不能的全能演員。標誌設計不再是傳統的靜態唯一解,而是一組動態視覺家族(family of motion identity)。
The logo, crafted from SAS, depicts an anthropomorphic figure. Adorned with various props like musical instruments, masks, hats, and even marionettes, it portrays a charming character in constant motion. This figure embodies Zorro, a jester, a minstrel — an actor with boundless versatility. Our logo design moves beyond the traditional static image to become a dynamic visual family — a family of motion identity.
不同角色和動態,充滿戲劇性的品牌視覺語言,讓LOGO成為劇場文化的超級符號,也順其自然的成為了可以不停拓展和進化的IP形象。
The diverse roles and dynamic elements infused with a dramatic language of brand visual, transforming the logo into a symbol of theatrical culture. It naturally becomes a continuously evolving IP image.
∇ 標識設計 Signage Design © MEEM HOUSE
∇ 品牌視覺設計 Visual Design © MEEM HOUSE
立麵即媒體
FAÇADE IS MEDIA
∇ 外立麵 The Façade © Voyager 21
∇ 街區軸測 Site Axonometric © MEEM HOUSE
“從首位劇場出發,去看世界。”我們建造一個新世界的入口,通往戲劇世界!
“Embarking from SAS, let’s behold the world.” We construct a portal to a new realm, a gateway leading into the world of drama.
如何因地製宜,恰如其分地填補城市空間的縫隙,我們信奉“立麵即是媒體”的設計理念。從工作室的第一個建成項目漢中路地鐵站公共藝術裝置開始,MEEM HOUSE始終保持對城市,建築與室內三種不同尺度的關注,熱衷於捕捉室內空間與城市界麵的微妙關係。
To fill the interstices of urban spaces, we adhere to the design philosophy that “the façade is the media.” Beginning with our studio’s first completed project, the public art installation at Hanzhong Road Subway Station, MEEM HOUSE has consistently focused on the urban, architectural, and interior scales, passionately capturing the interplay between interior and urban.
在首位親子微劇場的外立麵改造中,我們麵對的是140萬方的巨構城市綜合體。場地位於寬150米、長400米的立體街區的二層,由扶梯、天橋、連廊和高層構成的建築空間,既不同於市中心的步行街區,亦不同於傳統的內街式購物中心。在迷宮般的混凝土矩陣中,我們需要一個直白坦誠,化繁為簡的立麵形象,劇場的入口即是品牌的宣言。
The site is situated on the second level of this three-dimensional block spanning 150 meters wide and 400 meters long, comprising escalators, overbridges, corridors, and high-rise architectural spaces. Within this labyrinthine complex, we require a façade that is forthright and clear. The entrance of the theatre serves as the proclamation of the brand.
在建築大師文丘裏的名著《向拉斯維加斯學習》中,他認為建築是“帶符號的遮蔽物”,建築除了空間本體,也具有象征主義。傳統的劇場入口有幾個特征:出挑的雨蓬、絢麗的燈光、碩大的標識,這些元素構成了我們對劇場的第一記憶。追溯劇場原型的同時,我們也在優化工作室的找形(form-finding)邏輯。與首位的相識,緣起小小萌樹。既是巧合又是因果,我們在小小萌樹的設計中,以樹為原型,首次建造了一組弧形穿孔鋁板立麵。
In “Learning from Las Vegas” by an American Architect Robert Venturi, he believes that architecture serves as a “symbolic shelter,” suggesting that buildings take on not only their spatial essence but an element of symbolism. Traditional theatre entrances are characterized by different features: protruding marquee, vibrant lighting, and grand signage, all of which constitute our initial recollections of a theatre. While tracing back to the archetypes of theatres, we are refining our studio’s logic of form-finding. Our acquaintance with SHOWAY originates from PETIT CHOU CHOU — a French family learning center. The design of PETIT CHOU CHOU guided us in constructing our first series of façade with curved perforated aluminum panels, taking inspiration from the form of tree.
∇ 立麵即媒體 Façade is Media © MEEM HOUSE
∇ 《向拉斯維加斯學習》羅伯特·文丘裏 Learning From Las Vegas by Robert Venturi
∇ 小小萌樹安遠路校區 Petit Chou Chou @Anyuan © MEEM HOUSE
包裹,是外立麵形式邏輯的源頭,也是劇場原型的象征意義。
Wrapping is the origin of the façade’s logic of form, as well as the symbolic essence of the theatrical archetype.
1.0版本:一道微弧的四度曲線,代替玻璃幕牆,水平的雨棚漸變成垂直的立麵。穿孔圖案由上至下的漸變,仿佛漫天繁星灑落,這是戲劇性。但是這樣還不夠,因為這可以是任何一個劇場。2.0版本:我們在穿孔圖案裏融入了首位親子微劇場的英文標識,不是霓虹燈,不是亞克力燈箱,而是用不同孔徑的穿孔圖案。肌理、標識、照明,化繁為簡的形式,三位一體。像素化是一種波普解構,代替習以為常的大字報,文字以圖案的載體進行信息的傳遞。曲麵立麵仿佛暗藏在手卷中的密碼,揭示新世界的入口。
Version 1.0 features a gentle curve replacing the glass curtain wall to form a vertical façade. The perforated pattern fades gradually from top to bottom, creating an effect of starry sky. Yet this alone was insufficient, for it could represent any theatre. Version 2.0 integrates the English logo of SAS within the perforated pattern through varying aperture sizes. With text as a patterned carrier of information, the curved façade conceals secrets like a cipher in a scroll, unveiling the entrance to a new world.
改造後的立麵不僅傳承了傳統劇場的氣質,更對象征主義進行了媒介的創新;在塑造了首位親子微劇場在都市巨構中標識性的同時,也為首位的立體街區帶來了嶄新的活力和能量。
The new façade not only maintains the atmosphere of traditional theatres but also innovates in its symbolism as a medium; it marks SAS ‘s identity within the city and infuses SHOWAY with vitality and energy.
∇ 立麵生成圖解 Diagram of Façade © MEEM HOUSE
∇ 外立麵標識穿孔 Perforated Façade with Logo © Voyager 21
∇ 首位親子微劇場立麵 Façade of SAS © Voyager 21
∇ 首位親子微劇場入口 Entrance of SAS © Voyager 21
∇ 外立麵夜景 Façade at Night © Voyager 21
萬物皆戲劇
ALL WORLD’S A STAGE
看過世界的孩子,內心更加充盈和強大。—— 佚名
Children who have seen the world own a more abundant and resilient inner strength.——Anonymity
∇ 前場剖麵 Section of Foyer © MEEM HOUSE
自古以來,劇院把人們聚在一起,在日常社交生活中扮演著重要的角色。“科技的劇場,人文的前廳”,傳統劇院最熱鬧的地方就是劇院的前廳。我們有專業的劇場顧問配合設計一流的劇場聲光電,這不是難題。如何打造匹配當代生活範式,符合當地社區需求的劇場前廳,是首位親子微劇場的核心挑戰。
Historically, theatres have gathered people together, playing a significant role in everyday social life. “The theatre of technology, the foyer of arts” – the liveliest part of traditional theatres has always been the foyer. With our professional theatre consultants, designing the sound and lighting of theatre is no longer a challenge. The core challenge for SAS lies in creating a foyer that aligns with contemporary lifestyles and meets local community needs.
再一次的包裹:在20米長,9米寬的矩形空間中,我們植入一道環繞連續的牆體,成為街區的內立麵。
Wrapping again: within a 20-meter long and 9-meter wide rectangular space, we implant an encircling wall, becoming the internal façade of the SAS.
柔軟動態的牆體,隨著不同功能氣泡的嵌入漸變成最終的有機曲麵。第一個氣泡是花園入口的落塵區,不對稱氣泡扭轉空間軸線,開始消解橫平豎直的矩形。一大一小兩個氣泡相融成聯通的服務空間:內凹處是精致小巧的谘詢台,代替傳統的ticket box,是街區的迷你居委會;凸起處是功能齊備的吧台區,聯名獨立烘培品牌Meebo Kaffee,是街區的快樂能量補給站。一株橄欖樹穿越懸掛跑馬燈的定製吊燈,倒圓角的長桌區成為咖啡社交的空間標配。沙龍活動區的磨石地坪從深到淺嵌套大小橢圓,對應的天花處是一片內凹柔光燈膜,一個無隔斷、弱邊界的自在場域滿足不同活動模式的沙龍,講座和發布會。
This wall has been transformed into a curved surface as various functional ‘bubbles’ are embedded. The first bubble is a vestibule after the entrance which acts as a garden. A large bubble and a small bubble merge into a connected service area: the concave part is an information desk, replacing the traditional ticket box; the convex part is a fully-equipped bar, in collaboration with the independent baking brand Meebo Kaffee. An olive tree pierces through a custom hanging marquee-LED banner, and the round-cornered long table becomes a necessity for coffee socialization. The terrazzo flooring of lounge area turns from dark to light following the shape of ellipse, while the stretch ceiling above it is in ellipse to reflect the pattern on the floor. An open interior fulfills the different modes of lounges, lectures, and press conferences.
“萬物皆戲劇”,我們希望以小見大,把一個不足200平方米,商業績效低下的浪費空間,轉化成“戲劇之外,生活之內”的超級社交場:它是一個極具戲劇感的迷你街區,傳播世界各地的戲劇文化;它也是一個充滿能量的城市會客廳,滿足不同年齡段人群和家庭的社交。
“All the World’s a Stage,” and with this concept, we aim to transform an underperforming commercial space which less than 200 square meters into a highly-social space that extends beyond drama into the realm of life. It is a dramatically-charged space that disseminates theatrical cultures from around the world; it is also an energized lounge the socializing needs of diverse age groups and families.
∇ 前場空間生成圖 Diagram of Foyer © MEEM HOUSE
∇ 前場社交客廳 Lounge Area © Voyager 21
∇ 米咖焙坊和長桌 Meeboo Kaffee with Long Table© Voyager 21
∇ 谘詢台 Information Desk © Voyager 21
∇ 米咖焙坊 Meeboo Kaffee © Voyager 21
∇ 多功能活動區弧形牆 Multifunctional Area with Orange Curved Wall © Voyager 21
∇ 多功能活動區 Multifunctional Area © Voyager 21
∇ 多功能活動區投影 Multifunctional Arae with Projector Screen © Voyager 21
除此之外,藏在外立麵的另一端暗藏一處飛地,這是超級社交場的一個空間彩蛋。從首位親子微劇場出發去看世界,在首位課堂用藝術煥新美好生活。首位課堂擁有兩個可以合二為一的培訓教室,與外立麵同一造型語言的包裹形態下配置可智能控製的無影照明,滿膠鋪的專業舞蹈地板提供最舒適的觸感體驗。首位課堂是除劇場外,集教育培訓、活動沙龍、雅集聚會為一體的第三空間,為社區活動的拓展提供更加專業的空間服務。
At the other end of the façade lies another highly-social space–Showay Artra Lab. It contains two mergeable training rooms equipped with intelligent lighting under the same language of the façade, and the professional dance floor offering the most comfortable tactile experience. Beyond the theatre, the Showay Artra Lab is the third space that combines educational training, activity lounges, and social gatherings, providing a more professional space service for the expansion of community activities.
∇ 首位教室 Showay Artra Lab © Voyager 21
∇ 教室剖麵 Section of Artra Lab © MEEM HOUSE
∇ 培訓教室 Training Room of Showay Artra Lab © Voyager 21
∇ 首位教室入口 Entrance of Showay Artra Lab © Voyager 21
萬物皆戲劇,劇場即果殼。
All the World’s a Stage, and the theatre itself is but a nutshell.
在劇院前場的盡端,牆體破開,緩緩卷起一片室內雨棚,這是呼應外立麵新世界入口的記憶喚醒。雨棚不是為了遮風擋雨,而是以撥開的姿態,展露果殼的內核。不同尺度相似形態,似曾相識的空間記憶。LED屏幕播報上映的劇目,“Magical Jouneys Start Here”,提示觀眾從熱鬧的社交場中安頓心情,即將進入未知的戲劇世界。換鞋區是一個過渡氣泡,大麵積黑色的聚酯纖維吸音板點綴明亮的橙色,極致的空間利用滿足先後200多人次的換鞋和駐留。藏在換鞋區後麵的即是黑匣子劇場,梯田狀的台階座位猶如一座山丘,最多能容納220人同時觀劇。無邊界的互動舞台,滿足當代親子戲劇關於演員和小觀眾之間的親密互動體驗。
At the forefront of the lounge area, a small marquee is gently rolling up, this gesture reflects the shape of façade. The LED screen on the marquee announces the current play, “Magical Journeys Start Here” on the door reminding the audience to settle their minds amidst the bustling social scene, on the cusp of entering an unknown theatrical world. The shoe-changing area serves as a transitional zone, where the black polyester fiber sound-absorbing panels are accentuated with bright orange, this space is able to accommodate over 200 individuals. Behind this area is the theatre which is coloured in black, its terraced seating is capable of hosting up to 220 spectators. The boundless interactive stage meets the contemporary demands for intimate interactions between performers and the children in theatre.
上帝存在與細節中。在MEEM HOUSE以往的親子教育設計案例中,我們與諸多真誠的教育者溝通,得到一個相似而一致的結論:親子教育空間不是為了追求網紅打卡或是視覺盛宴,而是在無所不在的細節設計中尋求一種真實性。我們與材料顧問甲骨人合作,在裝飾主材的選擇上進行了嚴格的環保測試。樺木板的溫潤,納米塗料的膚感,無機磨石的細膩,這些質樸的天然材料成為了空間的皮膚。我們反感這幾年流行的“平替”概念,而是力求材料質感的真實性:木頭就是木頭,石頭就是石頭。裝飾不是罪惡,虛假才是罪惡。
God is in the details. In MEEM HOUSE’s past projects on parent-child education, conversations with many educators have led to a consistent conclusion: parent-child educational spaces are not about chasing internet fame or visual feasts, but about seeking authenticity through detailed design. In collaboration with material consultants Jogoro, all the main materials are chosen due to their environmental friendliness and sustainability. The warmth of birchwood, the texture of nano-coatings, and the smoothness of terrazzo, these simple natural materials form the skin of the space.
∇ 黑匣子劇場入口 Theatre Entrance © Voyager 21
∇ 換鞋區標識 Shoe Changing Area Signage © Voyager 21
∇ 劇場剖麵 Section of Theatre © MEEM HOUSE
∇ 劇場台階座位 Terraced Seating © Voyager 21
∇ 劇場標識 Logo and Signage in the Theatre © Voyager 21
∇ 劇場演出 Performance © Voyager 21
∇ 材料和肌理 Materials and Texture © Voyager 21
不止劇場
MORE THAN THEATRE
愛具體的人,不要愛抽象的人,要愛生活,不要愛生活的意義。
—— 陀思妥耶夫斯基
Love a concrete person. Don‘t love an abstract person. You should love life itself instead of love the meaning of life.
—— Fyodor Dostoevsky
不止劇場,更是社區。
More than just theatre, it’s a community.
回想2023年初我們與Elsa及其團隊的第一次見麵,談及社區營造的可能性,一拍即合下的共創,傳統地產的房東(landlord)思維已經不能滿足當下的消費觀念。空間追隨敘事(form follows fiction),設計不再是精致的皮囊,而更是飽滿的內核。
Reflecting on our initial meeting with Elsa and her team in early 2023, the discussion on the potential of community-building led to an immediate and collaborative agreement. Form follows fiction, where design is no longer just a refined form but a rich inner core.
劇場是生活的放大鏡,通過藝術的方式,讓我們更深刻地理解和感受人類的情感和經曆。首位親子微劇場重新定義親子劇場,這裏不僅是戲劇教育的先鋒陣地,更會有不同品牌的合作,不同人群的相識,不同價值的彙聚和不同文化的交流。首位親子微劇場的日常,是由人群,戲劇,場景共同營造的微型社區,也是劇場群計劃充滿活力的起點。
The theatre magnifies life, allowing us to profoundly understand and feel human emotions and experiences through art. Showay Arts Space for Families redefines the concept of theatre for parents and children, serving not only as a pioneer for theatrical education but also as a hub for collaborations of distinct brand, acquaintance of diverse groups, convergence of varied values, and exchange of different cultures. The daily life of SAS is a micro-community co-created by people, dramas, and scenarios, marking a beginning full of vitality for the theatre complex.
∇ 前場入口 Entrance of Foyer © Voyager 21
∇ 黑匣子劇場 The Theatre © Voyager 21
∇ 首位親子微劇場標識 Signage of SAS © Voyager 21
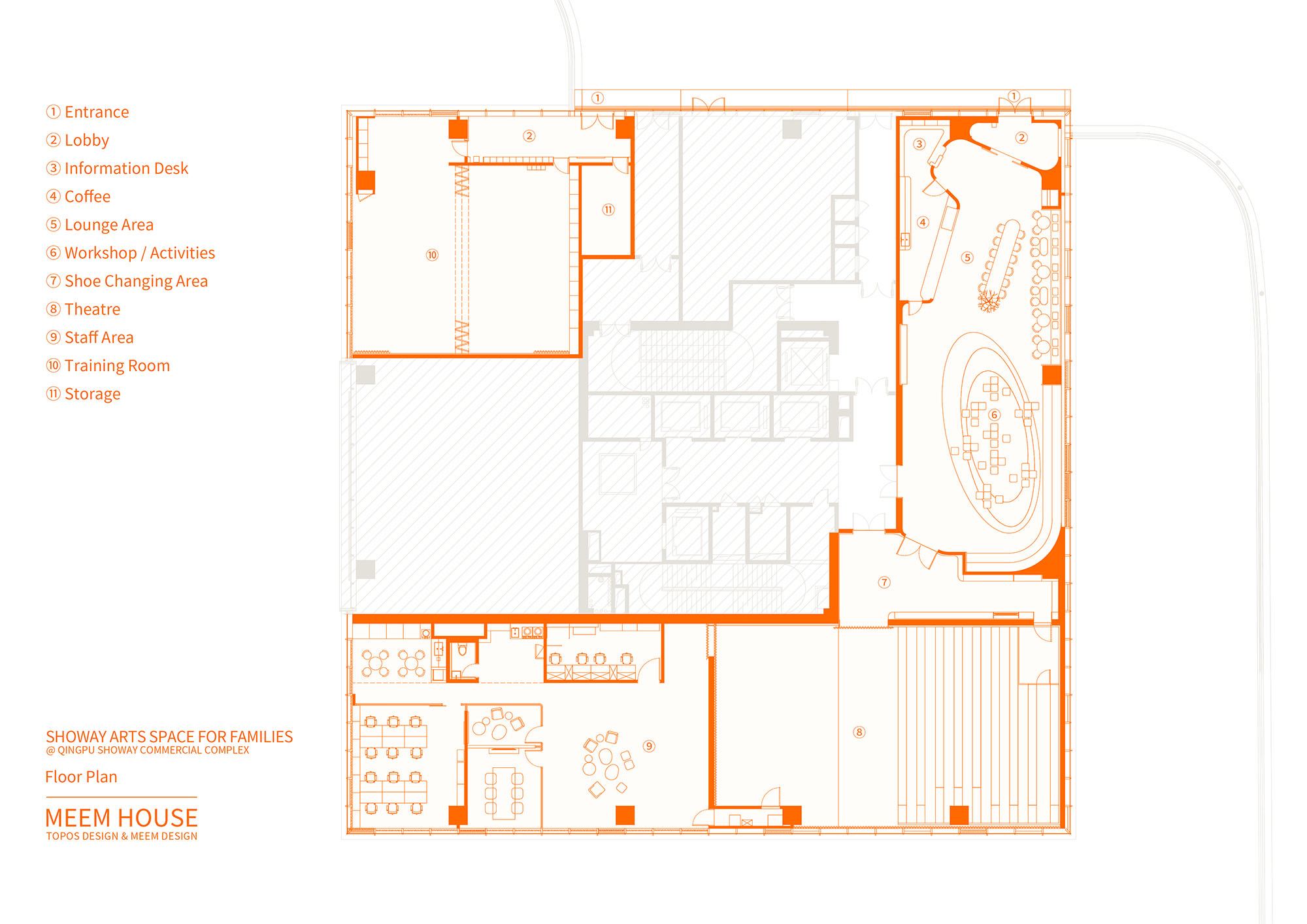
∇ 平麵圖 Floor Plan © MEEM HOUSE
項目信息
項目名稱:首位親子微劇場
項目地址:中國,上海,青浦首位商業綜合體
項目麵積:900m²
業主單位:上海聯虹置業有限公司
業主項目管理團隊:首位(上海)文化發展有限公司
設計單位:MEEM HOUSE
設計總監:秀子
項目建築師:呂傑
空間設計團隊:呂傑,王秋硯,馮岩岩,張浩然,張凱,林晨
視覺設計團隊:秀子,陳思雨,吳淩豔
機電顧問:王必虎;材料顧問:甲穀人;照明顧問:勱光設計;劇場顧問:虎躍舞台設計
施工單位:上海萬星建設工程有限公司
空間攝影:Voyager21
設計時間:2023.04至2023.07
施工時間:2023.07至2024.01
項目主材:無機磨石,穿孔鋁板,樺木多層板,聚酯纖維吸音板,穿孔吸音板,納米塗料,A級防火膜,模塊柔性LED屏幕
Project: SHOWAY ARTS SPACE for FAMILIES
Location: SHOWAY Commercial Complex, Qingpu District, Shanghai, China
Area: 900m²
Client Shanghai Lianhong Real Estate Co., Ltd.
Client’s Project Management Team: SHOWAY (Shanghai) Cultural Development Co., Ltd.
Design Studio: MEEM HOUSE
Design Director: Xiuzi
Lead Architect: LV Jie
Spatial Design: LV Jie, WANG Qiuyan, FENG Yanyan, ZHANG haoran, ZHANG Kai, LIN Chen
Graphic Design: Xiuzi, CHEN Siyu, WU Lingyan
MEP Consultant: WANG Bihu;Material Consultant: Jogoro Material Consulting;Lighting Consultant: Mai Guang Lighting Design
Theatre Consultant: Huyue Stage Design
Construction: Shanghai Mansei Construction Engineering Co., Ltd.
Photographs: Voyager21
Design Period: April 2023 to July 2023
Construction Period: July 2023 to January 2024
Main Materials: Terrazzo, Perforated Aluminum Panels, Birch Plywood, Polyester Fiber Acoustic Panels, Perforated Acoustic Panels, Nano Coating, Class A Fire-resistant Film, Modular Flexible LED Screens

















































