盛澤壇丘繅絲廠改造
Renovation of Suzhou Shengze Tanqiu Silk Reeling Factory
項目背景
Social Background
∇ 改造之前的壇丘繅絲廠, Original situation before renovation@平介設計
∇ 曆史背景, historical background@平介設計
蘇州盛澤的絲綢生產與貿易源遠流長,植桑、養蠶、繅絲、織綢的曆史可追朔到公元前。從盛唐貢品到明清“盛綢”,盛澤生產的絲綢早已蜚聲華夏。解放後,盛澤絲綢從傳統手工生產逐步發展到工業化生產,創建於1969年的壇丘繅絲廠就是盛澤早期蠶絲工業化的標誌之一。隨著技術進步和社會發展,壇丘繅絲廠逐步退出曆史舞台。近年來,在長三角一體化發展的推動下,盛澤正在經曆經濟飛速發展與絲綢產業升級。在當地城市更新政策的推動下,壇丘繅絲廠也麵臨轉型升級。
絲路盛澤·數字文化產業園區是由江蘇遠見文旅控股集團與盛澤鎮政府攜手合作,項目以繅絲廠舊址為核心,打造了“絲路盛澤·數字文化產業園區”。園區的設計理念圍繞美學生活、產業辦公和產業服務展開,形成了一個可消費、可體驗、可產業化的創新型數字文化產業合作示範區。遠見文旅充分利用工業遺存,遵循“城市微更修舊如舊”的原則,通過展示館係統還原60年代末盛澤絲綢紡織工業的盛景,同時對廠房空間進行改造,打造成當代盛澤絲綢美學創新轉化中心、文化演藝空間和文化旅遊基地。數字文化資產(IP)的引入,結合“文+產+旅”的新方向,塑造了絲綢文旅的新地標。
Suzhou Shengze’s silk production and trade have a long history. The history of mulberry planting, sericulture, silk reeling and weaving can be traced back to BC. From the Tribute of Tang Dynasty to the “Sheng Silk” of Ming and Qing Dynasties, the silk produced by Sheng Ze has long been well-known in China. After liberation, Shengze silk gradually developed from traditional manual production to industrial production. The Tanqiu Silk Reeling Factory, founded in 1969, is one of the symbols of Shengze’s early silk industrialization. With technological progress and social development, Tanqiu Silk Reeling Factory gradually withdrew from the historical stage. In recent years, driven by the integrated development of the Yangtze River Delta, Shengze is experiencing rapid economic development and silk industry upgrading. Driven by the local urban renewal policy, the Tanqiu Silk Reeling Factory is also facing transformation.
∇ 各空間原狀, Original status of spaces@平介設計
壇丘繅絲廠坐落在蘇州市大運河畔的盛澤古鎮,保留了相對完整的生產建築和一係列生產機械。該廠區呈現出新中國轉入現代化建設時期的典型江南紡織工業建築風貌,是代表當地經濟與工業發展的典型地標和重要工業遺產。它不僅是盛澤的“城市名片”和“集體記憶”,更是傳承中國絲綢文化的重要載體。
Tanqiu Silk Reeling Factory is located in Shengze Ancient Town on the bank of the Grand Canal in Suzhou. It retains a relatively complete production building and a series of production machinery. The factory presents a typical Jiangnan textile industry architectural style during the period of New China’s transformation into modernization. It is a typical landmark and important industrial heritage representing the local economic and industrial development. It is not only Shengze’s “city card” and “collective memory”, but also an important carrier to inherit Chinese silk culture.
設計任務
Design tasks
∇ 建築日景, day view@徐英達
∇ 北立麵外景,north facade@徐英達
本次改造的組團將作為示範區為該廠區改造後的產業園區的整體開發提供改造思路。該組團包括了位於廠區核心的選剝繭室、蒸繭車間、煮繭車間、複搖車間、繅絲車間等建築。產權方希望保留工業遺產建築未來作為其他用途的可能性並且滿足當下文化展覽以及產業辦公的基本需求。
The cluster of this regeneration will serve as a demonstration area to provide regeneration ideas for the overall development of the factory. The cluster includes cocoon picking and stripping room, cocoon steaming workshop, cocoon cooking workshop, re-shaking workshop, silk reeling workshop and other buildings located in the core of the factory. The property owner wanted to preserve the possibilities of the industrial heritage building for other uses in the future and to meet the basic needs of today’s cultural exhibitions and industrial offices.
設計策略
Design strategy
∇ 入口夜景,entrance night view@徐英達
∇ 建築夜景,night view@徐英達
原建築組團是大尺度的聯排生產車間。其豐富的屋麵變化與獨特的結構形式呈現出工業建築的樸素美學與時代印記;獨特的高側窗構造塑造了明亮的內部空間;大型生產機械與殘存的紅色標語仿佛在訴說著它們獨有的曆史。麵對這些不可再生的工業遺產,我們希望以“弱幹預”的方式進行本次改造,盡可能減少對原建築的拆改,保留其工業建築特征。該建築組團西側的連廊作為危房已被拆除,隻剩下聯排生產車間。為滿足內部通行及管理需求,我們在其西側新建了公共連廊將彼此孤立的生產車間重新連接。
The original building cluster is a large-scale production workshop. Its rich roof changes and unique structural forms present the simple aesthetics and era imprints of industrial buildings. The unique construction of high side windows shapes the bright interior space. The large-scale production machinery and the remaining red slogans seem to tell their unique history. In the face of these non-renewable industrial heritage, we hope to carry out this renovation in a “weak intervention” manner, reducing the demolition of the original building as much as possible and retaining its industrial architectural characteristics.The corridor on the west side of the building cluster has been demolished as a dangerous house, leaving only the row production workshop. In order to meet the needs of internal traffic and management, we built a new public corridor on its west side to reconnect the isolated production workshops.
∇ 改造後繅絲車間大廳, main hall@徐英達
∇ 會議大廳模式, main hall conference mode@徐英達
∇ 大廳台階夾層,platform@徐英達
∇ 繅絲車間天井畫廊, light well gallery@徐英達
∇ 大廳展廊, exhibition gallery@徐英達
∇ 大廳活動台階,main hall stairs@徐英達
原繅絲車間被定義為展覽結合自持辦公的複合空間。我們將現存的大型生產機械作為“藝術裝置”保留在場所當中,希望喚醒人們的時代記憶。整個空間的布局也圍繞巨大的機械展開,在一層形成了三個環形動線。一層是融合了U·Talk講堂、秀場、咖啡及輔助功能的展覽空間,二層是合作夥伴中心的辦公與會議空間。一二層通過巨大的模塊化階梯聯係,階梯主要作為U·Talk講堂及秀場的觀眾區使用。
The original silk reeling workshop is defined as a complex space for exhibitions combined with self-sustaining offices. We keep the existing large-scale production machinery as an “art installation” in the place, hoping to awaken people’s memories of the times. The layout of the entire space also revolves around a huge machine, forming three circular moving lines on the first floor. The first floor is an exhibition space that integrates U·Talk lecture hall, show, coffee and auxiliary functions, and the second floor is the office and meeting space of the partner center. The first and second floors are connected by huge modular stairs, which are mainly used as the audience area of U·Talk lecture hall and show. A cocoon cooker and a re-shaker machine are kept under the stairs, which can be viewed and touched in the double-height gallery on the south side. On the opposite side of the stairs, an 18m-long vertical reeling machine is kept as the background of the U·Talk lecture hall and show, and it also defines the circular moving line of the show. Under the height limitation of the huge concrete beams, two horizontal corridors become a necessary condition for the circulation of the entire second-floor space. The partner center on the second floor forms a private volume in contrast to the open exhibition space through a row of low floor-to-ceiling windows.
∇ 大廳入口視角, main hall entrance view@徐英達
∇ 大廳水吧台和書吧,bookstore and bar@徐英達
∇ 完整保留的繅絲機床, Reeling machine@徐英達
∇ 繅絲車間展廊,gallery@徐英達
∇ 繅絲車間夾層空間會議室, loft meeting room@徐英達
階梯下方保留了一台煮繭機和一台複搖機,它們可以在南側的通高展廊被觀看和觸摸;階梯對麵保留了一台18m長的立繅機作為U·Talk講堂和秀場的背景,同時它也限定出走秀的環形動線。在巨大混凝土橫梁的高度限製下,兩個橫向連廊成為整個二層空間得以環通的必要條件。位於二層的合作夥伴中心僅通過一排低矮落地窗便形成一個具有私密性的體量與開放的展覽空間形成對比。
The original re-shaking workshop, cocoon cooking workshop, cocoon steaming workshop and cocoon selection workshop are defined as cultural and creative office spaces for rent. Among them, the re-shaking workshop has two bays, one large and one small. The roof is supported by arch beams and has high side window, which are particularly bright under the sunlight. Thanks to the relief of the net height under the steel cables of the original structure by excavating the ground, we can implant a mezzanine in it to meet the needs of the newly added office area. The large bay forms a longitudinal visual guide through partial interlayer processing, while retaining the scale of part of the original production workshop, forming a dialogue between the new and the old. The small bay brings the high arch beam sequence closer to the eyes through the overall interlayer treatment, reshaping the space experience.
∇ 改造後的複搖車間,renovated shaking workshop@徐英達
原複搖車間、煮繭車間、蒸繭車間、選繭車間被定義為對外出租的文創辦公空間。其中複搖車間有大小兩個開間,屋麵均依靠拱梁支撐並帶有高側窗,在陽光照射下格外明亮。得益於地麵下挖對原始結構鋼索下淨高的緩解,我們可以在其中植入夾層以滿足新增的辦公麵積需求。大開間通過局部夾層處理形成縱向的視覺引導,同時保留部分原始生產車間的尺度,形成新與舊的對話;小開間通過整體夾層處理將高處的拱梁序列拉近到眼前,重塑空間體驗。
After the reinforcement of the original cocoon cooking workshop, all the structural columns protrude from the interior wall, showing a clear structural system. Except for the two functional modules implanted in the entrance, we only made material treatment on the wall and top surface to strengthen the relationship with the original structure.
The original cocoon steaming workshop is relatively closed. We bring natural light into the room through skylights, while retaining the original cocoon steaming machinery.
∇ 改造後的煮繭車間, renovated Cocoon boiling plant@徐英達
∇ 保留蒸餾設備的會議室, meeting room@徐英達
原煮繭車間在加固完成後所有的結構柱都凸出於室內牆麵,顯現出清晰的結構體係。除去入口植入的兩個功能模塊,我們僅在牆麵與頂麵做了材質處理以強化原始結構的關係。原蒸繭車間相對封閉,我們通過天窗將自然光引入室內,同時保留了原始的蒸繭機械。原選繭車間是一棟相對獨立的兩層雙坡建築,屋麵由三角桁架支撐,一二層僅靠單薄的直立鋼梯聯係。我們通過在原建築樓板缺口處加建旋轉樓梯解決了縱向交通的問題。此外,我們也將巨大的選繭機械保留下來,希望它能夠作為辦公家具的一部分。
The original cocoon selection workshop was a relatively independent two-storey double-sloped building, with a roof supported by triangular trusses and a thin vertical steel ladder connecting the first and second floors. We solved the problem of longitudinal traffic by adding a spiral staircase to the gap in the floor slab of the original building. In addition, we have also preserved the huge cocoon selection machinery and hope that it will be part of the office furniture.
∇ 增加的旋轉樓梯,added stairs@徐英達
壇丘繅絲廠經曆過多次翻新,我們希望剝離其在過去修補過程中增加的裝飾成分,還原它的時代特征。麵對過往翻新及加固帶來的混亂界麵關係,我們選擇保留“骨骼”,重塑“塊麵”。將梁柱結構的麵層進行剝離以突出混凝土結構的粗獷特質;將部分牆麵抹灰鏟除以還原其紅磚建築的本質;將水泥砂漿補丁覆蓋下的加固鋼板重新外露表現其經曆加固的事實。
The Tanqiu Silk Reeling Factory has undergone several renovations and we wanted to strip it of the decorative components that had been added during the past repair process and restore its period character. Faced with the chaotic interface relationship caused by the past renovation and reinforcement, we chose to retain the “bone” and reshape the “block surface”. The surface layer of the beam-column structure is stripped to highlight the roughness of the concrete structure. Part of the wall plastering was removed to restore the essence of its red brick building. Re-exposing the reinforced steel plate covered by the cement mortar patch shows the fact that it has undergone reinforcement.
技術思考
Technical thinking
∇ 舊機器細部1, old machinery@徐英達
結構:原建築結構屬於特殊曆史時期的複雜結構並且已經過加固處理。內部新建時我們采用了獨立的鋼結構體係同時避開了原結構柱及外牆的基礎,以避免對原結構產生二次傷害。這樣的處理也保留了該項目在未來作為其他用途再改造的可能性。
Structure: The original building structure belongs to a complex structure of a special historical period and has been reinforced. When the interior is newly built, we adopt an independent steel structure system and avoid the foundation of the original structural column and the exterior wall to avoid secondary damage to the original structure. This treatment also preserves the possibility of the project being repurposed for other uses in the future.
材料:在處理剝離麵層後的牆體及梁柱時,我們使用了水性漆來保持其粗糙質地;在麵對屋麵開裂剝落問題時,我們使用了水泥漆以延續其工業空間氛圍;在新建西側連廊時我們使用了廠區內危房拆除留下來的紅磚作為一種新與舊的連接;此外,我們也通過金屬網、鋼欄杆等材料來呼應其工業建築屬性。
Material: When treating the walls and beams and columns after stripping the surface layer, we use water-based paint to maintain their rough texture. When faced with the problem of cracking and spalling roofing, we used cement paint to continue the atmosphere of its industrial space. When building the new west corridor, we used red bricks left over from the demolition of dilapidated houses in the factory as a connection between the old and the new. In addition, we also use materials such as metal mesh and steel railings to echo its industrial building properties.
設備:為保持原建築梁柱體係及屋麵的純粹美感,所有的設備都采用貼牆或貼梁底走管的方式排布並且結合牆麵及頂麵的材料變化做了相應顏色的噴塗。
Equipment: In order to maintain the pure aesthetic feeling of the original building beam and column system and roof, all equipment is arranged by way of sticking to the wall or the bottom of the beam, and the corresponding color is sprayed in combination with the material changes of the wall and the top surface.
改造啟示
Renovation revelations
∇ 絲博園看向建築,garden view@徐英達
工業遺產建築改造本質上是在與曆史對話。如何在植入新功能的同時保留曆史印記,甚至保留未來再改造的可能性是無法回避的問題。植入何種功能往往受政府決策或商業策劃的影響,但如何保留曆史印記則更多地取決於設計策略。保留曆史印記並不是簡單的重建或修複老建築,建築會隨著時間的流動而變化。本次改造采用“弱幹預”的方式與曆史對話,希望將一個時代特征與經濟民生的縮影重新轉型為創新型文創園區從而促進當地發展。
The renovation of industrial heritage architecture is essentially a dialogue with history. How to implant new functions while preserving the historical imprint and even preserving the possibility of future renovation is an unavoidable problem. What functions are implanted is often influenced by government decisions or business plans, but how to preserve historical imprints depends more on design strategy. Preserving historical imprints is not simply about rebuilding or restoring old buildings, buildings change over time. This renovation adopts the method of “weak intervention” to dialogue with history, hoping to transform the epitome of the characteristics of an era and economic and people’s livelihood into an innovative cultural and creative park to promote local development.
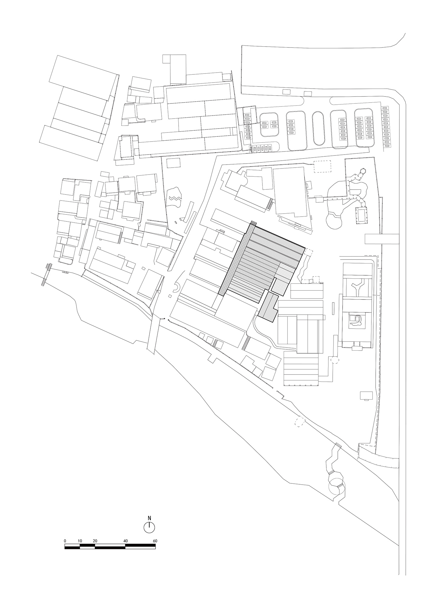
∇ 總平麵圖Masterplan@平介設計 Parallect Design
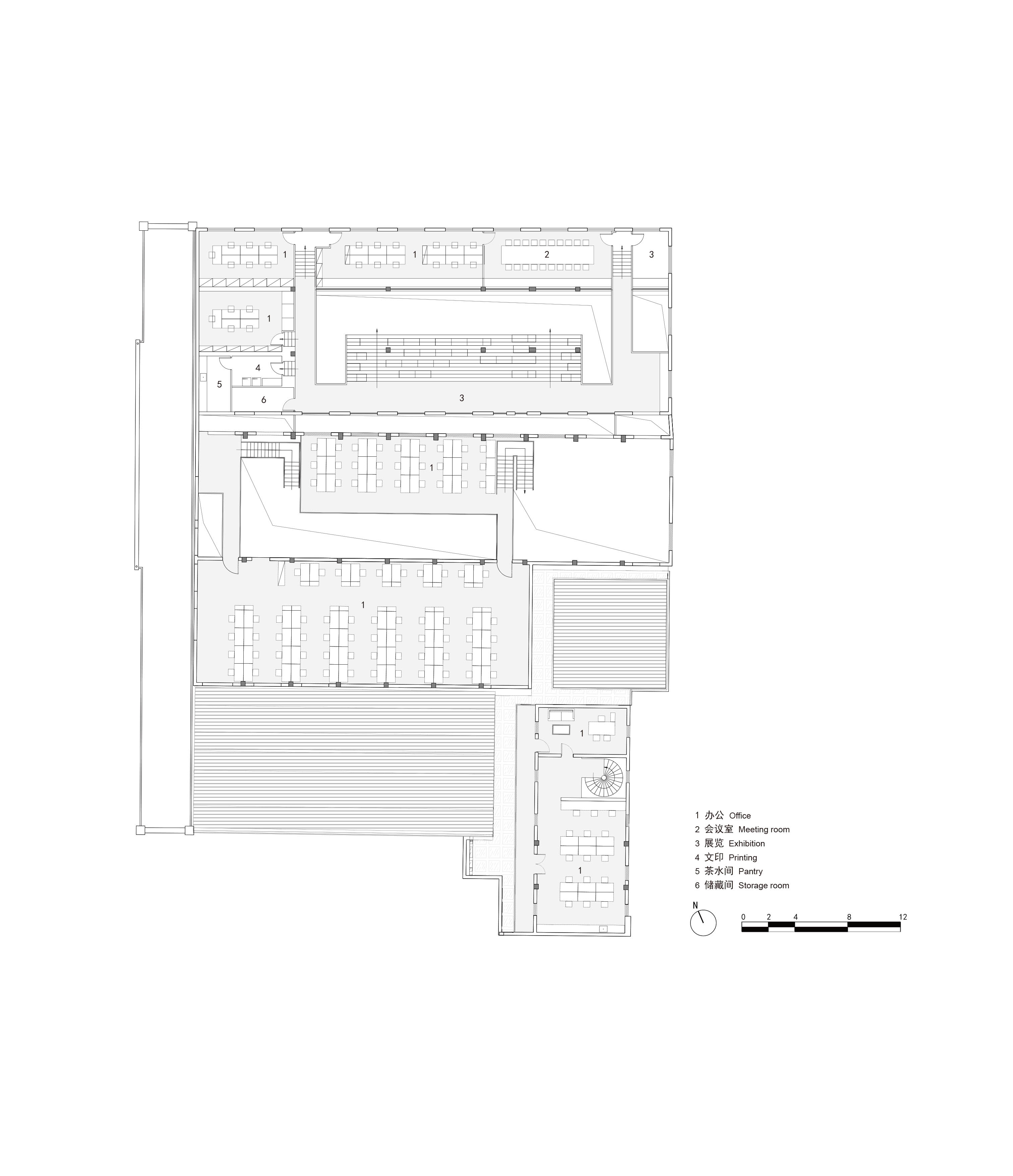
∇ 一層平麵圖Ground floor plan@@平介設計 Parallect Design
∇ 二層平麵圖First floor plan@平介設計 Parallect Design
項目信息
項目名稱:絲路盛澤·數字文化產業園區示範區:盛澤壇丘繅絲廠改造
策略指導:程宏 (遠見文旅)
業態規劃:江蘇遠見文旅控股集團
設計單位:平介設計,遠見文旅
公司網站:https://www.parallect-design.com
聯係郵箱:info@parallect-design.com
建築麵積:2300㎡
項目設計&完成年份:2022;2023
設計團隊:王海東,李文靖,楊楠,顧王禧,孔祥鵬
結構/水電設計:上海衡泰建築設計谘詢有限公司
攝影版權:徐英達
業主:江蘇遠見文旅控股集團
項目地點:中國江蘇省蘇州市吳江區盛澤鎮壇丘絲廠路12號
Project Name: Renovation of Suzhou Shengze Tanqiu Silk Reeling Factory
Designer: Parallect Design
Company Website: https://www.parallect-design.com
E-mail: info@parallect-design.com
Building Area: 2300㎡
Project Design & Accomplish Date: 2022; 2023
Design team: Haidong Wang, Wenjing Li, Nan Yang, Wangxi Gu, Xiangpeng Kong
Structural/Hydropower design: Shanghai Hengtai Architectural Design Consulting Co., Ltd.
Construction party: Suzhou Langji Decoration Design Engineering Co., Ltd.
Photography Copyright:
Client: JIANGSU YUANJIAN CULTURE&TOURISM HOLDING GROUP
Project location: No. 12, Tanqiu Sichang Road, Shengze Town, Wujiang District, Suzhou, Jiangsu Province, China








































