由象空間此次設計汲取自屋主的人生曆程,透過場域裏的不完美、不恒常,窺見無常之美;以屋主心中之侘寂,展開一場自我的對話—— 走過轉變,重新出發。
本案以空的意象貫穿全室,靈感源自於日本立花北枝在俳句《螢》中所述流螢斷續光,一明一滅一尺間,那蘊藏在明滅、動靜之間的禪意,正是連接空間內外、動線關係的關鍵,進而在留白的空餘中望見生活之充足,在看得見的美中,意識到看不見的設計。
此後,一室寡淡的配色中,彌漫著屬於大地的原生與樸實,相偕60㎡室內空間與90㎡戶外露台,一同劃開了平疇之廣、天空之闊,猶如與天地合一,找回大道至簡的內在之靜;這一切因為留白,更加豐盈。
談及此次對侘寂的側寫,設計師意味深長地說:像春天的純淨,不帶陰翳,我們企圖營造潮濕的侘寂感。如此描述,引述自經典之句所有記憶都是潮濕的。無論是受王家衛的電影《2046》,抑或劉以鬯的小說《酒徒》影響,刻意使故事架構在濃烈的時間和色彩裏,是由象空間從經典之作習得的敘事手法。
於是設計師在每一角落傾注一抹嫩綠,用不同媒材描摹從雨後土壤迸發的新生綠芽,背後涵義正是屋主形象的延伸,是熱愛自然、外向幽默的他,也是走過轉變後,迎來新篇章的他。
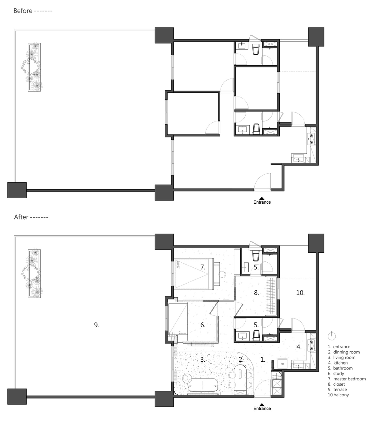
本案特色是擁有比室內空間還要大的露台。設計上,我們提出1+1>2 的策略,藉由模糊內外界線,企圖加乘僅有60㎡室內空間,創造出有如120㎡的寬敞感受。
我們把場域一分為二,盡可能敞開相鄰於窗邊的客廳、多功能室與主臥,運用落地窗水平連結了不同區域,讓西曬房屋納入最長日光時間,引入自然和時間的流動,不僅豐富了空間表情,更產生內外無界的錯覺。
∇ 平麵圖
版權聲明:本站所有文章除投稿授權發布外,其他文字內容均為原創,享有著作權保護,未經許可不得以任何形式進行轉載(包括且不限於:媒體、網站、公眾號等)。所有項目照片/設計圖形版權歸原作者所有。本站部分內容源自網絡公開資源或用戶分享,如若侵犯了原作者的合法權益,可聯係我們進行處理。





























