say architects的新辦公室坐落於街邊,比鄰錢塘江,相較於以往隱私性較強的辦公區域,街邊則麵臨更大的開放性挑戰。say希望新的辦公室可以取消傳統的辦公模式,將休閑置入工作區,以使用者的需求為切入點,探尋更具生活化的開放辦公空間,為每一位使用者帶來更舒適自在的工作體驗。
入口與社區街道相連,將人行道磚延伸至外擺區域,門口的景觀區域與hang bar外擺區域相連,讓辦公室擁抱社區自然。100*100的工字鋼作為外立麵結構的基礎,貫穿室內外,向外挑出的牛腿結合繩索,讓景觀植物順著繩索攀爬生長,橫向的鋼管則預埋霧化噴淋。工字鋼向內橫貫,則為室內書架的爬梯提供支撐,裸露的鋼架作為建築脊柱在室內隨處可見,營造更為輕鬆有趣的辦公環境。
∇ 立麵分析圖
辦公室內一層的整體區域用作辦公活動使用,憑借層高的優勢向內置入了三個維度的盒子:大會議室,樓梯,以及模型室,並排的區塊分割使得每個功能區使用連貫。現澆混凝土樓梯作為連結的體塊,為了使其呈現地更有溫度,在支模時覆蓋布料,脫模後呈現布料的自然肌理。樓梯上則保留支模時的孔洞,作為扶手的固定點,扶手使用螺紋鋼,原始建築材料的搭配讓空間呈現更為歸真。
∇ 頂視透視分析圖
大會議室懸挑在一層上方,底部無落柱,根據結構巧妙設計使用抱箍與梁相接。大會議桌根據使用習慣,桌麵寬幅做了前窄後寬的傾斜角度,確保每位參會人員都獲得完整瀏覽體驗。大會議室地麵為現澆穿孔樓板,保證光線流通。
∇ 軸測分析圖
整體辦公區域則坐落窗邊,超寬幅的落地窗確保了充足的陽光采集,自然光線的引入,讓空間不再過於追求過度人工打光。落地窗同時帶來光線直射的問題,但為盡量保證窗外綠植景觀的完整,搭配天幕作為遮陽。
辦公區域的功能區布局契合使用者的工作習慣,工作區位於中央,通過材料收納櫃作軟隔斷分隔三張辦公桌,工位背麵即是可隨手拿取的各類材料,確保設計靈感不間斷地在現實中具象呈現。
工作區周圍則是生活化的休閑區,搭建材料牆供設計師研討,依牆設立一麵書架作閱讀區,臨近處擺放了提供茶飲的水吧台,轉角沙發提供休息討論場所。每個區塊毗鄰卻無實體分隔,打破工位限製,讓休閑與工作共在一處。
辦公區域邊緣的內間作模型室使用,整體為木結構,柔和的暖調打光配合溫暖的原木材質,營造靈感作坊的氛圍。收納櫃體將所有材料分門別類,便於使用者拿取。模型室背麵的窗戶連接著hang bar行也行吧,使模型室同樣也作為對外的觀察窗口展示。
hang bar行也行吧作為辦公室的衍生,其承載了展陳的功能。根據Hang(懸掛)的想象,四周的方鋼及中央可升降的鋼架框均作為了展覽的關鍵,利用裸露的結構實現懸掛陳列藝術,為空間帶來無限的可能。
∇ 可升降鋼架
say一直都在與人講述不同的故事,故而社區辦公室同樣也是服務於人,消除形式主義,回歸“人”的探索,空間在功能與溫度之間尋找得平衡,讓每一位使用者獲得獲得正向的能量與愉悅體驗。
∇ 大會議室搭建
∇ 天幕細節
∇ 樓梯搭建與建材細部
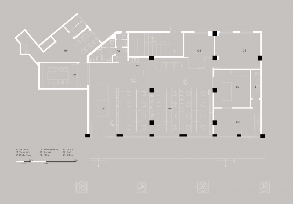
∇ 平麵圖
項目信息
業主:say architects
狀況:完成
年份:2023
麵積:285sqm
地址:杭州市上城區之江路
項目類型:辦公空間
設計公司:say architects
主持設計:張岩、單嘉男
團隊:孫紫益(項目主管)、王佳、葉金、蘭丹娜、陳達超(分析圖)
施工圖:金鐵軍
空間攝影:Wen Studio
燈光谘詢:TRACE光跡照明設計
施工團隊:上海中耕裝飾設計有限公司、杭州優辦裝飾有限公司
景觀設計:去野 · 二旦植物工作室
結構谘詢:XTRUCINSTITUTE未知結構
家具製作:浙江諾隱家具有限公司、品初家居設計公司
材料供應:上海嘉嵐建築科技有限公司、上海日朗門窗有限公司
家電潔具品牌:Panasonic鬆下、LAUFEN勞芬
家具供應:吱音、Enjoy Space、Home Gallery










































