本案是我們設計團隊的新工作室。整體方案主要以極簡主義作為設計的基石,以空間互動為設計的重點,在滿足設計師創作表達的前提下,使不同空間緊密聯合,形成和諧的序列關係。整個空間不僅做到通透,還提高了人與人之間的互動和交流。
在門廳處,我們用大片麵積的黑色木材營造出一種神秘的氛圍。玄關上的三角形開口設計打破了空間界限,使原本分隔的空間於若隱若現的視線交流中建立聯係,增添趣味性和設計感。
原木色的體塊把材料展示區和衛生間分隔開來,既是隔斷,也是展示架。木材的表麵肌理與質感突顯了不同材料的色彩本質,更強調了這個區域的獨立性。
L型走道連接各個空間,並隨著序列的遞進而呈現出明顯的層次和材質變化。走道延伸至總監辦公室,結合另一側的玻璃門形成一條環形回路,通過空間的互動達到使用效率的最大化。
在實踐過程中,空間的視覺感受一直是我們考慮的重點,而裝飾材料及軟裝的選擇則構成項目的基本元素。
著眼於多元、高效、藝術等多種辦公設計新趨勢,所有牆麵、柱體、照明、軟裝,在整體流線中環環相扣的節點皆從實用性出發,逐步放大藝術元素對辦公空間的潛在價值。
詮釋設計創意的有力手法是對材料特性、細節的深入研究。這是創造一個和諧舒適空間和確保優質項目高品質落地的關鍵。我們希望通過基本的形式語言體現最真實的空間,用質樸的建造細節來激發空間之間的對話。
∇ 空間動態圖
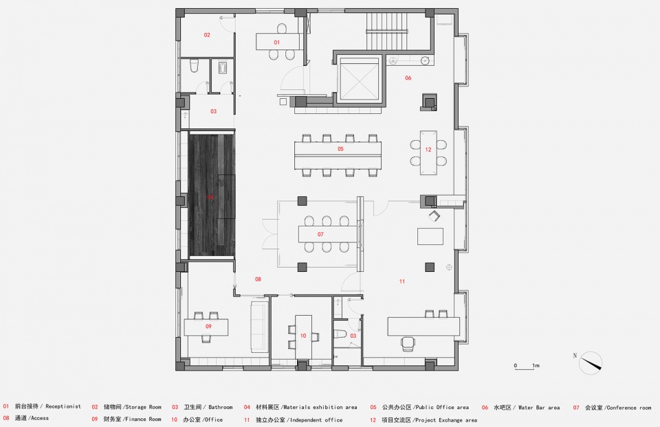
∇ 平麵圖
項目信息
項目名稱|回歸本原
項目地點|廣東 汕頭
設計機構|由裏空間設計
建築麵積|310 m²
竣工時間|2023.09
主創設計|謝桂順
施工團隊|由裏工程
項目攝影|陳榮坤
版權聲明:本站所有文章除投稿授權發布外,其他文字內容均為原創,享有著作權保護,未經許可不得以任何形式進行轉載(包括且不限於:媒體、網站、公眾號等)。所有項目照片/設計圖形版權歸原作者所有。本站部分內容源自網絡公開資源或用戶分享,如若侵犯了原作者的合法權益,可聯係我們進行處理。





























