設計師嚐試處理曆史遺產和城市更新的議題。整個空間中保留了已建成30多年的梁柱結構,以及部分磚牆,讓它與新材質對話。
設計師想創造一個懷舊、孤獨、安靜的工作室。
懷舊不是活在過去,而是麵向更遠的未來。那種古樸、老舊、逃避、朋克、頹廢、粗糙的反美學氣質,卻營造出一種年輕、現代且充滿創意的靈魂。
∇ 爆炸圖
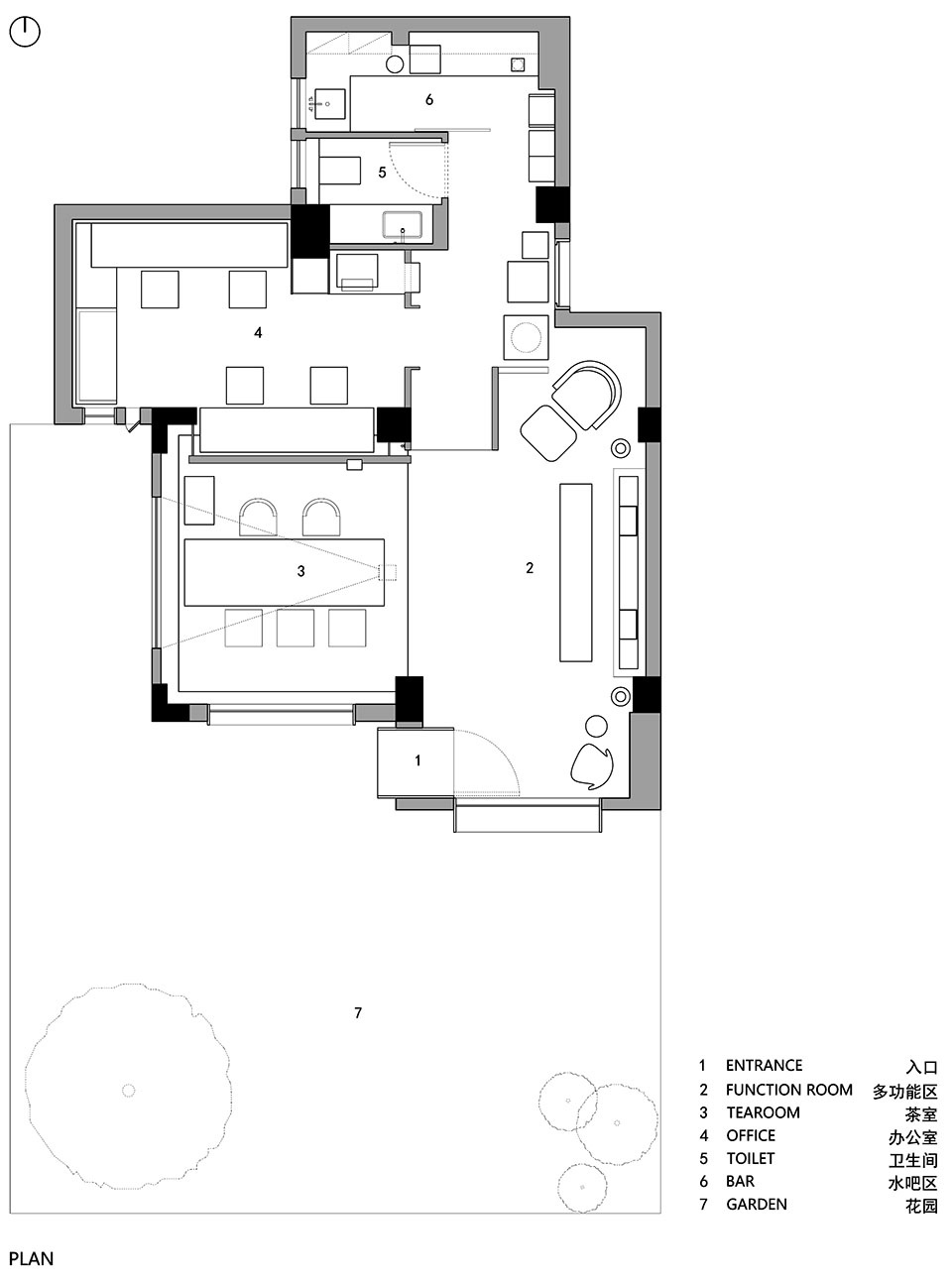
∇ 總平麵圖
項目信息
項目名稱: 懷舊的未來
設計方: 黑白木設計
項目設計 & 完成年份: 2023.9
主創及設計團隊: 王強、韋凱鈞、聶東木、聶祖蘭
項目地址: 中國 廣州 天河
建築麵積: 80 ㎡
攝影版權: 覃昭量
客戶: 聶薇薇
品牌: 火山岩、有末、砼館、 亨特窗飾、美墅館家具、點燭照明設計、居於簡定製
版權聲明:本站所有文章除投稿授權發布外,其他文字內容均為原創,享有著作權保護,未經許可不得以任何形式進行轉載(包括且不限於:媒體、網站、公眾號等)。所有項目照片/設計圖形版權歸原作者所有。本站部分內容源自網絡公開資源或用戶分享,如若侵犯了原作者的合法權益,可聯係我們進行處理。






























