2023年春天,山地土壤受葭園設計委托,在已建成的兩層以規則形框架結構圍合的建築空間內,植入以「器物」為主的生活方式和展覽體驗空間。
該項目的設計取意葭園品牌中的“園”字,以傳統文化中極具觀賞性和體驗性的“遊園”為出發點,將整體空間以“外園/入園/遊園/留園” 為層層遞進的序幕進行敘事。
感性設計
∇ 概念意向圖&概念手稿
在數位時代快節奏的生活中,我們有對新時代變化具備敏感度,但也時常會對日常周邊景物感知遲鈍。在項目設計前的很長一段時間內,我們時有會想象“城市的地麵被鋼筋混凝土和瀝青所覆蓋,可以說是一個被凝固、已經死亡的地麵”。
如何感知人工建造和有機自然,隨著時間推移地麵出現清晰的裂縫以及非人工幹預的自然生命體給了我回答。
葭園craft品牌致力於探索和傳播全球手工藝品,發掘和細探日常器物的美感以及與環境的關係、推動手工藝在當代社會下的發展和認知。在概念設計伊始,山地土壤一直思考如何為項目構築一個獨特而又具有生活感的“家園“,空間、手工藝物件與人的行為可以產生微妙的聯係。這裏是品牌展覽空間,也為所有熱愛手工藝的人們打造一個平等、自由探索的藝術空間。
思考生活化景觀是山地土壤為項目尋找的一個突破口,將無法拷貝的自然進行設計翻譯,對“日常生活地景“進行提取從而獲得空間形態。
空間路徑
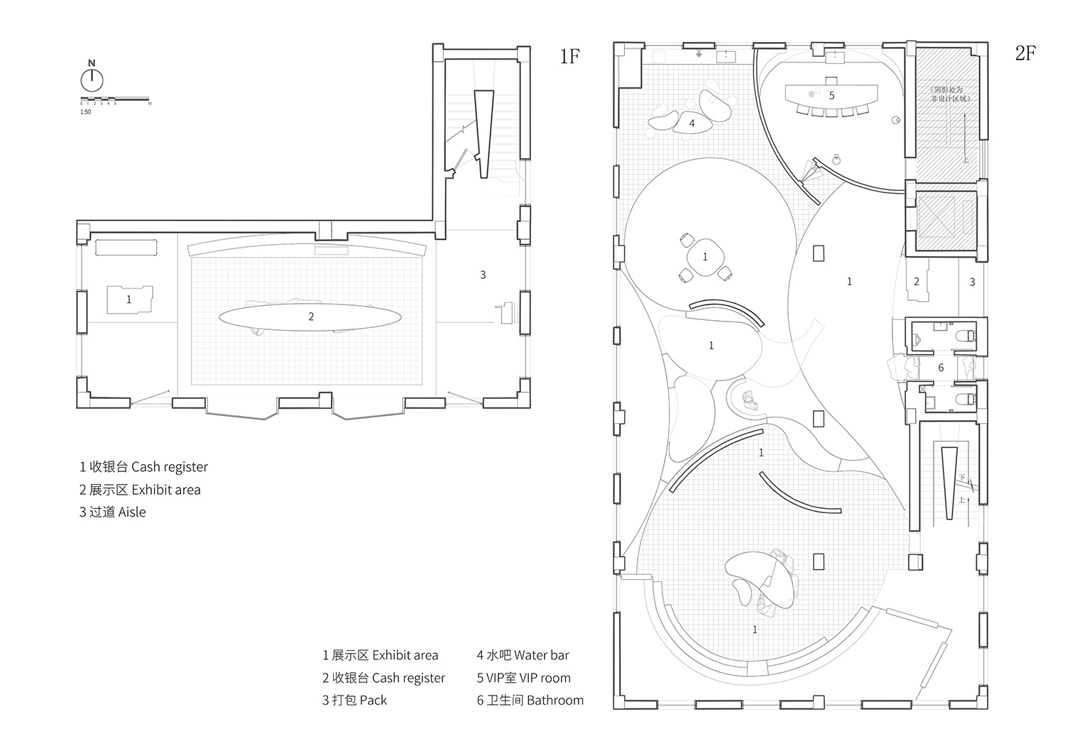
葭園主題展覽空間位於杭州市西湖區郡原公元裏,整體建築麵積為509平方米,兩層的空間四麵開窗,以極簡的框景形式引入自然光線和周圍層疊的自然綠意。
1F空間為葭園主入口,亦為“外園”,是整體空間序列的起始。俯覽全景,圍繞平麵中軸以環形動線為主導,再經由側方婉轉小道拾級而上進入園內。
中心陳列主展位的設計上,設計師簡化繁雜的道具造型,提取植物葉片的基礎形態。在“葉片”的下方以山石為地景,周邊輔以萊姆石,留取其自然凹凸肌理,為室內一隅置入生態感的物景。在縱向垂直結構上,我們將層高進行延伸,使得一樓和二樓的空間重疊兼容。裸露的原混凝土結構柱被完整地保留,柱體形式作為連接空間上下關係的建築骨骼。
二樓的公共區域分別由三個空間層次組成,在平麵布局上我們把人工與自然協作的地麵裂縫作為整體空間的結構型特征,再由牆體降格將區域劃分為“入園/遊園/留園”三個版塊。
遊園體驗
入園:區域與一樓緊密相連,形成一個建築與形式感的“對話空間”。利用平麵懸挑形態的半圓弧向上延伸,再置入疊加展陳與收納功能,入園的中心區塊則由高位陳列為主導,是空間的中心聚焦點。
遊園:二樓的中央版塊,陳列台麵的設計從地麵“裂縫”裏生長出來,錯落有序,形成視角高差的同時,也可適應大小高低不同的器皿擺放。地麵材質使用了水洗石處理,我們用當代園林的鵝卵石作為設計參照,將戶外材質轉化至室內空間組成部分,形成園內園外模糊的界限,更好地將自然氣息彌散在室內。
留園:區域後期功能使用主要以大型藝術裝置、線下容納多人的藝術交流以及休憩對談為主。我們圍繞此生活方式將空間內的各項機能自由組合,再嵌入吧台以及現代化的功能設備打造出一個靈動且自由的互動空間。
∇ 1F平麵
∇ 2F平麵
∇ 平麵設計圖
項目信息
項目名稱:葭園主題概念空間
項目類型:多功能複合展覽空間
室內設計:杭州山地土壤室內設計
完成年份:2024年1月
設計總監:董甜甜
項目地址:浙江省杭州市
建築麵積:509平方米
攝影版權:Wen Studio
燈光設計:華豪照明
施工公司:浙江亙盛建設集團有限公司
主要材料:藝術塗料、混凝土板、天然石塊、萊姆石


































