繼漢南洞之後,Insilence Seongsu的第二家旗艦店展示了”沉默”與傳統的大膽之舉,並以不同的形式和策略擴張。它反映了新舊的融合,抓住了青鬆地區的精髓。
這個曾經是工業工廠的空間,現在在非傳統的布局和路徑中使用原材料和創新材料,以藝術的方式呈現出品牌的氛圍。整體的氛圍,包括陳舊的混凝土地板和牆壁、金屬、PC板、地毯和特殊的油漆,展示了各種各樣的紋理,但卻以獨特的灰色色調呈現出來。
每一個固定裝置都是戰略性的,體現出質量感,但卻精心設計,通過使用薄飾麵和各種材料來避免看起來很麻煩。這個空間是由一係列材料製作而成,設計得像一部統一的藝術作品,體現了這個品牌在青鬆的風格,以MZ一代無限的可能性而聞名。
當你進入商店時,一條不規則的通道展開,不對稱的家具被巧妙地排列起來,給人的印象是在畫廊裏。這些家具的設計是可移動的,打算作為未來的飲食供應區使用。天花板上的燈軌設計複雜,線條巧妙地暗示了裝置的布局,有助於一種深思熟慮和凝聚力的審美。
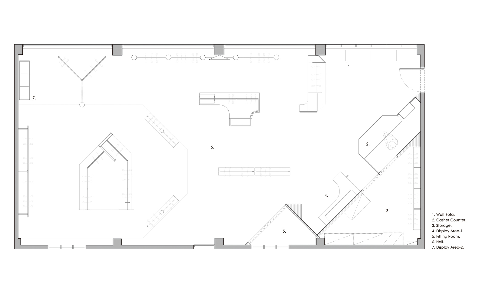
∇ 平麵圖
版權聲明:本站所有文章除投稿授權發布外,其他文字內容均為原創,享有著作權保護,未經許可不得以任何形式進行轉載(包括且不限於:媒體、網站、公眾號等)。所有項目照片/設計圖形版權歸原作者所有。本站部分內容源自網絡公開資源或用戶分享,如若侵犯了原作者的合法權益,可聯係我們進行處理。


































