這是業主在一號店的基礎上進行品牌升級而開設的二店,項目場地位於北京百子灣緊鄰鐵路的交叉路口邊上的獨棟建築一層。
最初我們對於空間的設想還是傳統威士忌酒吧的格調——曲高和寡的精致品酒空間,但在結合業主的運營方向,以及了解了百子灣地區獨特的文化藝術氛圍屬性後,我們轉變了設計思路,將其定位為一個擁有輕鬆氛圍誰都能走進來喝一杯的空間。業主希望在有限的空間內既安排盡可能多的座位,又適當保證座位區域之間的隱私性,同時獲得豐富的空間體驗,因此我們在空間動線和布局上下了功夫。
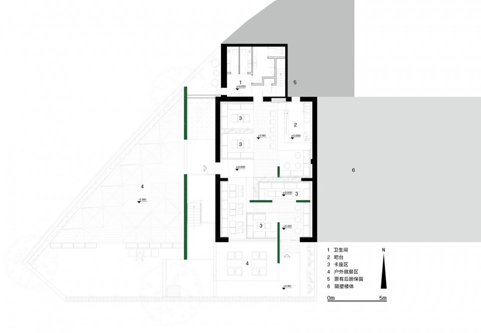
鑒於廚房區域需利舊使用,我們第一時間決定將吧台設置在後廚門口的區域,方便店員的前後場接應。然後將多個“木頭抽屜”至於空間的四處,形成甲方運營所必要的大小卡座。在其餘空間內置入靠牆的木座椅,配合軟裝桌椅形成散座,滿足酒吧客區的基本功能需求。
現代人的社交需求往往既統一又矛盾,在同一空間內人們希望能觀察四周環境但又不過分暴露自己。我們將這樣的需求逐漸轉變為空間的表達,最終以一組承十字交叉的牆體置入在空間中,完成空間布局的最後一筆。空間被綠牆打散又通過木頭在立麵上進行重組,打散又分隔、解構與重組,空間動線也因此憑添了幾分特別。而空間中連續的吊燈又暗示著這一切都是同一空間。
材料使用上,我們保留了原始空間的上半部分磚牆麵隻做修補,三色赤土黃瓷磚混拚至門的高度,配合暖色的氛圍燈組,營造出放鬆又友好的空間氛圍。在這種曖昧的環境中,人們的視覺中心落到十字交叉的綠牆上,作為整個空間的亮點,我們選擇極具藝術性的綠色鐵鏽板呼應品牌的主題色。豎向的綠牆延伸至室外,順勢成為logo展示牆。
卡座區域的海洋板及木地板都盡量選擇了貼近牆麵瓷磚色調的材料,弱化了不同材質間的不和諧性,希望人們可以在整體暖色的氛圍中慢慢感受到不同的材質拚配帶來的視覺效果。
吧台作為一個餐飲空間的關鍵區域,與相鄰的一處卡座區域一並使用了深色海洋板來突出呈現,結合牆麵上的讚助商燈箱,打造出專屬主題卡座。吧台的內部地麵被設計成比外部更低,以方便調酒師與落座的客人更平等地交流對視。
商業空間的設計往往需要多重考量,如何在項目的複雜需求與團隊多元的設計理念中建立秩序,創作出既滿足經營者與使用者的需求又符合現代美學的空間,是我們的追求。
∇ 平麵圖
項目信息
項目名稱:百子灣 Bistro
項目地點:北京朝陽區百子灣
項目功能:商業
業主:個人
設計單位:設計秩序 DesignOrderGroup
設計團隊:蔣麗 董倩伶 馮晨
建築麵積:135m²
照明設計:設計秩序 DesignOrderGroup
施工方:北京中盈宏安建築裝飾工程有限公司
攝影師:金偉琦
設計時間:2022.10-2022.11
施工時間:2022.02-2023.07

























