“有三百六十種可能,為什麼要一成不變呢。”——Zaha Hadid
項目為舊房改造設計,使用麵積85㎡。伴隨兩個孩子不斷成長,原始兩居室已經不能滿足業主居住需求,希望在保留較大公共空間的前提下擁有三個獨立居住空間。
我們采用“疊落”的概念,通過置入一個相互通融的體塊重塑空間,將原本隻有一個窗戶的次臥重新分隔,部分空間重疊,即滿足了擁有獨立空間的需求,也獲得了有趣味的空間體驗。
設計始於簡潔的布局和內飾,沒有繁冗的裝飾元素,以簡化的線條實現形式與功能的複合。客廳是主要的家庭休閑及會客場所,“弱化”功能性後為全家預留盡可能大的活動空間。
電視背景牆采用巴士門的形式,啟合間轉換不同場景模式。
為了擴充起居空間,廚房開放式設計,並融入島台和餐廳,實現餐廚一體。室內通透且明亮,以放鬆、安駐的空間感受貫穿全屋。
“疊落”的兒童房設計是全屋的亮點,通過“橫向”與“縱向”上的空間重塑,使原次臥變為兩個既獨立又互通的兒童房。
依托近2米9的層高優勢,整合的“上下床”成為一個空間尺度的“大玩具”,具有多重含義,功能上承接了空間樞紐的作用。兩個房間彼此獨立,姐妹起居生活互不幹擾;透過陽台區域連接,實現聯通,助於培養、建立姐妹間的親密關係。
∇ 兒童房軸側圖
主臥風格簡約,黑色的床頭背板和床頭櫃搭配洞石燈具提升空間質感。主臥走廊牆上設計圓形孔洞,助於父母照看年齡尚小的兒童。孔洞創造空間上的視覺互動,同時也為走廊提供采光。
∇ 收納體係分析圖
改造後主衛縮小部分麵積,次衛擁有雙台盆和三分離衛浴布局,為家人日常使用提供便利。
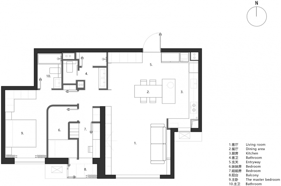
∇ 平麵圖
項目信息
項目名稱:《疊屋》橫與縱的空間重塑
項目地點:北京市朝陽區
項目麵積:85㎡
設計公司:北京辰境設計有限公司
設計總監:劉俊辰
主創設計師:劉俊辰,翁啟程,蔡世紀
圖紙表現:劉一
竣工時間:2024.01
施工:辰境製作
主要材料:乳膠漆,愛格板,岩板,鋼板
撰文:張銳
攝影:立明
































