一段職人修行之路,一段美食探索之旅。
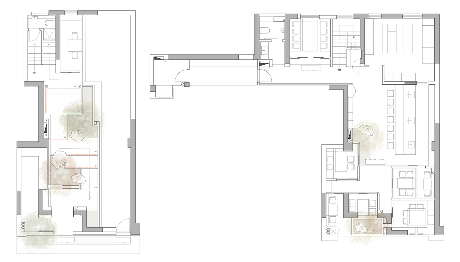
項目位於合肥市梅園公寓旁, 一共有二層,一層狹長、樓層較高。為了化解樓Send a message.梯的坡度,規劃上我們把一層的地麵整體做了遞進式的抬高,以緩解層高帶來的不足。地麵抬高堆坡也剛好為室內的造景帶來非常好的條件。
∇ 餐廳外觀,restaurant appearance ©飛羽攝影
∇ 餐廳入口,restaurant entrance ©飛羽攝影
∇ 入口LOGO,restaurant entrance ©飛羽攝影
尋園 Garden search
我們設計了一個遊園動線,我們希望客人去發現這個院子,就像發現美食一樣,對於愛吃的朋友來說這也是一個探尋的過程,所以我們稱這個空間叫“尋園”。
以精致、純淨和和諧為基礎的設計理念,將日本文化的精髓融入每一個細節。從入口處開始,刻意壓低的門頭和打造自然野趣的地景,營造出一種謙遜而又神秘的氛圍,旨為客人帶來了一種儀式感,讓他們在進入空間之前就能感受到獨特的體驗,我們追求的是一種平衡,既要展現出儀式感和莊重,又要保持自然、親切的氛圍。
沿著曲徑通幽的石子小路,您將發現一個充滿著靜謐氛圍的內庭院,仿佛將人們引至一個隱世的角落,遠離繁忙喧囂的城市生活。漫步其中,仿佛時光在這裏悄然停留。步行其間,您可以感受到腳下細碎石子的舒適觸感,同時眼前的景象也在不斷變幻,平滑的石塊、濕潤的苔蘚、稀疏的植被以及精心布置的小山丘,燈籠的柔和燈光透過紙質的罩子灑下,投射出斑駁的光影,為庭院營造出一種平和、沉靜的氛圍。
∇ 自然造園,landspace naturally ©飛羽攝影
清洗城市的嘈雜,享受這片刻的寧靜。
Clean away the noise of the city and,enjoy this moment of tranquility.
∇ 內向園林,Introverted garden ©飛羽攝影
拾階而上 一旦踏入餐廳,您會立刻感受到和風的氛圍,由木質構造和傳統藝術品所營造的空間氛圍。寬敞而舒適的用餐區域提供了私密和優雅的就餐環境,而吧台區則為客人們提供了親近廚師的機會,欣賞現場製作的精致料理。
∇ 景觀細部,landscape detail ©飛羽攝影
∇ 接待,reception ©飛羽攝影
∇ 公共用餐空間,public dining area ©飛羽攝影
∇ 包廂望向吧台,details ©飛羽攝影
期許 Expect
自然的間隙,露出一方新天地,
你在好奇故事的同時你已入了故事。
∇ 通往包廂過道概覽,overview of the aisle leading to the box ©飛羽攝影
它不僅是一處供顧客用餐的場所,更是一個可以放鬆身心、感受自然之美的地方。無論是白晝還是夜晚,這裏都充滿著獨特的魅力,讓人沉醉其中。
∇ 包間一瞥,a glimpse of the private room ©飛羽攝影
∇ 細部,details ©飛羽攝影
∇ 材料細部,material details ©飛羽攝影
∇ 平麵圖,plan ©工聿建築設計工作室
項目信息
項目名稱:千壽司
項目類型:餐飲空間
項目地址:安徽 . 合肥
設計公司:工聿建築設計工作室
主持設計:武斌 許文潔
設計團隊:郭子揚 李浩 佘玉翔
項目麵積:180㎡
完工時間:2022年6月
項目執行:文心雀造 / 視界之眼
燈光顧問:崔海偉
景觀指導:樊景森
攝影團隊:飛羽攝影
石材提供:質庫
木材提供:宏幀木業
地板提供:特芮地板





























