溪是一家位於上海浦東新區陸家嘴商圈的Omakase壽司店,室內淨麵積約82㎡。
主廚師傅年少師從日本壽司大師,回國後希望在上海經營一家自己的Omakase壽司店,取名為溪,這也成為了我們設計的關鍵靈感。主廚師傅希望壽司店簡潔、質樸,具有傳統日本壽司店的風格。
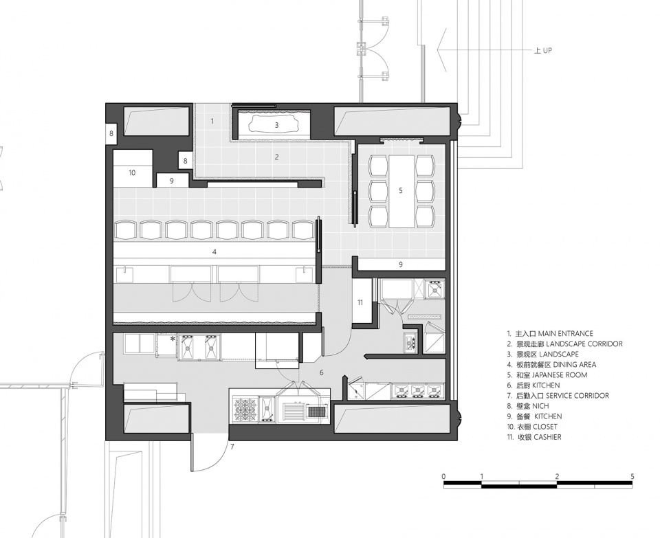
我們受傳統日式民居空間構成的啟發,由入口立麵到室內景觀區再到板前及和室營造出由低調含蓄到曲徑通幽再到賓至如歸的空間序列。入口處理內斂,立麵采用大麵積白色雅晶石塗料,簡潔而有質感。
推門進入到黑色調的景觀走廊,昏暗的燈光映在燒杉板牆麵上營造出幽深靜謐的氛圍。進門左轉一處雪見障子半懸,露出淺水池上懸浮的墨耀石。
在不大的店麵內這條走廊大大延長了客人的到達過程,我們希望通過這一曲折的路徑讓客人完成與外界喧囂的分離,回歸內心的平靜,也在這一過程中仿佛體會到探訪老友的感覺。
客人進入板前,暖色燈光、淺色檜木以及亞麻色京壁牆麵的使用使氛圍變得豁然開朗,營造出愜意的舒適感。
溪的元素通過不同材質和工藝的表達貫穿始終:入口嵌入牆壁的檜木板門牌、墨曜石後帶有凹凸紋理的黑色石材牆麵、板前及和室內雕有水波紋的白木背景牆。這一係列元素的使用讓壽司店從傳統日式民居的風格中跳脫出來,從而有了更加現代、抽象的表達。我們無意於將東京搬至上海,而是希望在具體的場地中創造出屬於溪本身的場所性表達。
我們在壽司店內設計的多處壁龕,也成為溪的亮點。進門右側牆壁、景觀走廊盡頭、板前以及和室內都巧妙地設置有壁龕,搭配主廚師傅精心挑選日式擺件,使客人在不經意間發現一些精巧的小心思,在就餐過程中也創造一些驚喜。
∇ 平麵圖
項目信息
項目名稱:溪
項目類型:室內設計
設計方:UN-GROUP 未集建築
項目設計:2021.6
完成年份:2022.1
設計團隊:王曉宇、王雨田
項目地址:上海浦東
建築麵積:82㎡
攝影版權:劉鬆愷
燈光顧問:Studio BLRR 不熱燈光設計工作室
施工圖:上海呈煜空間設計有限公司
施工團隊:上海南鬆建築工程有限公司
客戶:溪
材料:燒杉板、墨耀石、花崗岩、檜木、白木、肌理塗料
品牌:日本富士川京壁FUJIKAWA、庭下小檜、VF燈具

























