大海、島嶼、風、森林和人。
一個寒冷的冬日,我站在布滿巨石的石山山頂,觀看西海上的日落。夕陽西下,緩慢而熙熙攘攘的港口和寧靜的漂流島嶼營造出一種隻有在岩石山上才能感受到的獨特情感。與寒冷的天氣相反,大海的溫暖和豐富似乎正在轉移到山上,引發了這個項目的開始。
“美是一個人發現的東西”是我喜歡的一句話。創建 SUKSAN 的過程就是重新發現和收集被遺忘的自然碎片。我們為這座被人們忽視的岩石山注入了一絲溫暖,打造出一個可以讓人感受到一望無際的大海、洶湧的風和漂流島嶼的生命力的空間。即使在大海的氣味和崎嶇的岩石中,我們也種樹,希望看到鮮花盛開。我們決定保留這座落基山的原始名稱,將建築命名為SUKSAN。
雖然沒有什麼是無意的,但一切都希望是自然的真實反映。通過SUKSAN,我們希望充分體驗木浦的自然風光,讓人們也成為自然的一部分,共同和諧地呼吸。
∇ 軸測圖
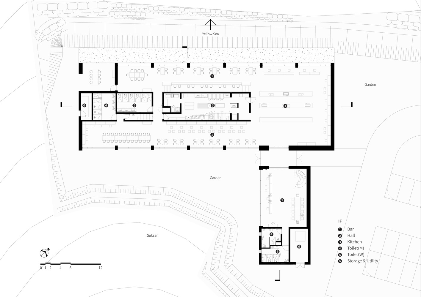
∇ 一層平麵圖
∇ 二層平麵圖
版權聲明:本站所有文章除投稿授權發布外,其他文字內容均為原創,享有著作權保護,未經許可不得以任何形式進行轉載(包括且不限於:媒體、網站、公眾號等)。所有項目照片/設計圖形版權歸原作者所有。本站部分內容源自網絡公開資源或用戶分享,如若侵犯了原作者的合法權益,可聯係我們進行處理。








































